
The change of the cable inlet of
FANAC LASER C4000-MODEL E
1/2
FANUC LTD
A-81053E-068
Description Design Date Edit.
01
040401 T.WATANABE
Title
Sheet
Draw. No.
The change of the cable inlet of FANUC LASER C4000-MODEL E
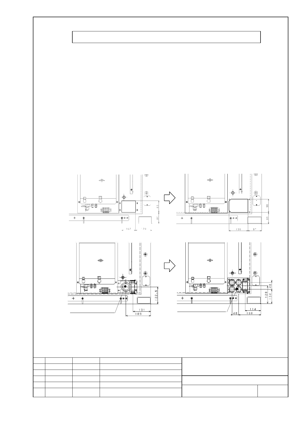
1.Outline
We expand the inlet of the power cable that connects the laser oscillator with the
switchboard to make a large diameter cable usable in the factory. It applies from July. Also,
We will change cable inlet from the method of one piece of cable gland to the method of
four pieces of cable gland. So, please use the single core cables for the AC200V electric
power cable. In case of use the numerous core cables, peel off a sheath from the breaker
terminal part to the cable inlet, and insert cores one by one.
The wiring between the switchboard and the oscillator is generally wired in the duct for
safety at the factory. It is necessary to use a large diameter cable. Because the
radiate-ability of the cable is bad in the ducts such as the metallic pipe and the permissible
current declines. It is difficult to insert the large diameter cables to conventional cable inlet,
because the aperture diameter of cable inlet is small. Therefore, we will change a cable
inlet for making it possible to use a large diameter cable. We adopt the method that
arranges four pieces of cable gland (For the power cable x 3,For the earth cable x 1),
because single core is general than the numerous cores. This method is the same method
as C5000-E, C6000-E, and new cable gland is same size as C5000-E.
2.Diagram
Before change After change
Cable clamping range:
Outer diameter Φ34∼Φ44
Cable clamping range:
Outer diameter Φ14∼Φ25
(Same as C5000-E)
FRAME
DIMENTION
CABLE INLET
APPEARANCE