Analog servo interface unit, connection unit 16i18i21i Additional Manual Page 5

Additional Manual
EDIT
.
FANUC LTD
SHEET
DRAW. NO.
CUST
TITLE
DESCRIPTION
DESIG.
DATE
16i/18i/21i analog servo interface
unit connection material
A-77372EN
Connector
PCR-E20FS
or
PCR-E20FA
Housing
PCR-
V20LB
JV1nL
(PCR-EV20MDT)
1 (A) 11 (B)
2 (*A) 12 (*B)
3 *ENBL 13 OVL
4 0V 14 0V
5 (Z) 15 (ALM)
6 EC 16 0V
7 VCMD 17 (*SRDY)
8 0V 18 0V
9 (*Z) 19 (24VOUT)
10 *PRDY 20 *VRDY
Analog servo interface unit
Analog servo amplifier
J155
04
Note) The pin with
( ) mark must be open.
Ferrite
core
Maximum allowable cable length : 50m Recommended wire A66L-0001-0206
(Individually shielded twisted pair #24AWG x 3 pairs + twisted pair #24AWG x 7 pairs)
The external cable diameter is 11, preventing the use of the cable, as is, with connector case PCR-
V20LB. Peel backs the sheath at the point where the cable meets the connector to reduce the cable
diameter.
Recommended ferrite core : TDK ZCAT203Z-0930
Set ferrite core near analog servo interface unit. It must be separate type.
Cable connection
Analog servo
interface unit
JV1n
L
*PRDY
*VRDY
Analog servo
amplifier
Shielded
Note)
When OVL is not
used, OVL must be
connected to 0V.
Note)
When *VRDY is
not used, *VRDY
must be connected
to 0V.
Individually shielded
twisted pair
7
6
3
4
13
14
10
8
20
18
16
VCM
EC
*ENBL
0V
OVL
0V
0V
0V
0V

Contents Summary of Analog servo interface unit, connection unit 16i18i21i Additional Manual

  • Page 1A-77372EN/03 16i/18i/21i analog servo interface unit connection unit
  • Page 21.1 Outline Analog servo interface unit of Series 16i/18i/21i is for the connection to analog servo. Up to 8 axes analog servo amplifier can be connected to Series 16i, up to 6 to 18i, and up to4 to 21i. 1.2 Specifications 1) Two types of analog servo interface * Type F analog servo interface The re
  • Page 31.3 Structure 16i/18i/ 21i COP10A FSSB line COP10M Analog voltage Analog Analog Servo COP10L 24VDC servo servo amp. motor Power interfac Feedback e Pulse encoder unit (basic) GND1 Battery Analog servo Flat interfac Power cable e unit (extension) This is for COP10M Analog Analog voltage 16i/18i COP10
  • Page 41.4 The connection of type F analog servo interface The ready signal and alarm signal from servo amplifier are 5VDC signals. 1.4.1 System structure 1) In case of using the built-in pulse coder FSSB Upper step Analog servo Analog interface unit servo J155 COP10M JV1nL amplifier COP10L J156A/J156B JF1
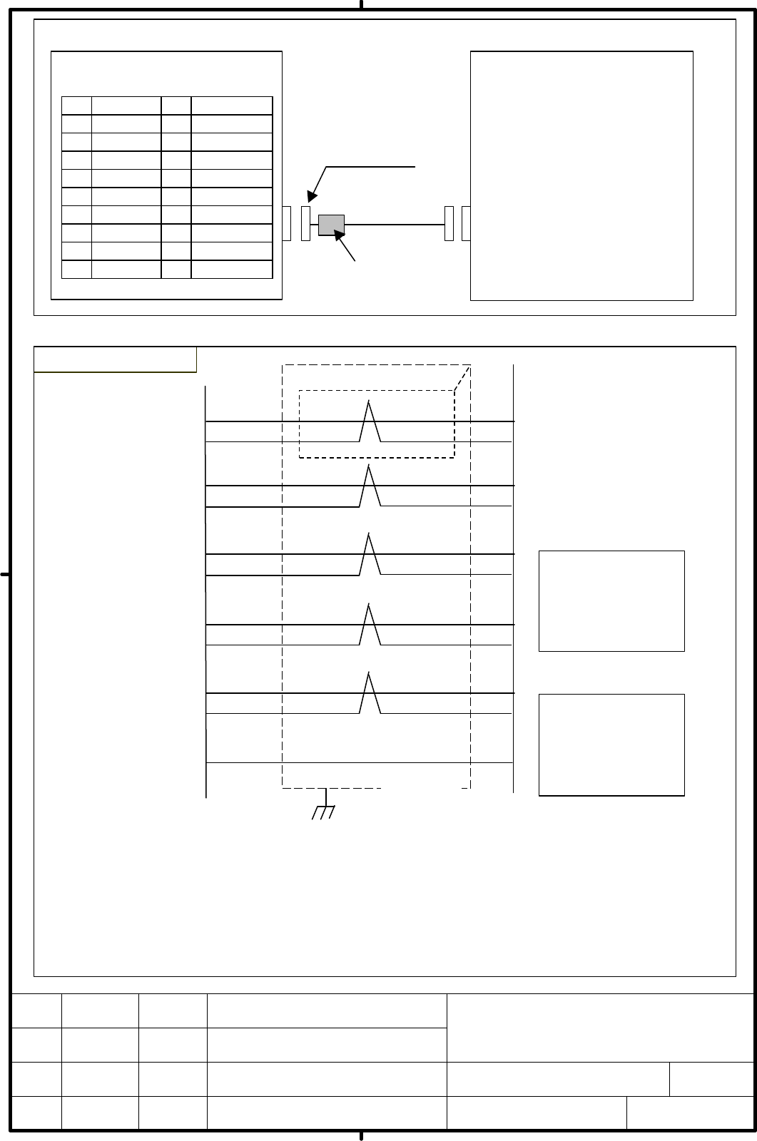
  • Page 5Analog servo interface unit Analog servo amplifier Connector JV1nL PCR-E20FS (PCR-EV20MDT) or 1 (A) 11 (B) PCR-E20FA 2 (*A) 12 (*B) Housing 3 *ENBL 13 OVL PCR- 4 0V 14 0V V20LB 5 (Z) 15 (ALM) 6 EC 16 0V 7 VCMD 17 (*SRDY) J155 8 0V 18 0V 9 (*Z) 19 (24VOUT) 10 *PRDY 20 *VRDY Ferrite core Note) The pin
  • Page 62) Cable J156A (Parallel interface) Cable J156A is for between analog servo interface unit (JF10nL) and pulse encoder and separate detector. Analog servo interface unit Pulse encoder or separate detector JF10nL (PCR-EV20MDT) 1 A 11 J156A 2 *A 12 0V 3 B 13 4 *B 14 0V Connector FI40-2015S 5 Z 15 Housi
  • Page 73) Cable J156B (Serial interface) Cable J156A is for between analog servo interface unit (JF10nL) and pulse encoder / separate detector. Analog servo interface unit Pulse encoder or separate detector JF10nL (PCR-EV20MDT) 1 SD 11 J156B 2 *SD 12 0V 3 13 4 14 0V Connector FI40-2015S 5 REQ 15 Housing 6
  • Page 84) Cable J37 Cable J37 is for between analog servo interface unit (JA4L) and the battery for separate detector. Analog servo interface unit (basic unit) Battery for separate detector JA4L (PCR-EV20MDT) 1 11 (M3 terminal) 2 12 J37 + - 3 0V 13 +6V 0V 4 14 5 15 6 16 7 +6V 17 Connector 8 18 PCR-E20FS or
  • Page 91.4.3 Details of signals ∗ ENBL is open collector. Input ON : connecting 0V Input OFF : open TITLE 16i/18i/21i analog servo interface unit connection material DRAW. NO. CUST A-77372EN SHEET EDIT. DATE DESIG. DESCRIPTION FANUC LTD 08
  • Page 10TITLE 16i/18i/21i analog servo interface unit connection material DRAW. NO. CUST A-77372EN EDIT. DATE DESIG. DESCRIPTION FANUC LTD SHEET 09
  • Page 11TITLE 16i/18i/21i analog servo interface unit connection material DRAW. NO. CUST A-77372EN SHEET EDIT. DATE DESIG. DESCRIPTION FANUC LTD 10
  • Page 12TITLE 16i/18i/21i analog servo interface unit connection material DRAW. NO. CUST A-77372EN SHEET EDIT. DATE DESIG. DESCRIPTION FANUC LTD 11
  • Page 131.5 The connection of type M analog servo interface The ready signal and alarm signal from servo amplifier is 24VDC signal. 1.5.1 System structure 1) In case of using the built-in pulse coder FSSB Upper step Analog servo Analog interface unit J157 servo JV1nL amplifier COP10M Pulse Analog COP10L enc
  • Page 14Analog servo interface unit Analog servo amplifier Connector JV1nL PCR-E20FS (PCR-EV20MDT) or 1 A 11 B PCR-E20FA 2 *A 12 *B Housing 3 (*ENBL) 13 (OVL) PCR-V20LB 4 (0V) 14 (0V) 5 Z 15 ALM 6 EC 16 0V J157 7 VCMD 17 *SRDY 8 (0V) 18 0V Ferrite core 9 *Z 19 24VOUT Note) The pin with ( ) 10 *PRDY 20 (*VRD
  • Page 154) Cable J158 Cable J158 is for analog servo interface unit (JV1nL) and analog servo amplifier. Analog servo interface unit Analog servo amplifier Connector JV1nL PCR-E20FS (PCR-EV20MDT) or 1 (PCA) 11 (PCB) PCR-E20FA 2 (*PCA) 12 (*PCB) Housing 3 (*ENBL) 13 (OVL) PCR- 4 (0V) 14 (0V) V20LB 5 (PCZ) 15
  • Page 161.5.3 Details of signals (1) VCMD, EC (Output) VCMD and EC are the speed command signals for the servo amplifier. Refer to 4.3 Details of signals (1). (2)A,*A,B,*B,Z,*Z (Input) These signals are received from the pulse coder. Refer to 4.3 Details of signal (7). (3)*PRDY (Output) *PRDY is the ready s
  • Page 171.6 Power connections 1.6.1 Power Connection The power of analog servo interface unit must be supplied from external power supply 24VDC. Analog servo interface unit External power supply (basic) CP11L DC24V+10%,-10% 1 +24V (including an 2 0V instantaneous value 3 and ripple) GND1 GND1 is signal grou
  • Page 181.7 Select switch SW1 The input level of ready signal (input) and alarm signal (input) of type F analog servo interface are different from the input level of ready signal (input) and alarm signal (input) of type M analog servo interface. Type F or Type M is decided by select switch SW1. Select switc
  • Page 191.9 Notice 1) Up to 4 axes are possible digital servo interface and analog servo interface in total for 21i. Up to 6 axes are possible digital servo interface and analog servo interface in total for 18i. Up to 8 axes are possible digital servo interface and analog servo interface in total for 16i. 2
  • Page 201.10 Parameter setting 1) In emergency stop condition, turn on the 16i/18i/21i. 2) Follow the procedure below to set parameters concerned with FSSB. In the case of using an analog servo interface unit, the FSSB automatic setting function is not available. It is necessary to set the value of No.1023,
  • Page 21APC 0 : Position detector is other than absolute pulse coder 1 : Position detector is absolute pulse coder APZ Zero position of absolute pulse coder is: 0 : Not established 1 : Established (Turns to 1 after establishment) To manually change the value of the APZ bit from 0 to1 without first returning
  • Page 224. Setting of bit parameter No. 7 6 5 4 3 2 1 0 1905 PM2 PM1 FSL Data type : Bit FSL The interface type between servo amplifier and servo software is 0 : Fast type 1 : Slow type Notice In case of analog servo axis, set 0 to this parameter. (Set an appropriate value to the axis connected to digital s
  • Page 235. Setting Address Conversion Table for slave number No. 1910 The value of Address conversion Table for Slave 1 (ATR) 1911 The value of Address conversion Table for Slave 2 (ATR) 1912 The value of Address conversion Table for Slave 3 (ATR) 1913 The value of Address conversion Table for Slave 4 (ATR)
  • Page 246. Setting connector number No. 1936 Connector number of first interface unit 1937 Connector number of second interface unit Date type : Byte Data range : 0 to 3 (in case of analog servo interface unit) 0 to 7 (in case of separate type detector interface unit) In case of using interface unit, set th
  • Page 25[Example2 : in case of one digital and one analog servo axis] FSSB X axis Digital servo amplifier Slave 1 FSSB 16i/18i/21i Analog servo interface unit JV11L Analog Y axis (Basic unit) amplifier Slave 3 Slave 2 Digital servo amplifier is slave 1 and analog servo interface unit is slave 2. Analog serv
  • Page 26Analog servo interface unit 1 (including the extension unit) is slave 1. Digital servo amplifier (2 axes) is slave 2 and slave 3. Analog servo interface unit 2 is slave 4. Analog servo amplifier is slave 5 to 9. No. 1910 1911 1912 1913 1914 1915 1916 1917 1918 1919 16 4 5 48 0 1 2 3 6 40 No. No.1023
  • Page 275)Power OFF/ON 6)Setting to validate the analog servo interface function Set the following of analog servo axis. No. 7 6 5 4 3 2 1 0 2009 ANALOG SERDMY Data type : Bit SERDMY The serial feedback dummy function is 0 : Invalidated 1 : Validated Notice In case of analog servo axis, set 1. ANALOG The an