
DRAW.
No.
TITLE
Pa
e
010
24
DESCRIPTIONDESIGNDATE EDIT
PWM Distribution Module
DESCRIPTIONS
A-72562E-029
FANUC LTD
NOTE
1 The ground plate to which the shield is connected must be placed as
close as possible to the PWM Distribution Module so that distance
between the ground plate and the PWM Distribution Module becomes
shortest.
2 In case that the cable is prepared by MTB, total resistance of 5V and
0V must be less than 2 ohm
.
3 Pulsecoder side connector can accept maximum 0.5mm
2
(wire
construction 20/0.18 or 104/0.08, diameter φ1.5 or less) wire and
sheath diameter is
φ5.7 to φ8.0. In case of using thicker wire or
cable, take measures described below.
The total resistance (Round
trip) of 5 V and 0 V must be
less than 2
Ω
.
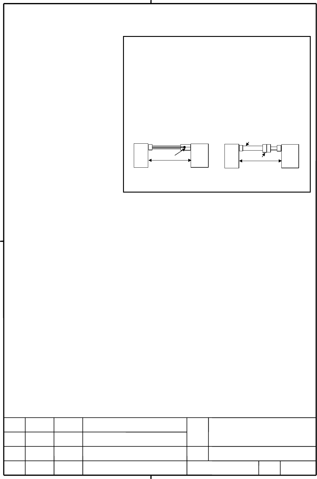
[Case 1] Cable conductor exceeds 0.5mm
. [Case 2] Sheath diameter of exceeds
8.
Soldering or crimping
Servo motor
PDM
Connector
Cable thicker than
8
PDM
Servo motor
The total resistance (Round
trip) of 5 V and 0 V must be
less than 2
Ω
.
4 In case of incremental Pulsecoder, 6V is not necessary to be
connected.
• Crimp tool specification
A06B-6114-K201/JN1S : For 0.3 mm
2
A06B-6114-K201/JN1L : For 0.18 mm
2
or 0.5 mm
2
•
Connector kit specification
A06B-6114-K204/S : Straight plug (including a contact)
A06B-6114-K204/E : Elbow plug (including a contact)
• Recommended cable
A66L-0001-0460 : Flexible cable 28m or less long
A66L-0001-0462 : Flexible cable 50m or less long
A66L-0001-0481 : Fixed cable 28m or less long
A66L-0001-0491 : Fixed cable 50m or less long