
Draw.
Title
Na
atomo 04.02.16 01
PAGE
4/14
FANUC LTD.
A-72587-0148EN
Descri
tionDesi
n Date Edit
.
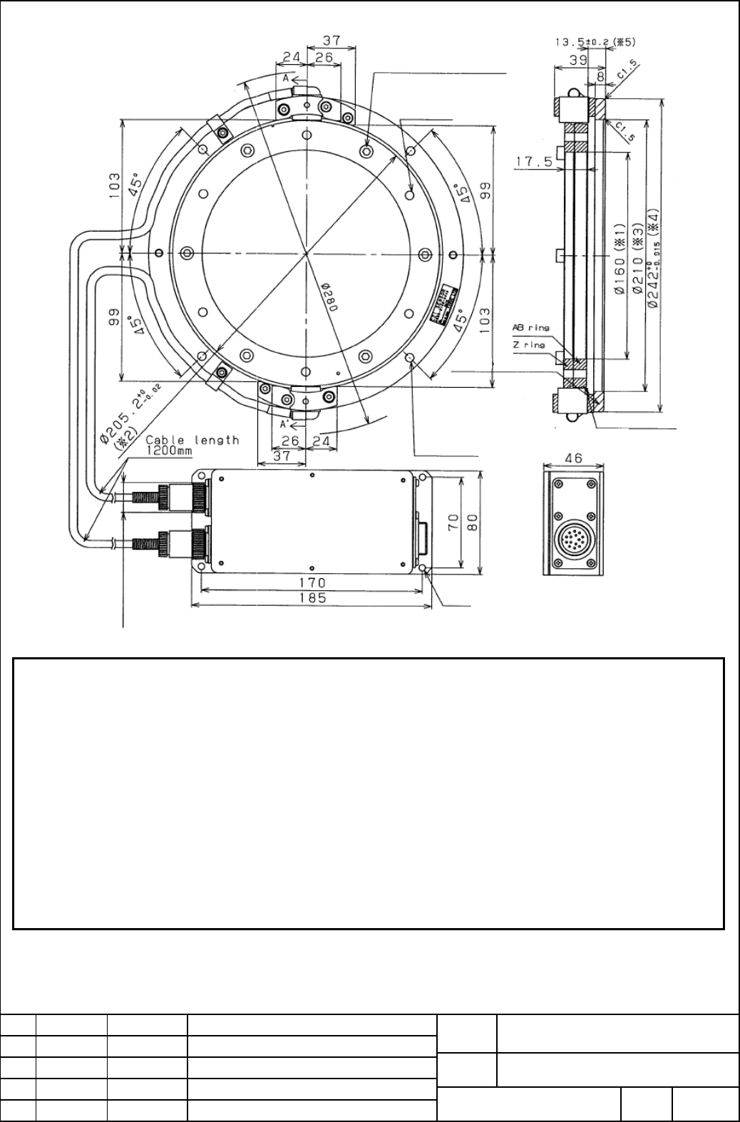
CZi Sensor (with Serial Interface)
(4).3 CZi Sensor 1024S
A860-2141-T611
This bolt for fixing AB/Z ring.
Fastened before shipment
For the sensor
mounting ring attachment
4-φ 6.6 drill
P.C.D.φ 226
For detection ring attachment
6-φ 6.6 drill
P.C.D.φ 183
For preamplifier attachment
4-φ 5
Sectional drawing
of A-A’
li
nment track
Sensor mounting ring
External diameter :
φ 23
RM15WTP-12P
(Hirose Co.Ltd)
Please see to the following section (5)“Mounting CZi Sensor” about mounting method
NOTE
・Tolerance of the inner diameter (*1) of the detection ring is designed from zero to the larger number. (*2) shows the tip
diameter of the AB ring.
・Tolerance of the inner diameter (*3) of the sensor mounting ring is designed from zero to the larger number. (*4) shows
outer diameter of the sensor mounting ring.
・(*5) shows the size between the bottom surface of the sensor mounting ring and bottom surface of the detection ring.
・Use CZi sensor at temperatures not exceeding 50℃.
・Since the detection ring, the sensor, and the preamplifier are adjusted in a set, please use them by the set.
・CZi sensor is a precise device, so please be careful in handling it. In particular, don’t apply shocks or stresses to the
sensor element.
・CZi sensor is an electronic device. Provide the protection on the machine against chips, oil, water, or any other harmful
substance.
・The waterproof performance of the preamplifier case is IP55. However, the coolant may penetrate if the case is exposed
in it continuously.
・Please do not add the vibration exceeding 1G to the preamplifier.
・Connect a shield wire.
・To ensure ease of maintenance, install CZi sensor in a location where it can be approached easily.
Sensor
head
Sensor
head