Power Mate i-Model D/H Descriptions Page 136

Descriptions
21. SETTING AND DISPLAY UNIT
B–63172EN/01
NC FUNCTION
118
The CRT/MDI is a cost–effective text–based setting/display unit.
The display section is a 9–inch monochrome CRT, and the setting section
uses a small keyboard.
Two types of setting sections are available. One uses alphanumeric keys,
while the other uses symbols.
400 (W) 200 (H) 244 (D) mm, 5.8 kg in weight
The common functions of the CRT/MDI can be used. This unit is the
same as that used with the FANUC Power Mate–MODEL D/H.
21.1.1
CRT/MDI

Contents Summary of Power Mate i-Model D/H Descriptions

  • Page 1GE Fanuc Automation Motion Control Products Power Mate i – Models D and H Motion Controllers Description Manual B-63172EN/01 September 1998
  • Page 2GFL-001 Warnings, Cautions, and Notes as Used in this Publication Warning Warning notices are used in this publication to emphasize that hazardous voltages, currents, temperatures, or other conditions that could cause personal injury exist in this equipment or may be associated with its use. In situ
  • Page 3SAFETY PRECAUTIONS This section describes the safety precautions related to the use of CNC units. It is essential that these precautions be observed by users to ensure the safe operation of machines equipped with a CNC unit (all descriptions in this section assume this configuration). Note that some
  • Page 4SAFETY PRECAUTIONS B–63172EN/01 1 DEFINITION OF WARNING, CAUTION, AND NOTE This manual includes safety precautions for protecting the user and preventing damage to the machine. Precautions are classified into Warning and Caution according to their bearing on safety. Also, supplementary information i
  • Page 5B–63172EN/01 SAFETY PRECAUTIONS 2 GENERAL WARNINGS AND CAUTIONS WARNING 1. Never attempt to machine a workpiece without first checking the operation of the machine. Before starting a production run, ensure that the machine is operating correctly by performing a trial run using, for example, the sing
  • Page 6SAFETY PRECAUTIONS B–63172EN/01 WARNING 8. Some functions may have been implemented at the request of the machine–tool builder. When using such functions, refer to the manual supplied by the machine–tool builder for details of their use and any related cautions. NOTE Data such as programs, parameter
  • Page 7B–63172EN/01 SAFETY PRECAUTIONS 3 WARNINGS AND CAUTIONS RELATED TO PROGRAMMING This section covers the major safety precautions related to programming. Before attempting to perform programming, read the supplied operator’s manual and programming manual carefully such that you are fully familiar with
  • Page 8SAFETY PRECAUTIONS B–63172EN/01 WARNING 6. Stroke check After switching on the power, perform a manual reference position return as required. Stroke check is not possible before manual reference position return is performed. Note that when stroke check is disabled, an alarm is not issued even if a s
  • Page 9B–63172EN/01 SAFETY PRECAUTIONS 4 WARNINGS AND CAUTIONS RELATED TO HANDLING This section presents safety precautions related to the handling of machine tools. Before attempting to operate your machine, read the supplied operator’s manual and programming manual carefully, such that you are fully fami
  • Page 10SAFETY PRECAUTIONS B–63172EN/01 WARNING 7. Workpiece coordinate system shift Manual intervention, machine lock, or mirror imaging may shift the workpiece coordinate system. Before attempting to operate the machine under the control of a program, confirm the coordinate system carefully. If the machin
  • Page 11B–63172EN/01 SAFETY PRECAUTIONS 5 WARNINGS RELATED TO DAILY MAINTENANCE WARNING 1. SRAM backup battery replacement Only those personnel who have received approved safety and maintenance training may perform this work. When replacing the batteries, be careful not to touch the high–voltage circuits (m
  • Page 12SAFETY PRECAUTIONS B–63172EN/01 WARNING 2. Absolute pulse coder battery replacement Only those personnel who have received approved safety and maintenance training may perform this work. When replacing the batteries, be careful not to touch the high–voltage circuits (marked and fitted with an insula
  • Page 13B–63172EN/01 SAFETY PRECAUTIONS WARNING 3. Fuse replacement Before replacing a blown fuse, however, it is necessary to locate and remove the cause of the blown fuse. For this reason, only those personnel who have received approved safety and maintenance training may perform this work. When replacing
  • Page 14B–63172EN/01 Table of Contents SAFETY PRECAUTIONS . . . . . . . . . . . . . . . . . . . . . . . . . . . . . . . . . . . . . . . . . . . . . . . . . . . . . s–1 I. GENERAL 1. GENERAL . . . . . . . . . . . . . . . . . . . . . . . . . . . . . . . . . . . . . . . . . . . . . . . . . . . . . . . . . . .
  • Page 15TABLE OF CONTENTS B–63172EN/01 4.7 BELL–SHAPED ACCELERATION/DECELERATION AFTER CUTTING FEED INTERPOLATION . . . . . . . . . . . . . . . . . . . . . . . . . . . . . . . . . . . . . . . . . . . . . . . . . . 35 4.8 LINEAR ACCELERATION/DECELERATION BEFORE CUTTING FEED INTERPOLATION . . 36 4.9 EXACT STO
  • Page 16B–63172EN/01 TABLE OF CONTENTS 11. PROGRAM CONFIGURATION . . . . . . . . . . . . . . . . . . . . . . . . . . . . . . . . . . . . . . . . . . . . . . 61 11.1 PROGRAM NUMBER . . . . . . . . . . . . . . . . . . . . . . . . . . . . . . . . . . . . . . . . . . . . . . . . . . . . . . . . . . . . . 62 11.
  • Page 17TABLE OF CONTENTS B–63172EN/01 17. AXES CONTROL . . . . . . . . . . . . . . . . . . . . . . . . . . . . . . . . . . . . . . . . . . . . . . . . . . . . . . . . . . 98 17.1 FOLLOW UP FUNCTION . . . . . . . . . . . . . . . . . . . . . . . . . . . . . . . . . . . . . . . . . . . . . . . . . . . . . . .
  • Page 18B–63172EN/01 TABLE OF CONTENTS 20. PROGRAM TEST FUNCTIONS . . . . . . . . . . . . . . . . . . . . . . . . . . . . . . . . . . . . . . . . . . . . 114 20.1 ALL–AXES MACHINE LOCK . . . . . . . . . . . . . . . . . . . . . . . . . . . . . . . . . . . . . . . . . . . . . . . . . . . . . 115 20.2 AUXILIAR
  • Page 19TABLE OF CONTENTS B–63172EN/01 23. PART PROGRAM STORAGE AND EDITING . . . . . . . . . . . . . . . . . . . . . . . . . . . . . . . . 150 23.1 FOREGROUND EDITING . . . . . . . . . . . . . . . . . . . . . . . . . . . . . . . . . . . . . . . . . . . . . . . . . . . . . . . . . 151 23.2 BACKGROUND EDITIN
  • Page 20B–63172EN/01 TABLE OF CONTENTS 27.8 FEED HOLD SIGNAL . . . . . . . . . . . . . . . . . . . . . . . . . . . . . . . . . . . . . . . . . . . . . . . . . . . . . . . . . . . . 168 27.9 RESET SIGNAL . . . . . . . . . . . . . . . . . . . . . . . . . . . . . . . . . . . . . . . . . . . . . . . . . . . . .
  • Page 21I. GENERA
  • Page 22B–63172EN/01 GENERAL 1. GENERAL 1 GENERAL The amount of cabling in the electrical unit of the machine can be significantly reduced by using a high–speed serial servo bus, which connects the CNC control unit and multiple servo amplifiers by a single optical fiber cable. Another innovation which simpl
  • Page 231. GENERAL GENERAL B–63172EN/01 Manuals related to the α/β–series servo motor Manual related to the α/β–series servo motor Manual name Order No. FANUC AC Servo Motor  series, Descriptions B–65142E FANUC AC Servo Motor  series, Parameter Manual B–65150E FANUC AC Spindle Motor  series, Descriptions
  • Page 24B–63172EN/01 GENERAL 2. LIST OF SPECIFICATIONS 2 LIST OF SPECIFICATIONS iD For Power Mate i–D (one–path control) Legend iD2 For Power Mate i–D (two–path control) f  Standard iH For Power Mate i–H F  Standard option l  Option L  Function included in another option –  Unused Item Specifications i
  • Page 252. LIST OF SPECIFICATIONS GENERAL B–63172EN/01 Item Specifications iD iD2 iH Dual position feedback l l l Fine acceleration/deceleration f f f HRV control f f f Inch/metric switching G20, G21 f f f Interlock All axes f f f each axis f f f each axial direction f f f High–speed interlock f f f Machine
  • Page 26B–63172EN/01 GENERAL 2. LIST OF SPECIFICATIONS Item Specifications iD iD2 iH External setting function of reference position f f f Manual handle feed 1 unit f – f 1 unit per path – f – 2 or 3 units l – l Manual handle feed magnification 1, 10, m, n f f f Manual handle interrupt f – f Incremental
  • Page 272. LIST OF SPECIFICATIONS GENERAL B–63172EN/01 Item Specifications iD iD2 iH Rapid traverse bell–shaped acceleration/ f f f deceleration Linear acceleration/deceleration after cutting feed f f f interpolation Bell–shaped acceleration/deceleration after f f f cutting feed interpolation Linear acceler
  • Page 28B–63172EN/01 GENERAL 2. LIST OF SPECIFICATIONS Item Specifications iD iD2 iH Pattern data input f f f Interrupt–type custom macro l l l Miscellaneous/spindle functions Miscellaneous function M with 8 digits f f f Miscellaneous function lock f f f High–speed M/S/T/B interface f f f Multiple miscellan
  • Page 292. LIST OF SPECIFICATIONS GENERAL B–63172EN/01 Item Specifications iD iD2 iH Registered programs 63 f f f 125 l l l 200 l l l 400 l l l Part program editing f f f Program protection f f f Background editing f f f Expanded part program editing f f f Playback f f f Setting, display Status display f f
  • Page 30B–63172EN/01 GENERAL 2. LIST OF SPECIFICATIONS Item Specifications iD iD2 iH Data protection key 4 types f f f Data input/output Reader/punch interface control 1 f f f Reader/punch interface control 2 Data line only (Function restrictions) f f f External I/O device control f f f External message Ala
  • Page 312. LIST OF SPECIFICATIONS GENERAL B–63172EN/01 Item Specifications iD iD2 iH PMC–SB5 5000 steps f f f Ladder monitor display 12000 steps l l l Basic instruction: instr ction 0.085µsec/step 0 085 sec/step 16000 steps l l l 24000 steps l l l PMC–SB6 5000 steps l l l Ladder monitor display 12000 steps
  • Page 32II. NC FUNCTIO
  • Page 33B–63172EN/01 NC FUNCTION PREFACE PREFACE This part describes the functions that can be performed on all models. For the functions available with each model, see the list of specifications in Part I. 15
  • Page 341. CONTROLLED AXES NC FUNCTION B–63172EN/01 1 CONTROLLED AXES 16
  • Page 35B–63172EN/01 NC FUNCTION 1. CONTROLLED AXES 1.1 CONTROLLED AXES Power Mate –D Item Power Mate i–D Power Mate i–D (two–path control) 1 axis for each path No. of basic controlled axes 1 axis (2 axes in total) Controlled axes expansion 1 axis (2 axes in total) 1 axis (total) Basic simultaneously contr
  • Page 361. CONTROLLED AXES NC FUNCTION B–63172EN/01 1.2 The user can assign any one of the following nine characters as the axis name: A, B, C, U, V, W, X, Y, and Z. Parameter No.1020 is used to AXIS NAMES determine the name of each axis. When this parameter is set to 0 or a character other than the valid c
  • Page 37B–63172EN/01 NC FUNCTION 1. CONTROLLED AXES 1.3 INCREMENT SYSTEM Name of Least input Least command increment Maximum stroke increment increment system 0.01 mm 0.01 mm 999999.99 mm IS–A 0.001 inch 0.001 inch 99999.999 inch 0.01 deg 0.01 deg 999999.99 deg 0.001 mm 0.001 mm 99999.999 mm IS–B 0.0001 inc
  • Page 382. PREPARATORY FUNCTIONS NC FUNCTION B–63172EN/01 2 PREPARATORY FUNCTIONS Table 2 G code list (1/2) G code Group Function G00 Positioning G01 Linear interpolation 01 G02 Circular interpolation (clockwise) G03 Circular interpolation (counterclockwise) G04 Dwell, Exact stop G09 Exact stop 00 G10 Data
  • Page 39B–63172EN/01 NC FUNCTION 2. PREPARATORY FUNCTIONS Table 2 G code list (2/2) G code Group Function G73 Peck drilling cycle G74 Counter tapping cycle G76 Fine boring G80 Canned cycle cancel G81 Drilling cycle, spot boring G82 Drilling cycle, counter boring G83 09 Peck drilling cycle G84 Tapping cycle
  • Page 403. INTERPOLATION FUNCTIONS NC FUNCTION B–63172EN/01 3 INTERPOLATION FUNCTIONS 22
  • Page 41B–63172EN/01 NC FUNCTION 3. INTERPOLATION FUNCTIONS 3.1 Positioning is done with each axis separately (Non linear interpolation type positioning). POSITIONING (G00) Either of the following tool paths can be selected accroding to bit 1 of parameter No. 1401. D Non linear interpolation positioning The
  • Page 423. INTERPOLATION FUNCTIONS NC FUNCTION B–63172EN/01 3.2 Linear interpolation is done with tangential direction feed rate specified by the F code. LINEAR INTERPOLATION X axis (G01) End point (200, 150) (Program example) G01 G90 X200. Z150. F200 ; Start point Z axis Format G01 IP _ F_ ; F : Feedrate 2
  • Page 43B–63172EN/01 NC FUNCTION 3. INTERPOLATION FUNCTIONS 3.3 Circular interpolation of optional angle from 0° to 360 ° can be specified. G02: Clockwise (CW) circular interpolation CIRCULAR G03: Counterclockwise (CCW) circular interpolation INTERPOLATION (G02, G03) Yp Xp Zp G03 G03 G03 G02 G02 G02 Xp Zp Y
  • Page 443. INTERPOLATION FUNCTIONS NC FUNCTION B–63172EN/01 3.4 The function in which contour control is done in converting the command programmed in a cartesian coordinate system to the movement of a linear POLAR COORDINATE axis (movement of a tool) and the movement of a rotary axis (rotation of INTERPOLAT
  • Page 45B–63172EN/01 NC FUNCTION 4. FEED FUNCTIONS 4 FEED FUNCTIONS 27
  • Page 464. FEED FUNCTIONS NC FUNCTION B–63172EN/01 4.1 Positioning of each axis is done in rapid motion by the positioning command (G00). RAPID TRAVERSE There is no need to program rapid traverse rate, because the rates are set in the parameter (per axis). Least command increment Rapid traverse rate range 0
  • Page 47B–63172EN/01 NC FUNCTION 4. FEED FUNCTIONS 4.2 Feed rates of linear interpolation (G01), and circular interpolation (G02, G03) are commanded with numbers after the F code. CUTTING FEED RATE 4.2.1 In cutting feed, it is controlled so that speed of the tangential direction is Tangential Speed always t
  • Page 484. FEED FUNCTIONS NC FUNCTION B–63172EN/01 4.2.4 With the per revolution feed mode G95, tool feed rate per revolution of Per Revolution Feed the spindle is directly commanded by numeral after F. A position coder must be mounted on the Power Mate. (G95) Least command increment Cutting feed rate range
  • Page 49B–63172EN/01 NC FUNCTION 4. FEED FUNCTIONS 4.3 OVERRIDE 4.3.1 The per minute feed (G94) and per rotation feed (G95) can be overrided Feed Rate Override by: 0 to 254% (per every 1%). The feedrate override function is disabled in tapping or other operations for which the override function is prohibite
  • Page 504. FEED FUNCTIONS NC FUNCTION B–63172EN/01 4.4 Acceleration and deceleration is performed when starting and ending movement, resulting in smooth start and stop. AUTOMATIC Automatic acceleration/deceleration is also performed when feed rate ACCELERATION/ changes, so change in speed is also smoothly d
  • Page 51B–63172EN/01 NC FUNCTION 4. FEED FUNCTIONS 4.5 The function for rapid traverse bell–shaped acceleration/deceleration increases or decreases the rapid traverse feedrate smoothly. RAPID TRAVERSE This reduces the shock to the machine system due to changing BELL–SHAPED acceleration when the feedrate is
  • Page 524. FEED FUNCTIONS NC FUNCTION B–63172EN/01 4.6 LINEAR Speed ACCELERATION/ DECELERATION AFTER CUTTING FEED INTERPOLATION Time TC TC In the linear acceleration/deceleration, the delay for the command caused by the acceleration/ deceleration becomes 1/2 compared with that in exponential acceleration/de
  • Page 53B–63172EN/01 NC FUNCTION 4. FEED FUNCTIONS 4.7 BELL–SHAPED Feedrate ACCELERATION/ B DECELERATION F AFTER CUTTING FEED INTERPOLATION F/2 A 0 TC/2 Time TC TC As shown above in the quadratic curve, it is possible to accelerate and decelerate the cutting feedrate. When the acceleration and deceleration
  • Page 544. FEED FUNCTIONS NC FUNCTION B–63172EN/01 4.8 In response to the cutting feed command, the feedrate before interpolation, the command feedrate can be directly accelerated/ LINEAR decelerated. This enables a machined shape error caused by the delay of ACCELERATION/ acceleration/deceleration to be el
  • Page 55B–63172EN/01 NC FUNCTION 4. FEED FUNCTIONS 4.9 Move command in blocks commanded with G09 decelerates at the end point, and in–position check is performed. G09 command is not EXACT STOP (G09) necessary for deceleration at the end point for positioning (G00) and in–position check is also done automati
  • Page 565. REFERENCE POSITION NC FUNCTION B–63172EN/01 5 REFERENCE POSITION 38
  • Page 57B–63172EN/01 NC FUNCTION 5. REFERENCE POSITION 5.1 Positioning to the reference position can be done by manual operation. With jogging mode (JOG), manual reference position return (ZRN) MANUAL signals, and signal for selecting manual reference position return axis (±J1 REFERENCE to ±J8) on, the tool
  • Page 585. REFERENCE POSITION NC FUNCTION B–63172EN/01 5.3 AUTOMATIC REFERENCE POSITION RETURN (G28, G29) D Return to reference With the G28 command, the commanded axis is positioned to the position (G28) reference position via the commanded point. After positioning, the reference position return end lamp l
  • Page 59B–63172EN/01 NC FUNCTION 5. REFERENCE POSITION 5.4 This function is used to check whether the reference position return command was performed correctly. REFERENCE When G27 is commanded, the commanded axis is positioned to the POSITION RETURN specified position, reference position return end signal i
  • Page 605. REFERENCE POSITION NC FUNCTION B–63172EN/01 5.6 If the jog feed (JOG) mode is selected, and a return signal (RTN1n, RTN2n, or RTN3n) is set to 1, rapid traverse occurs to the reference RETURN SIGNAL position specified by the return signal. If the signal becomes 0 during rapid traverse, axis movem
  • Page 61B–63172EN/01 NC FUNCTION 5. REFERENCE POSITION 5.8 The machine is moved to a position to be specified as its reference position, for example, in the jog feed mode. Setting the reference position REFERENCE external setting signal to 1 specifies the current position of the relevant POSITION axis as th
  • Page 626. COORDINATE SYSTEMS NC FUNCTION B–63172EN/01 6 COORDINATE SYSTEMS By teaching the CNC the position the tool is to arrive, the CNC moves the tool to that position. The position is specified using coordinates on a certain coordinate system. There are two types of coordinate systems. D Machine coordi
  • Page 63B–63172EN/01 NC FUNCTION 6. COORDINATE SYSTEMS 6.1 Machine coordinate system is a coordinate system set with a zero point proper to the machine system. MACHINE A coordinate system in which the reference position becomes the COORDINATE parameter-preset coordinate value when manual reference point ret
  • Page 646. COORDINATE SYSTEMS NC FUNCTION B–63172EN/01 6.2 A coordinate system in which the zero point is set to a fixed point on the workpiece, to make programming simple. WORKPIECE A workpiece coordinate system may be set by using one of the following COORDINATE methods: SYSTEM (1) Using G92 (2) Automatic
  • Page 65B–63172EN/01 NC FUNCTION 6. COORDINATE SYSTEMS 6.3 A plane subject to circular interpolation or drilling can be selected by specifying a G code. PLANE SELECTION (G17, G18, G19) G code Selected plane Xp Yp Zp G17 Xp–Yp plane X axis or an Y axis or an Z axis or an G18 Zp–Xp plane axis parallel axis pa
  • Page 667. COORDINATE VALUE AND DIMENSION NC FUNCTION B–63172EN/01 7 COORDINATE VALUE AND DIMENSION 48
  • Page 677. COORDINATE VALUE AND B–63172EN/01 NC FUNCTION DIMENSION 7.1 There are two ways to command travels to the axes; the absolute command, and the incremental command. In the absolute command, ABSOLUTE AND coordinate value of the end point is programmed; in the incremental INCREMENTAL command, move dis
  • Page 687. COORDINATE VALUE AND DIMENSION NC FUNCTION B–63172EN/01 7.2 Conversion of inch and metric input can be commanded by the G code command. INCH/METRIC G20 : Inch input CONVERSION G21 : Metric input (G20, G21) Whether the output is in inch system or metric system is parameter–set when the machine is
  • Page 697. COORDINATE VALUE AND B–63172EN/01 NC FUNCTION DIMENSION 7.4 A linear axis refers to an axis moving linearly, and for it values are specified in mm or inches. LINEAR AXIS AND A rotation axis refers to a rotating axis, and for it values are specified in ROTATION AXIS degrees. For rotation axes, not
  • Page 708. SPINDLE FUNCTIONS (ONLY FOR Power Mate–D) NC FUNCTION B–63172EN/01 8 SPINDLE FUNCTIONS (ONLY FOR Power Mate–D) 52
  • Page 718. SPINDLE FUNCTIONS B–63172EN/01 NC FUNCTION (ONLY FOR Power Mate–D) 8.1 Specify the spindle speed with up to five digits immediately after address S. The 5–digit numeric value is output to the PMC as a 32–bit binary code. S CODE OUTPUT The code is maintained until another S is specified. The maxim
  • Page 728. SPINDLE FUNCTIONS (ONLY FOR Power Mate–D) NC FUNCTION B–63172EN/01 8.5 Whether to perform constant surface speed control is specified using G96 or G97. CONSTANT G96 : Constant surface speed control mode SURFACE SPEED G97 : Constant surface speed control cancel mode CONTROL If the surface speed is
  • Page 73B–63172EN/01 NC FUNCTION 9. TOOL FUNCTIONS 9 TOOL FUNCTIONS 55
  • Page 749. TOOL FUNCTIONS NC FUNCTION B–63172EN/01 9.1 A tool can be selected by specifying a tool number of up to eight digits immediately after address T. The tool number is output to the PMC in a T CODE OUTPUT 32–bit binary code. This code is kept till the next T code is commanded. Maximum input digits a
  • Page 75B–63172EN/01 NC FUNCTION 10. MISCELLANEOUS FUNCTIONS 10 MISCELLANEOUS FUNCTIONS 57
  • Page 7610. MISCELLANEOUS FUNCTIONS NC FUNCTION B–63172EN/01 10.1 When up to eight digits immediately after address M are specified, a 32–bit binary code is output. The maximum number of input digits can MISCELLANEOUS be specified with a parameter. This binary code is used for on/off control FUNCTIONS of th
  • Page 77B–63172EN/01 NC FUNCTION 10. MISCELLANEOUS FUNCTIONS 10.3 The communication of execution command signal (strobe signal) and completion signal is the M/S/T function were simplified to realize a HIGH–SPEED M/S/T high–speed execution of M/S/T function. INTERFACE The time required for cutting can be min
  • Page 7810. MISCELLANEOUS FUNCTIONS NC FUNCTION B–63172EN/01 NOTE 1 Either the conventional system or the high–speed system can be selected for communication of strobe signal and completion signal. 2 In the conventional system, only one completion signal is available for all functions of M/S/T. However, in
  • Page 79B–63172EN/01 NC FUNCTION 11. PROGRAM CONFIGURATION 11 PROGRAM CONFIGURATION 61
  • Page 8011. PROGRAM CONFIGURATION NC FUNCTION B–63172EN/01 11.1 A program number is given to each program to distinguish a program from other programs. The program number is given at the head of each PROGRAM NUMBER program, with a 4–digit number (when the 8–digit program number option is used, however, eigh
  • Page 81B–63172EN/01 NC FUNCTION 11. PROGRAM CONFIGURATION 11.4 When there are fixed sequences or frequently repeated patterns in a program, programming can be simplified by entering these pattern as sub SUB PROGRAM programs to the memory. Sub program is called by M98, and M99 commands return from the sub p
  • Page 8211. PROGRAM CONFIGURATION NC FUNCTION B–63172EN/01 11.7 The following table shows the basic addresses and the range of values to be specified. The range, however, is that of CNC. Note that the range of BASIC ADDRESSES the machine is different from this. AND COMMAND VALUE RANGE D Basic Addresses and
  • Page 83B–63172EN/01 NC FUNCTION 11. PROGRAM CONFIGURATION 11.8 The variable block word address format with decimal point is adopted as tape format. See List of Tape Format in Appendix C for details on tape TAPE FORMAT formats. 11.9 Label skip function is valid in the following cases, and “LSK” is displayed
  • Page 8412. FUNCTIONS TO SIMPLIFY PROGRAMMING NC FUNCTION B–63172EN/01 12 FUNCTIONS TO SIMPLIFY PROGRAMMING 66
  • Page 8512. FUNCTIONS TO SIMPLIFY B–63172EN/01 NC FUNCTION PROGRAMMING 12.1 Canned cycle is a function to simplify commands for machining (boring, drilling, or tapping, etc. The canned cycle has the positioning plane and CANNED CYCLES the drilling axis. The positioning plane is specified with the plane (G73
  • Page 8612. FUNCTIONS TO SIMPLIFY PROGRAMMING NC FUNCTION B–63172EN/01 12 types of canned cycles (1/4) Operation G code Function G98 mode G99 mode Initial level R point R point R point level G73 q d q d High–speed peck drilling cycle q q (Note 1) d d q q Z point Z point Initial level Spindle CCW Spindle P C
  • Page 8712. FUNCTIONS TO SIMPLIFY B–63172EN/01 NC FUNCTION PROGRAMMING 12 types of canned cycles (2/4) Operation G code Function G98 mode G99 mode Initial level Drilling cycle G81 (Spot drilling) R point Positon R R point level Z point Z point Initial level Drilling cycle G82 R point (Counter R point R poin
  • Page 8812. FUNCTIONS TO SIMPLIFY PROGRAMMING NC FUNCTION B–63172EN/01 12 types of canned cycles (3/4) Operation G code Function G98 mode G99 mode Initial level Spindle CW Spindle CW P Tapping cycle G84 P Positon R Positon R R point level Z point Z point P P Spindle CCW Spindle CCW Initial level Boring cycl
  • Page 8912. FUNCTIONS TO SIMPLIFY B–63172EN/01 NC FUNCTION PROGRAMMING 12 types of canned cycles (4/4) Operation G code Function G98 mode G99 mode Spindle CW Initial level Spindle CW Boring cycle G88 R point R point level Z point Z point P P Dwell Dwell Spindle stop Spindle stop Initial level Boring cycle G
  • Page 9012. FUNCTIONS TO SIMPLIFY PROGRAMMING NC FUNCTION B–63172EN/01 When the drilling axis is Z axis, machining data in the canned cycle is commanded as follows: Format Gff X_ Z_ R_ Q_ P_ K_ F_ ; Drilling mode Gff ; See previous table. Drilling position dataX ; Command position of the hole. Z : Specify h
  • Page 9112. FUNCTIONS TO SIMPLIFY B–63172EN/01 NC FUNCTION PROGRAMMING 12.1.1 G80 cancels canned cycles. Canned Cycle Cancel (G80) Format G80 ; Explanations All canned cycles are canceled to perform normal operation. Point R and point Z are cleared. This means that R = 0 and Z = 0 in incremental mode. Other
  • Page 9212. FUNCTIONS TO SIMPLIFY PROGRAMMING NC FUNCTION B–63172EN/01 12.2 In tapping, the feed amount of drilling axis for one rotation of spindle should be equal to the pitch of screw of tapper. Namely, the following RIGID TAP (ONLY conditions must be satisfied in the best tapping: FOR Power Mate i–D) P=
  • Page 9312. FUNCTIONS TO SIMPLIFY B–63172EN/01 NC FUNCTION PROGRAMMING The Control System of Spindle during Rigid Tapping Gear ratio of spindle to Least command increment position coder (1 : p) (detection unit ) deg 1:1 0.088 (1x360 / 4096) 1:2 0.176 (2x360 / 4096) 1:4 0.352 (4x360 / 4096) 1:8 0.703 (8x360
  • Page 9412. FUNCTIONS TO SIMPLIFY PROGRAMMING NC FUNCTION B–63172EN/01 12.2.1 When the spindle motor is controlled in rigid mode as if it were a servo Rigid Tapping (G84) motor, a tapping cycle can be sped up. Format G84 X_ Z_ R_ P_ F_ ; X_ : Hole position data Z_ : The distance from point R to the bottom o
  • Page 9512. FUNCTIONS TO SIMPLIFY B–63172EN/01 NC FUNCTION PROGRAMMING 12.2.2 When the spindle motor is controlled in rigid mode as if it were a servo Left–handed Rigid motor, tapping cycles can be sped up. Tapping Cycle (G74) Format G74 X_ Z_ R_ P_ F_ ; X_ : Hole position data Z_ : The distance from point
  • Page 9612. FUNCTIONS TO SIMPLIFY PROGRAMMING NC FUNCTION B–63172EN/01 12.2.3 Tapping a deep hole in rigid tapping mode may be difficult due to chips Peck Rigid Tapping sticking to the tool or increased cutting resistance. In such cases, the peck rigid tapping cycle is useful. Cycle (G84 or G74) In this cyc
  • Page 97B–63172EN/01 NC FUNCTION 13. TOOL COMPENSATION FUNCTION 13 TOOL COMPENSATION FUNCTION 79
  • Page 9813. TOOL COMPENSATION FUNCTION NC FUNCTION B–63172EN/01 13.1 By setting the difference between tool length assumed when programming and the actual tool length as offsets, workpiece can be TOOL LENGTH machined according to the size commanded by the program, without COMPENSATION changing the program.
  • Page 99B–63172EN/01 NC FUNCTION 13. TOOL COMPENSATION FUNCTION 13.2 TOOL COMPENSATION MEMORY 13.2.1 Tool offset amount range which can be set is as follows: Tool Compensation Increment system Metric input Inch input Memory IS–B "999.999mm "99.9999inch IS–C "999.9999mm "99.9999inch 13.3 D 99 tool offsets Of
  • Page 10014. ACCURACY COMPENSATION FUNCTION NC FUNCTION B–63172EN/01 14 ACCURACY COMPENSATION FUNCTION 82
  • Page 10114. ACCURACY COMPENSATION B–63172EN/01 NC FUNCTION FUNCTION 14.1 The errors caused by machine position, as pitch error of the feed screw, can be compensated. This function is for better machining precision. STORED PITCH As the offset data are stored in the memory as parameters, compensations ERROR o
  • Page 10215. MEASUREMENT FUNCTIONS NC FUNCTION B–63172EN/01 15 MEASUREMENT FUNCTIONS 84
  • Page 103B–63172EN/01 NC FUNCTION 15. MEASUREMENT FUNCTIONS 15.1 By commanding axis move after G31, linear interpolation can be commanded like in G01. If an external skip signal is input during this SKIP FUNCTION command, the remainder of this command is cancelled, and program (G31) skips to the next block.
  • Page 10415. MEASUREMENT FUNCTIONS NC FUNCTION B–63172EN/01 15.2 n blocks with either of P1 to P4 following G31 commanded, the coordinate value where skip signals (4 types) were input is stored in the MULTI–STEP SKIP custom macro variables, and at the same time, the remaining movement FUNCTION of the block i
  • Page 105B–63172EN/01 NC FUNCTION 16. CUSTOM MACRO 16 CUSTOM MACRO 87
  • Page 10616. CUSTOM MACRO NC FUNCTION B–63172EN/01 16.1 A function covering a group of instructions is stored in the memory like the sub program. The stored function is represented by one instruction CUSTOM MACRO and is executed by simply writing the represented instruction. The group of instructions registe
  • Page 107B–63172EN/01 NC FUNCTION 16. CUSTOM MACRO Format G65 Pp Rr Aa Bb Kk ; p : Macro number of the bolt hole circle r : Radius a : Initial angle b : Angle between holes k : Number of holes With this function, the CNC can be graded up by the user himself. Custom macro bodies may be offered to the users by
  • Page 10816. CUSTOM MACRO NC FUNCTION B–63172EN/01 - IF[]THEN macro statement If the specified conditional expression is satisfied, a branch to sequence number n occurs. If the specified condition is not satisfied, the next block is executed. - WHILE () DO m (m
  • Page 109B–63172EN/01 NC FUNCTION 16. CUSTOM MACRO - Macro call by G codes The macro can also be called by the parameter–set G codes. Instead of commanding: N_ G65 Pffff ; macro can be called just by commanding: N_ G** ;. G code for calling the macro, and macro pro
  • Page 11016. CUSTOM MACRO NC FUNCTION B–63172EN/01 - Sub program call by T code By setting parameter, sub program can be called by T codes. When commanded: N_ G_ X_ Y_ … Tt ; , the same operation is done as when commanded: #149 = t; N_ G_ X_ Y_ … M98 P9000; . The T type code t is stored as arguments of commo
  • Page 111B–63172EN/01 NC FUNCTION 16. CUSTOM MACRO D External output Value of variables or characters can be output to external devices via the commands reader/puncher interface with custom macro command. Results in measurement is output using custom macro. D Limitations - Usable variables See Item ”D Types
  • Page 11216. CUSTOM MACRO NC FUNCTION B–63172EN/01 16.2 When custom macro interruption signal is input during automatic operation, the block currently under execution is interrupted and the INTERRUPTION TYPE specified custom macro is activated. After execution of this custom CUSTOM MACRO macro, it returns to
  • Page 113B–63172EN/01 NC FUNCTION 16. CUSTOM MACRO 16.3 With this function, custom macro interruption signal can be input on detection of tool break, tool change cycle can be executed by custom PATTERN DATA macro, and machining is continued. INPUT This function simplifies program creation for CNC machining.
  • Page 11416. CUSTOM MACRO NC FUNCTION B–63172EN/01 16.4 There are two types of NC programs; those which, once created, are scarcely changed, and those which are changed for each machining type. MACRO EXECUTER The former are programs created by the custom macro, and the latter are FUNCTION machining programs.
  • Page 115B–63172EN/01 NC FUNCTION 16. CUSTOM MACRO 16.5 As with the conversational macro function of macro executors/compilers, the C language executor function is used to customize screens and include C LANGUAGE unique operations. Application programs for display and operation can EXECUTER be created in sta
  • Page 11617. AXES CONTROL NC FUNCTION B–63172EN/01 17 AXES CONTROL 98
  • Page 117B–63172EN/01 NC FUNCTION 17. AXES CONTROL 17.1 Normally, the machine is controlled to move to a commanded position. However, when the follow up function is applied, actual position in the FOLLOW UP CNC is revised according to the move of the machine. FUNCTION Follow up function is activated when: –
  • Page 11817. AXES CONTROL NC FUNCTION B–63172EN/01 17.5 It is possible to detach or attach rotary tables and attachments with this function. Switch control axis detach signal according to whether the CONTROL AXIS rotary tables and attachments are attached or detached. When this signal DETACH is on, the corre
  • Page 119B–63172EN/01 NC FUNCTION 17. AXES CONTROL 17.7 Positioning can be performed by butting against a mechanical stop while applying a torque limit to the servo motor. TORQUE LIMIT A torque limit can be set using three methods: parameter input, DI signal FUNCTION input, and input from the PMC. A torque l
  • Page 12017. AXES CONTROL NC FUNCTION B–63172EN/01 17.8 This function usually checks position deviation amount during motion. If the amount exceeds the parameter set “feed stop position deviation FEED STOP amount”, pulse distribution and acceleration/deceleration control is stopped for the while exceeding, a
  • Page 121B–63172EN/01 NC FUNCTION 17. AXES CONTROL 17.9 The PMC can directly control any given axis, independently of the CNC. In other words, moving the tool along axes that are not controlled by the AXIS CONTROL WITH CNC is possible by entering commands, such as those specifying movimg PMC distance and fee
  • Page 12217. AXES CONTROL NC FUNCTION B–63172EN/01 17.10 When enough torque for driving a large table cannot be produced by only one motor, two motors can be used for movement along a single axis. TANDEM CONTROL Positioning is performed by the main motor only. The sub motor is used only to produce torque. Wi
  • Page 123B–63172EN/01 NC FUNCTION 18. MANUAL OPERATION 18 MANUAL OPERATION 105
  • Page 12418. MANUAL OPERATION NC FUNCTION B–63172EN/01 18.1 D Jogging Each axis can be moved in the + or – direction for the time the button MANUAL FEED is pressed. Feed rate is the parameter set speed with override of: 0 – 655.34%, 0.01% step. The parameter set speed can be set to each axis. D Manual rapid
  • Page 125B–63172EN/01 NC FUNCTION 18. MANUAL OPERATION 18.4 A 2nd, as well as 3rd manual pulse generator can be rotated to move the axis for the equivalent distance. Manual handle feed of 3 axes can be done MANUAL HANDLE at a time. Multiplier is common to 1st, 2nd and 3rd manual pulse FEED (2ND, 3RD) generat
  • Page 12619. AUTOMATIC OPERATION NC FUNCTION B–63172EN/01 19 AUTOMATIC OPERATION 108
  • Page 127B–63172EN/01 NC FUNCTION 19. AUTOMATIC OPERATION 19.1 OPERATION MODE 19.1.1 The part program can be read and executed block by block from the input DNC Operation (Only device connected to the reader/puncher interface. for Power Mate i–D) 19.1.2 Program registered in the memory can be executed. Memor
  • Page 12819. AUTOMATIC OPERATION NC FUNCTION B–63172EN/01 19.2 SELECTION OF EXECUTION PROGRAMS 19.2.1 Program number currently in need can be searched from the programs Program Number registered in memory operating the MDI. Search 19.2.2 The sequence number of the program on the currently selected memory Seq
  • Page 129B–63172EN/01 NC FUNCTION 19. AUTOMATIC OPERATION 19.3 ACTIVATION OF AUTOMATIC OPERATION 19.3.1 Set operation mode to memory operation, MDI operation, or DNC Cycle Start operation, press the cycle start button, and automatic operation starts. 19.4 EXECUTION OF AUTOMATIC OPERATION 19.4.1 Buffer regist
  • Page 13019. AUTOMATIC OPERATION NC FUNCTION B–63172EN/01 19.5 AUTOMATIC OPERATION STOP 19.5.1 Automatic operation is stopped after executing the M00 (program stop) Program Stop commanded block. When the optional stop switch on the operator’s panel is turned on, the M01 (optional stop) commanded block is exe
  • Page 131B–63172EN/01 NC FUNCTION 19. AUTOMATIC OPERATION 19.7 When tapping is stopped, either as a result of an emergency stop or a reset, the tap may cut into the workpiece. The tap can subsequently be drawn RETRACTION FOR out by using a PMC signal. This function automatically stores TAPPING information re
  • Page 13220. PROGRAM TEST FUNCTIONS NC FUNCTION B–63172EN/01 20 PROGRAM TEST FUNCTIONS 114
  • Page 133B–63172EN/01 NC FUNCTION 20. PROGRAM TEST FUNCTIONS 20.1 In machine lock condition, the machine does not move, but the position display is updated as if the machine were moving. Machine lock is valid ALL–AXES MACHINE even in the middle of a block. LOCK 20.2 This function inhibits transmitting of M,
  • Page 13421. SETTING AND DISPLAY UNIT NC FUNCTION B–63172EN/01 21 SETTING AND DISPLAY UNIT The available operational devices include the setting and display unit attached to the CNC, the machine operator’s panel, and external input/output devices such as a tape reader, PPR, Handy File, Floppy Cassette, and F
  • Page 135B–63172EN/01 NC FUNCTION 21. SETTING AND DISPLAY UNIT 21.1 With the Power Mate i, the setting/display units listed below can be used. SETTING AND (1) CRT/MDI . . . . . . . . . . . . . . . . . . . . . . . . . . . . . . . . . . 21.1.1 DISPLAY UNIT (2) LCD/MDI . . . . . . . . . . . . . . . . . . . . .
  • Page 13621. SETTING AND DISPLAY UNIT NC FUNCTION B–63172EN/01 21.1.1 The CRT/MDI is a cost–effective text–based setting/display unit. CRT/MDI The display section is a 9–inch monochrome CRT, and the setting section uses a small keyboard. Two types of setting sections are available. One uses alphanumeric keys
  • Page 137B–63172EN/01 NC FUNCTION 21. SETTING AND DISPLAY UNIT 21.1.2 The LCD/MDI is a text–based setting/display unit. The LCD/MDI is LCD/MDI both thin and lightweight. The display section is a 7.2–inch monochrome LCD, and the setting section uses a small keyboard. Two types of setting sections are availabl
  • Page 13821. SETTING AND DISPLAY UNIT NC FUNCTION B–63172EN/01 21.1.3 The picture display CRT/MDI is a setting/display unit that allows bit map Picture Display data such as figures and photographs to be stored and displayed on the screen. CRT/MDI Text data created with the macro executor can be combined with
  • Page 139B–63172EN/01 NC FUNCTION 21. SETTING AND DISPLAY UNIT 21.1.4 The separate MDI is a setting unit that uses a small keyboard, which is Separate MDI used in combination with a separate CRT or LCD unit. A display unit and this setting unit can be oriented vertically. Two types are available. One uses al
  • Page 14021. SETTING AND DISPLAY UNIT NC FUNCTION B–63172EN/01 21.1.5 The separate MDI for picture display is a setting unit that uses a small Separate MDI for keyboard, which is used in combination with a separate CRT or LCD unit. This setting unit has a picture display function. (See Section 21.1.3.) Pictu
  • Page 141B–63172EN/01 NC FUNCTION 21. SETTING AND DISPLAY UNIT 21.1.7 The separate LCD is a 7.2–inch monochrome LCD display unit, which Separate LCD is used in combination with a separate MDI. This display unit and a setting unit can be oriented vertically. 260 (W)  200 (H)  74 (D) mm, 1.6 kg in weight Thi
  • Page 14221. SETTING AND DISPLAY UNIT NC FUNCTION B–63172EN/01 21.1.8 The handy operator’s panel provides the functions of the machine Handy Operator’s operator’s panel used for teaching, as well as functions equivalent to those of the CRT/MDI. These functions are used to display and set data such Panel as P
  • Page 143B–63172EN/01 NC FUNCTION 21. SETTING AND DISPLAY UNIT The following two key types are available from FANUC: Alphanumeric key type (A02B–0211–C020#R) Symbol key type (A02B–0211–C020#S) 125
  • Page 14421. SETTING AND DISPLAY UNIT NC FUNCTION B–63172EN/01 21.1.9 The detachable LCD/MDI is an LCD/MDI unit (Section 21.1.2) housed Detachable LCD/MDI in a portable dustproof case. On a transfer line, for example, a detachable LCD/MDI can be attached to (and detached from) one Power Mate i unit, then ano
  • Page 145B–63172EN/01 NC FUNCTION 21. SETTING AND DISPLAY UNIT 21.1.10 The touch panel display unit can be used as an easily modifiable machine Touch Panel Display operator’s panel. The touch panel display unit can flexibly conform to operator panel Unit changes when a line is modified. Moreover, all CNC scr
  • Page 14621. SETTING AND DISPLAY UNIT NC FUNCTION B–63172EN/01 21.1.11 A connection with a personal computer can be made via the high–speed Personal Computer serial bus (HSSB) to enable high–speed windows–based data transfer. An IBM–PC/AT compatible personal computer with ISA slots can be (Connected via HSSB
  • Page 147B–63172EN/01 NC FUNCTION 21. SETTING AND DISPLAY UNIT 21.1.12 A low–cost connection with a personal computer can be made using the Personal Computer RS–232C interface. The two types of software listed below are available for use on the PC. (Connected via 1) FAPT LADDER–II RS–232C) This software enab
  • Page 14821. SETTING AND DISPLAY UNIT NC FUNCTION B–63172EN/01 21.2 EXPLANATION OF THE KEYBOARD 21.2.1 For English Key Address/numeric keys Function keys Shift key Cancel key Input key Edit keys Help key Reset key Cursor keys Page–up/down keys No. Key Function Reset key Used to reset the CNC to release an al
  • Page 149B–63172EN/01 NC FUNCTION 21. SETTING AND DISPLAY UNIT No. Key Function Input key Data input by pressing an address or numeric key is stored in the key input buffer, then displayed. When data input to the key input buffer needs to be written to the offset (6) register, press the key. This key
  • Page 15021. SETTING AND DISPLAY UNIT NC FUNCTION B–63172EN/01 21.2.2 For Symbol Key Symbol key Symbol keys correspond to alphanumeric keys on a one–to–one basis. For the meanings of the symbol keys, see the explanations of the corresponding keys in Sections 21.2.1 and 21.2.3. 21.2.3 The function keys select
  • Page 151B–63172EN/01 NC FUNCTION 21. SETTING AND DISPLAY UNIT 21.2.4 On the MDI panel, seven (5 + 2) keys are provided. That is, there are five Explanation of the Soft soft keys, and a next–menu key and previous–menu key are provided at both ends. The next menu key and previous menu key are used to select K
  • Page 15222. DISPLAYING AND SETTING DATA NC FUNCTION B–63172EN/01 22 DISPLAYING AND SETTING DATA 134
  • Page 153B–63172EN/01 NC FUNCTION 22. DISPLAYING AND SETTING DATA 22.1 The following data are displayed. CRT/MDI or LCD/MDI can display maximum 640 characters (40 × 16 lines). DISPLAY Explanations D Indication of statuses The status of the control unit is indicated on the screen. Statuses include the state w
  • Page 15422. DISPLAYING AND SETTING DATA NC FUNCTION B–63172EN/01 D Alarm message display Alarm message contents are displayed. D Present position display Relative position and position in the work coordinates are displayed in 3-times magnified characters. D Total position display Relative position, position
  • Page 155B–63172EN/01 NC FUNCTION 22. DISPLAYING AND SETTING DATA D Displaying the alarm A maximum of 25 of the most recent alarms generated in CNC can be history recorded. Each alarm record consists of the following items: - Date and time - Alarm number - Alarm message Any of the records can be deleted from
  • Page 15622. DISPLAYING AND SETTING DATA NC FUNCTION B–63172EN/01 22.2 The Japanese, English, German, French, Italian, and Spanish are prepared as display languages. Select the language to be displayed by parameters. LANGUAGE SELECTION 22.3 Time is displayed in the hour/minute/second format on each display s
  • Page 157B–63172EN/01 NC FUNCTION 22. DISPLAYING AND SETTING DATA 22.5 In this function, functions of switches on the machine operator’s panel is done by operation on the MDI panel. Mode selection and jogging SOFTWARE override, etc. can be operated by setting operation via the MDI panel with OPERATOR’S PANEL
  • Page 15822. DISPLAYING AND SETTING DATA NC FUNCTION B–63172EN/01 OPERATOR’S PANEL O0000 N00000 BLOCK SKIP : OFF ON SINGLE BLOCK : OFF ON MACHINE LOCK : OFF ON DRY RUN : OFF ON PROTECT KEY : PROTECT RELEASE FEED HOLD : OFF ON ACTUAL POSITION (ABSOLUTE) X 0.000 Z 0.000 S 0 T0000 EDIT **** *** *** 09:36:48 [ M
  • Page 159B–63172EN/01 NC FUNCTION 22. DISPLAYING AND SETTING DATA 22.6 File names in the floppy cassette (FANUC CASSETTE F1) and program file (FANUC PROGRAM FILE Mate can be listed on the display DIRECTORY DISPLAY (directory display). Each file name of up to 17 letters can be displayed OF FLOPPY in directory
  • Page 16022. DISPLAYING AND SETTING DATA NC FUNCTION B–63172EN/01 22.7 SCREENS FOR SERVO DATA AND SPINDLE DATA 22.7.1 On the servo setting screen, parameters required for standard initialization Servo Setting Screen of the servo motor are listed. The parameters can also be set. SERVO SETTING O0000 N00000 X A
  • Page 161B–63172EN/01 NC FUNCTION 22. DISPLAYING AND SETTING DATA 22.7.3 On the spindle setting screen, parameters required for standard Spindle Setting Screen initialization of the serial spindle are listed. The parameters can also be set. This screen is only for the main spindle connected to the first ampl
  • Page 16222. DISPLAYING AND SETTING DATA NC FUNCTION B–63172EN/01 22.8 The configurations of software and hardware required for maintenance of the CNC are displayed. SYSTEM The system configuration display function provides the following three CONFIGURATION screens: DISPLAY FUNCTION D Slot information screen
  • Page 163B–63172EN/01 NC FUNCTION 22. DISPLAYING AND SETTING DATA Hardware (module) The slot number, board name, modules mounted on the board are information displayed for each slot. SYSTEM CONFIG(MODULE) O1234 N56789  SLOT 00 MOTHER BOARD  AXIS CTRL CARD : 0D CPU CARD : 01 FROM DIMM : 47 SRAM DIMM : 23 DR
  • Page 16422. DISPLAYING AND SETTING DATA NC FUNCTION B–63172EN/01 22.9 When an alarm occurs, or when the operator is not certain what to do next, HELP FUNCTION pressing the HELP key on the MDI panel displays detailed alarm information or instructions for operation. One of the following three screens can be d
  • Page 165B–63172EN/01 NC FUNCTION 22. DISPLAYING AND SETTING DATA - Operation instruction screen HELP (OPERATION METHOD) O1234 N00001 <<1. PROGRAM EDIT>> 1/4 *DELETE ALL PROGRAMS MODE : EDIT SCREEN: PROGRAM OPR : (O–9999) – *DELETE ONE PROGRAM MODE : EDIT SCREEN: PROGRAM OPR : (O+PROGRAM NUMBER) – <
  • Page 16622. DISPLAYING AND SETTING DATA NC FUNCTION B–63172EN/01 22.10 A data protection key can be installed on the machine side for protection of various NC data. The following three input signals are offered, DATA PROTECTION according to type of data to be protected. KEY D KEY 1 Allows input of tool comp
  • Page 167B–63172EN/01 NC FUNCTION 22. DISPLAYING AND SETTING DATA 22.12 The periodic maintenance screen shows the current statuses of those consumables that require periodic replacement (backup battery, LCD PERIODIC backlight, touch pad, etc.). An item whose service life has expired is MAINTENANCE indicated
  • Page 16823. PART PROGRAM STORAGE AND EDITING NC FUNCTION B–63172EN/01 23 PART PROGRAM STORAGE AND EDITING 150
  • Page 16923. PART PROGRAM STORAGE B–63172EN/01 NC FUNCTION AND EDITING 23.1 The following part program storage and editing is possible FOREGROUND D Program tape registration to the memory S Single program registration EDITING S Multi program tape registration D Program input via MDI D Program deletion S Sing
  • Page 17023. PART PROGRAM STORAGE AND EDITING NC FUNCTION B–63172EN/01 23.3 The following editing is possible. EXPANDED PART D Conversion PROGRAM EDITING - Address conversion An address in the program can be converted to another address. For example address X in the program can be converted to address Y. - W
  • Page 171B–63172EN/01 NC FUNCTION 24. DIAGNOSIS FUNCTIONS 24 DIAGNOSIS FUNCTIONS 153
  • Page 17224. DIAGNOSIS FUNCTIONS NC FUNCTION B–63172EN/01 24.1 The NC checks the following itself. SELF DIAGNOSIS D Abnormality of detection system FUNCTIONS D Abnormality of position control unit D Abnormality of servo system D Overheat D Abnormality of CPU D Abnormality of ROM D Abnormality of RAM D Abnorm
  • Page 173B–63172EN/01 NC FUNCTION 25. DATA INPUT/OUTPUT 25 DATA INPUT/OUTPUT The NC has the following input/output data. These data are input/output via various input/output devices as CRT/MDI, tape reader, etc. D Input data The NC has the following input data. - Part program - Tool compensation amount - Set
  • Page 17425. DATA INPUT/OUTPUT NC FUNCTION B–63172EN/01 25.1 The following can be input/output via the RS–232–C interface. RS–232–C D Part program registration/output INTERFACES D Tool offset amount input/output D Custom macro common variable input/output D Pitch error compensation data input/output D Parame
  • Page 175B–63172EN/01 NC FUNCTION 25. DATA INPUT/OUTPUT 25.3 Files on a memory card can be referenced, and different types of data such as part programs, parameters, and offset data on a memory card can be DATA INPUT/OUTPUT input and output in text file format. USING A MEMORY CARD The major functions are lis
  • Page 17625. DATA INPUT/OUTPUT NC FUNCTION B–63172EN/01 25.3.1 Batch Save and Restore Operations based on Memory Cards Outline The contents of the memory of the Power Mate i can be saved to a memory card, and the contents of a memory card can be loaded back into the memory of the Power Mate i as a batch. Whe
  • Page 177B–63172EN/01 NC FUNCTION 25. DATA INPUT/OUTPUT 25.4 Power Mate programs, parameters, macro variables, and diagnostic (PMC) data can be entered to or output from Series 16/18/21 through the DATA INPUT/OUTPUT FANUC I/O Link. FUNCTION BASED With FANUC I/O Link, slaves in groups 0 to 15 can be connected
  • Page 17825. DATA INPUT/OUTPUT NC FUNCTION B–63172EN/01 25.5 When the servo amplifier β series with I/O Link is used as an additional (slave) axis of the CNC, the power mate CNC manager enables the POWER MATE CNC display and setting of data from the CNC. Up to eight slave units can be MANAGER connected. The
  • Page 179B–63172EN/01 NC FUNCTION 26. SAFETY FUNCTIONS 26 SAFETY FUNCTIONS 161
  • Page 18026. SAFETY FUNCTIONS NC FUNCTION B–63172EN/01 26.1 EMERGENCY STOP 26.1.1 Using the emergency stop signal effectively enables the design of safe General machine tools. The emergency stop signal is provided to bring a machine tool to an emergency stop. It must be input to the Power Mate i, servo ampli
  • Page 181B–63172EN/01 NC FUNCTION 26. SAFETY FUNCTIONS 26.1.3 Shutting off the servo amplifier power causes a dynamic brake to be Servo/Spindle applied to the servo motor. Even when a dynamic brake is applied, however, a servo motor attached to a vertical axis can move under the force of gravity. To overcome
  • Page 18226. SAFETY FUNCTIONS NC FUNCTION B–63172EN/01 Stroke end limit switch Emergency stop button +X –X +Y –Y +Z –Z +4 –4 Relay power Release switch Spark killer SK EMG Relay I/O of Power Mate i emg1 +24 *ESP Servo amplifier α series SVM (PSM) SPM emg2 +24 *ESP MCCOFF3   Note 2 MCCOFF4  External power
  • Page 183B–63172EN/01 NC FUNCTION 26. SAFETY FUNCTIONS 26.2 OVERTRAVEL FUNCTIONS 26.2.1 When the movable section has gone beyond the stroke end, a signal is Overtravel output, the axis decelerates to a stop, and overtravel alarm is displayed. All directions on all axes has overtravel signals. 26.2.2 The mova
  • Page 18426. SAFETY FUNCTIONS NC FUNCTION B–63172EN/01 26.3 INTERLOCK 26.3.1 Axis feed specified to each axis can be stopped separately. If interlock is Interlock per Axis specified to any of the moving axis during cutting feed, all axes of the machine movement will decelerate to a stop. When interlock signa
  • Page 185B–63172EN/01 NC FUNCTION 27. STATUS OUTPUT 27 STATUS OUTPUT 167
  • Page 18627. STATUS OUTPUT NC FUNCTION B–63172EN/01 27.1 This signal is sent to the PMC when NC power is on and control becomes possible. Sending of this signal will be stopped when NC power is turned NC READY SIGNAL off. 27.2 This signal is sent to the PMC when the servo system becomes operatable. Axes nece
  • Page 187B–63172EN/01 NC FUNCTION 27. STATUS OUTPUT 27.12 This signal is output to show move direction of each axis. This signal is output for each axis. AXIS MOVE DIRECTION SIGNAL 27.13 This signal shows that the move command is done under rapid traverse. RAPID TRAVERSING SIGNAL 27.14 This signal is output
  • Page 18828. EXTERNAL DATA INPUT NC FUNCTION B–63172EN/01 28 EXTERNAL DATA INPUT With the external data input function, data can be sent to the CNC externally, for example, from the machine to perform certain operations. The external data input is as follows. D External program number search D External alarm
  • Page 189B–63172EN/01 NC FUNCTION 28. EXTERNAL DATA INPUT 28.1 A program number from 1 - 9999 can be given from outside to the NC to call the corresponding program from the NC memory. EXTERNAL In machines with automatic loading function of various workpiece, this PROGRAM NUMBER function can be used to automa
  • Page 19029. KEY INPUT FROM PMC (EXTERNAL KEY INPUT) NC FUNCTION B–63172EN/01 29 KEY INPUT FROM PMC (EXTERNAL KEY INPUT) When the PMC inputs the code signal corresponding to a key on the MDI panel to the CNC, the code signal can be input in the same way as with actual operation of the key on the MDI panel. F
  • Page 191B–63172EN/01 NC FUNCTION 30. PERSONAL COMPUTER FUNCTION 30 PERSONAL COMPUTER FUNCTION The open CNC allows the machine tool builder to incorporate a high–level man–machine interface, such as conversational automatic programming and conversational operation that makes maximum use of the machine tool b
  • Page 19230. PERSONAL COMPUTER FUNCTION NC FUNCTION B–63172EN/01 30.1 The high–speed serial bus is a serial interface used to transfer data at high speed between the CNC control unit and a personal computer installed on HIGH–SPEED SERIAL the operator panel side. BUS (HSSB) By installing a dedicated interface
  • Page 193APPENDI
  • Page 194B–63172EN/01 APPENDIX A. RANGE OF COMMAND VALUE A RANGE OF COMMAND VALUE Linear axis D In case of millimeter Increment system input, feed screw is IS–A IS–B IS–C millimeter Least input increment 0.01 mm 0.001 mm 0.0001 mm Least command increment 0.01 mm 0.001 mm 0.0001 mm Max. programmable dimension
  • Page 195A. RANGE OF COMMAND VALUE APPENDIX B–63172EN/01 D      Increment system     IS–A IS–B IS–C Least input increment 0.001 inch 0.0001 inch 0.00001 inch Least command increment 0.001 inch 0.0001 inch 0.00001 inch Max. programmable dimension ±99999.999 inch ±9999.9999 inch ±9999.99
  • Page 196B. LIST OF FUNCTIONS AND B–63172EN/01 APPENDIX TAPE FORMAT B LIST OF FUNCTIONS AND TAPE FORMAT Some functions cannot be added as options depending on the model. In the tables below, IP _:presents a combination of arbitrary axis addresses using X,Y,Z,A,B and C (such as X_Y_Z_A_). x = 1st basic axis (
  • Page 197B. LIST OF FUNCTIONS AND TAPE FORMAT APPENDIX B–63172EN/01 Functions Illustration Tape format Inch/millimeter conversion (G20, G21) G20 ; Inch input G21 ; Millimeter input Reference position return check (G27) IP G27 IP _ ; Start point Reference position return (G28) Reference position (G28) G28 IP
  • Page 198B–63172EN/01 APPENDIX C. TAPE CODE LIST C TAPE CODE LIST ISO code EIA code Meaning Without With CUSTOM Character 8 7 6 5 4 3 2 1 Character 8 7 6 5 4 3 2 1 CUSTOM MACURO MACRO B B 0 ff f 0 f f Number 0 1 f ff f f 1 f f Number 1 2 f ff f f 2 f f Number 2 3 ff f ff 3 f f f f Number 3 4 f ff f f 4 f f N
  • Page 199C. TAPE CODE LIST APPENDIX B–63172EN/01 ISO code EIA code Meaning Without With CUSTOM CUSTOM Character 8 7 6 5 4 3 2 1 Character 8 7 6 5 4 3 2 1 MACRO MACRO B B DEL fffff f fff Del ffff f f f f Delete × × (deleting a mispunch) NUL f Blank f No punch. With EIA × × code, this code cannot be used in a
  • Page 200B–63172EN/01 APPENDIX C. TAPE CODE LIST NOTE 1 The symbols used in the remark column have the following meanings. (Space) : The character will be registered in memory and has a specific meaning. It is used incorrectly in a statement other than a comment, an alarm occurs. × : The character will not b
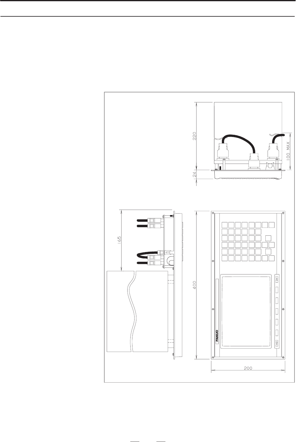
  • Page 201D. EXTERNAL DIMENSIONS OF EACH UNIT APPENDIX B–63172EN/01 D EXTERNAL DIMENSIONS OF EACH UNIT Number of Classification Name Figure Control unit Control unit Fig. 1 I/O I/O Card D, E Fig. 2 FSSB I/O Module Fig. 3 Unit for display CRT/MDI, CRT/MDI with picture display Fig. 4 and data ininput ut LCD/MDI
  • Page 202B–63172EN/01 APPENDIX D. EXTERNAL DIMENSIONS OF EACH UNIT Fig. 1 Control unit Specification : A02B–0259–B501 Weight : 1.8kg 185
  • Page 203D. EXTERNAL DIMENSIONS OF EACH UNIT APPENDIX B–63172EN/01 Fig. 2 I/O Card D, E Specification : A16B–2202–0733 (DI/DO=48/32) A16B–2202–0732 (DI/DO=96/64) mm 50 mm 10 Approx. 100 mm 66.16 mm 35 50 CP61 43 155 CM51 MR50RM 88.9 mm 50 12 12 CM52 MR50RM 336 mm 88.9 mm JD1B JD1A 50 322 mm CP1 CMB3 MR50RM C
  • Page 204B–63172EN/01 APPENDIX D. EXTERNAL DIMENSIONS OF EACH UNIT Fig. 3 FSSB I/O Module Specification : A02B–0236–C211, C212 187
  • Page 205D. EXTERNAL DIMENSIONS OF EACH UNIT APPENDIX B–63172EN/01 Fig. 4 CRT/MDI, CRT/MDI with picture display Specification : A02B–0166–C201#R (English key) A02B–0166–C201#S (Symbolic key) A02B–0166–C221#R (English key, with picture display for 32 screen) A02B–0166–C221#S (Symbolic key, with picture displa
  • Page 206B–63172EN/01 APPENDIX D. EXTERNAL DIMENSIONS OF EACH UNIT Fig. 5 LCD/MDI Specification : A02B–0166–C261#R (English key) A02B–0166–C261#S (Symbolic key) Panel cut drawing Stud (M4) for grounding Stud (M4) for grounding Weight : 3.9kg 189
  • Page 207D. EXTERNAL DIMENSIONS OF EACH UNIT APPENDIX B–63172EN/01 Fig. 6 Separate CRT Specification : A02B–0120–C111 184 190 244 250 4–M3 Panel cut drawing 260 2 4–ø4 5 5 250 22 220 5 200 190 5 Stad (M4) for grounding Weight : 3.5kg Back side Soft key connector 190
  • Page 208B–63172EN/01 APPENDIX D. EXTERNAL DIMENSIONS OF EACH UNIT Fig. 7 Separate MDI, separate MDI with picture display Specification : A02B–0166–C210#R (English key) A02B–0166–C210#S (Symbolic key) A02B–0166–C231#R (English key, with picture display for 32 screen) A02B–0166–C231#S (Symbolic key, with pict
  • Page 209D. EXTERNAL DIMENSIONS OF EACH UNIT APPENDIX B–63172EN/01 Fig. 8 Separate PDP Specification : A02B–0200–C100 2 22 95MAX 5 200 190 30 5 250 5 260 5 130 88 CN2 CN1 Screw (M4) for grounding 19.5 33 17.5 23 450 Connector for CRT video signal Connector for soft key Weight : 2.1kg Connector for power supp
  • Page 210B–63172EN/01 APPENDIX D. EXTERNAL DIMENSIONS OF EACH UNIT Fig. 9 Separate LCD Specification : A02B–0166–C251 PANEL CUTOUT DIAGRAM Soft key connector Stud (M4) for grounding BACK SIDE Weight : 1.6 kg 193
  • Page 211D. EXTERNAL DIMENSIONS OF EACH UNIT APPENDIX B–63172EN/01 Fig. 10 Detachable LCD/MDI Specification : A02B–0166–C271#R (English key) A02B–0166–C271#S (Symbolic key) Weight : 7.0 kg 194
  • Page 212B–63172EN/01 APPENDIX D. EXTERNAL DIMENSIONS OF EACH UNIT Fig. 11 Handy operator’s panel Specification : A02B–0211–C020#R (English key) A02B–0211–C020#S (Symbolic key) Display LED key sheet Deadman’s switch enable switch Operator’s panel Emergency stop Deadman’s switch key sheet button Tolerance: "1
  • Page 213D. EXTERNAL DIMENSIONS OF EACH UNIT APPENDIX B–63172EN/01 Fig. 12 α Position coder Specification : A860–0309–T302 (Max. 10000 rpm) MS connector : MS3102A–20–29P 196
  • Page 214B–63172EN/01 APPENDIX D. EXTERNAL DIMENSIONS OF EACH UNIT Fig. 13 Manual pulse generator Specification : A860–0202–T001 83.5 f80.0 f55.0 50.0 30.0 M4X8.0 60.0 3 holes equally spaced on a 72 dia PULSE GENERATOR 11.0 FANUC LTD 0V 5V 5V 0V A B M3 screw terminal 120.0° Weight : 0.35kg 197
  • Page 215D. EXTERNAL DIMENSIONS OF EACH UNIT APPENDIX B–63172EN/01 Fig. 14 Manual pulse generator (Pendant type) Specification : A860–0202–T004 to T015, T020 A860–0202–T004 to T009 90 38.0 M3 screw terminal 25 140 100.0 39.0 M3 screw terminal Weight : 0.6kg A860–0202–T010 to T015, T020 90 38.0 M3 screw termi
  • Page 216B–63172EN/01 APPENDIX D. EXTERNAL DIMENSIONS OF EACH UNIT Fig. 15 Separate detector interface unit Specification : A02B–0236–C203, –C204 199
  • Page 217D. EXTERNAL DIMENSIONS OF EACH UNIT APPENDIX B–63172EN/01 Fig. 16 Battery case for separate absolute pulse coder Specification : A06B–6050–K060 103 Minus polarity indication 4–M4 counter sinking Plus polarity indication Plus terminal with 3–M3 screw holes Minus terminal with 103 3–M3 screw holes 93
  • Page 218B–63172EN/01 APPENDIX D. EXTERNAL DIMENSIONS OF EACH UNIT Fig. 17 Battery case for external control unit Specification : A02B–0236–C281 Main unit Cover 103 115 M4 tap  4 70 81 93 5 13.5 47 Mounting panel hole drilling Mounting hole (countersink) 145 The battery unit is fitted with a 14–m battery ca
  • Page 219D. EXTERNAL DIMENSIONS OF EACH UNIT APPENDIX B–63172EN/01 Fig. 18 Punch panel (for 1 channel) Specification : A02B–0259–C191 (Cable length: 1 m) A02B–0259–C192 (Cable length: 2 m) A02B–0259–C193 (Cable length: 5 m) Ground pin for the frame ground (M4, length: 200 mm) A ground pin for the frame groun
  • Page 220B–63172EN/01 APPENDIX D. EXTERNAL DIMENSIONS OF EACH UNIT Fig. 19 Punch panel (for 2 channels) Specification : A02B–0259–C051 (Cable length : 1m) A02B–0259–C052 (Cable length : 2m) A02B–0259–C053 (Cable length : 3m) Ground pin for the frame ground (M4, length: 200 mm) A ground pin for the frame grou
  • Page 221D. EXTERNAL DIMENSIONS OF EACH UNIT APPENDIX B–63172EN/01 Fig. 20 FANUC Handy File Specification : A13B–0159–B001 (English key) A13B–0159–B002 (Japanese key) Weight : 1.4kg Unit : mm 204
  • Page 222B–63172EN/01 APPENDIX D. EXTERNAL DIMENSIONS OF EACH UNIT Fig. 21 I/O Link connection unit Specification : A20B–2000–0410 (electric – optical) A20B–2000–0411 (electric – electric) A20B–2000–0412 (optical – optical) Unit : mm 180 10 160 30 5 90 Printed–circuit board 150 Cable Cable Components Up to 5
  • Page 223D. EXTERNAL DIMENSIONS OF EACH UNIT APPENDIX B–63172EN/01 Fig. 22 HSSB interface board Specification : A20B–8001–0583 (HSSB 1ch) A20B–8001–0582 (HSSB 2ch) PARTS MOUNTING –O582 –O583 Weight : 0.2kg 206
  • Page 224B–63172EN/01 Index ƠNumbersơ Constant surface speed control, 54 Constant surface speed control signal, 169 1–block plural M command, 58 Control axis detach, 100 2nd and 3rd reference position return (G30), 41 Control–in/control–out, 65 Controlled axes, 16, 17 Coordinate systems, 44 ƠAơ Coordinate va
  • Page 225INDEX B–63172EN/01 Externally setting the stroke limit, 165 ƠL ơ Label skip, 65 Language selection, 138 ƠF ơ LCD/MDI, 119 FANUC Handy File, 156 Left–handed rigid tapping cycle (G74), 77 Feed functions, 27 Linear acceleration/deceleration after cutting feed interpolation, 34 Feed hold, 112 Linear acc
  • Page 226B–63172EN/01 INDEX Overtravel, 165 Rigid tap (only for Power Mate–D), 74 Overtravel functions, 165 Rigid tapping (G84), 76 Rigid tapping return, 113 Rotation axis roll–over function, 51 ƠP ơ RS–232–C interfaces, 156 Run time & parts number display, 138 Part program storage and editing, 150 Part prog
  • Page 227INDEX B–63172EN/01 Tandem control, 104 Tool functions, 55 Tangential speed constant control, 29 Tool length compensation (G43, G44, G49), 80 Tape code list, 181 Tool length measurement, 86 Tape codes, 63 Torque limit function, 101 Tape format, 65 Touch panel display unit, 127 Tape horizontal (TH) pa
  • Page 228Revision Record FANUC Power Mate i–MODEL D/H DESCRIPTIONS (B–63172EN) 01 Sep., ’98 Edition Date Contents Edition Date Contents
  • Page 229· No part of this manual may be reproduced in any form. · All specifications and designs are subject to change without notice.
  • Page 230TECHNICAL REPORT (MANUAL) No.TMN99/100E Date 1999. General Manager of Software Laboratory FANUC Power Mate i-MODEL D/H Development of Power Mate i series (STEP3) 1.Communicate this report to : ○ Your information ○ GE Fanuc-N, GE Fanuc-E FANUC Robotics CINCINNATI MILACRON ○ Machine tool builder Sales
  • Page 231FANUC Power Mate i-MODEL D/H Development of Power Mate i series (STEP3) 1. Type of applied technical documents Name FANUC Power Mate I-MODEL D/H SPECIFICATION MANUAL Spec. B-63172EN/01 No./Version 2. Summary of Change New,Add Applicable Group Name/Outline Correct, Date Delete Basic Development of Po
  • Page 232FANUC Power Mate i-MODEL D/H Development of Power Mate i series (STEP3) SPECIFICATIOIN MANUAL (CONTENTS) Stored pitch error compensation function 3 Straightness compensation B function 4 TITLE FANUC Power Mate i-D/H Development of Power Mate i series (STEP3) Specification manual DRAW.NO. CUST. 01 99
  • Page 233Stored Pitch error compensation function is applied to the following system series and version or later of the Power Mate i series. Power Mate i series type ROM series version FANUC Power Mate i-MODEL H 88F0 07 Please change the contents of the explanation in the following manual with the adding of
  • Page 234Straightness Compensation B function is applied to the following system series and version or later of the Power Mate i-D/H. Power Mate i series type ROM series version FANUC Power Mate i-MODEL D 88E0 07 FANUC Power Mate i-MODEL H 88F0 07 Please add the following explanation in the following manual
  • Page 235FANUC Power Mate i-MODEL D/H Development of Power Mate i series (STEP3) 1.Type of applied technical documents FANUC Power Mate i-MODEL D/H CONNECTION Name MANUAL(FUNCTION) Spec. No./Version B-63173EN-1/01 2.Summary of Change New,Add Applicable Group Name/Outline Correct, Date Delete Basic Developmen
  • Page 236FANUC Power Mate i-MODEL D/H Development of Power Mate i series (STEP3) CONNECTION MANUAL(FUNCTION) (CONTENTS) External I/O device control, data input/output functions based on the I/O Link(slave) 3 Addition of the parameter which makes it impossible to use a manual handle in JOG mode(supplement) 12
  • Page 2371.The explanation of the 13.2 EXTERNAL I/O DEVICE CONTROL of FANUC Power Mate i- MODEL D/H CONNECTION MANUAL (FUNCTION) is partly added. The part program, parameter, variable, diagnose data registering/outputting operation by the I/O device is possible by using external signals. 1.1 The followings a
  • Page 238Macro variable selection signal EVAR [Classification] Input signal [Function] When this signal turns to “1”, the CNC acts as follows. ・Selects macro variables as I/O data. ・Inputting operation Macro variable data is input from the I/O device. Input condition: Set protection signal KEY2 to 1
  • Page 239・Outputting operation Specified number of data items are output to the I/O device from a specified start number in order from #100 to #199 and from #500 to #699. Specify the output start number of a macro variable in EDG0 to EDG15, and specify the number of output data items in EDN0 to EDN15. Data o
  • Page 240Diagnostic data selection signal EDGN [Classification] Input signal [Function] When this signal turns to “1” , the CNC acts as follows. ・Selects diagnostic data as I/O data. ・Inputting operation Diagnostic data is input from the I/O device. (NOTE) Diagnostic data can be loaded into the PMC
  • Page 241For axis-type diagnostic data: N data number A1 P data A2 P data ; A : A value that follows A is output as an axis number. This applies only to axis-type diagnostic data. A1 = first-axis data; A2 = second-axis data For diagnostic data 0000 to 09999 20000+(diagnose number) For PMC address G0000 to 02
  • Page 242Signals indicating the number of data items to be output (punched) EDN0 to EDN15 [Classification] Input signal [Function] ・When diagnostic data or macro variable data is to be output, specify the number of output data items in EDN0 to EDN15 by using a 16-bit binary code. Setting EDG0
  • Page 2431.3 The followings are added in the G251, G252, G253, G254 and G255 in the APPENDIX A.1.1 Power Mate i-MODEL D/H List of Addresses. #7 #6 #5 #4 #3 #2 #1 #0 G251 EDGN EPARM EVAR EPRG IOLNK #7 #6 #5 #4 #3 #2 #1 #0 G252 EDG07 EDG06 EDG05 EDG04 EDG03 EDG02 EDG01 EDG00 #7 #6 #5 #4 #3 #2 #1 #0 G253 EDG15
  • Page 2442. The followings are added before the 14 MEASUREMENT of FANUC Power Mate i-MODEL D/H CONNECTION MANUAL (FUNCTION). 13.3 DATA INPUT/OUTPUT FUNCTIONS BASED ON THE I/O LINK (SLAVE) General The input/output of the part program, parameters, macro variables and diagnostic data (PMC) is possible between t
  • Page 245IOLNK = 0 : Select the data input/output function by the RS-232-C. IOLNK = 1 : Select the data input/output function by the FANUC I/O Link. IOLNK=0 RS-232-C I/O device Power Mate IOLNK=1 FANUC I/O Link Master CNC Signal address #7 #6 #5 #4 #3 #2 #1 #0 G251 IOLNK TITLE FANUC Power Mate i-D/H External
  • Page 246Replace the description of "Note" in the section "3.1 JOG FEED/ STEP FEED" with the following. Note NOTE 1. Both manual handle and incremental feed are enabled in the manual handle feed mode. 2. When the parameter NJH(No.7104#6) is 0, the manual handle feed is effective in the JOG mode. If it should
  • Page 247Add following description after “12.1.12 Periodic Maintenance Screen”. 12.1.13 Switching Key Codes General Key codes(M or T) can be switched to fit the key code of CRT/MDI by parameter. When CRT/MDI is used commonly by Power Mate i and another kinds of CNC, MDI key can be continued to be used. (exam
  • Page 248Please add [21. ANALOG INPUT] and [21.1 Analog input function] after [20. EXTERNAL PULSE INPUT FUNCTION] , and add also the following description. Outline By this function, the analog input(-10V to 10V) can be converted into digital data so that PMC can perform various kind of control with it. Power
  • Page 249Signal Analog input signal [Section] Output signal AD00 to AD12, [Function] The analog input signal from an external device is converted into ADSGN digital data and output with these signals. Output signal consists of fourteen bits from AD00 to AD12, and negative value is expressed in tw
  • Page 250【Maximum voltage】 【Minimum voltage】 1FFC = 8188 The value in two’s complement is The value in voltage is as as follows. follows. E000H = -8192 8188 × 10 V ≅ 10 . 00 V The value in voltage is as follows. 2 13 10 V − 8192 × ≅ − 10 . 00 V 2 13 [Operation] When analog voltage is given from an external d
  • Page 2518730 Compensation value of voltage [Data type] Word type 10V [Data unit] ≅ 1 .22 × 10 − 3 V 2 13 [Valid range] 0 to ±8191 When analog input is 0 volts, set the value of this parameter to compensate the diagnostic No.833 to 0. Diagnostic screen 833 Voltage from the analog input module after compensat
  • Page 252Please modify items of F206 and F207 in [A.1.1 Power Mate i –MODEL D/H ADDRESS LIST] of [APPENDIX A Interface between CNC and PMC] as the following. #7 #6 #5 #4 #3 #2 #1 #0 F206 AD05 AD04 AD03 AD02 AD01 AD00 0 0 #7 #6 #5 #4 #3 #2 #1 #0 F207 ADSGN AD12 AD11 AD10 AD09 AD08 AD07 AD06 Please add the fol
  • Page 253Replace the description in "General" in "12.2.1 Part Program Storage Length" of FANUC Power Mate i – MODEL D/H Connection Manual (Function) (B-63173JA-1/01) as follows. 12.2.1 Part Program Storage Length General One of the following part program length can be selected. P o we r Ma t e i - D ( m ) 10
  • Page 254Stored Pitch Error Compensation function is applied to the following system series and version or later of the Power Mate i series. Power Mate i series type ROM series version FANUC Power Mate i-MODEL H 88F0 07 Please change the contents of the explanation in the following manual with the adding of
  • Page 255Replace a column of F248 in ”A.1.1 Power Mate i-MODEL D/H List of addresses” with a following description. F248 FANAL2 FANAL1 Replace a column of alarm signal in “A.2.1 Signal summary (In Order of Function)” with a following description. Alarm signal AL F001#0 ○ ○ Alarm signal Battery alarm signal B
  • Page 256Add a following description in “2.4 ALARM SIGNAL” just after the description of “battery alarm. Fan alarm signal FANAL1, FANAL2<F248#5, #6> [Classification] Output signal [Function] The fan alarm signal indicates that one of the fan coolers has stopped. [Output condition] The signal is set to 1 when
  • Page 257Add a following description after “7.2.8 Feed Forward in Rapid Traverse”. 7.2.9 Expansion of time constant General In case that controlled axes are 1∼4, the maximum of time constants, such as exponential, bell-shaped or linear acceleration/deceleration after interpolation in cutting feed and in jog
  • Page 258Parameter #7 #6 #5 #4 #3 #2 #1 #0 1605 TCE [Data type] Bit TCE The function of the expansion of time constant is 0:not available(maximum Time constant is 8000) 1:available(maximum time constant depends on number of controlled axes) In case that this function is available, the range of the time const
  • Page 259Change description of [Valid data range] of parameter No.1622 and No.1624 in “7.2.1 Automatic Acceleration/Deceleration”, “7.2.3 Linear Acceleration/Deceleration after Cutting Feed Interpolation”, “7.2.4 Bell-Shaped Acceleration/Deceleration after Cutting Feed Interpolation” and “7.2.7 Axis Status S
  • Page 260Straightness Compensation B function is applied to the following system series and version or later of the Power Mate i-D/H. Power Mate i series type ROM series version FANUC Power Mate i-MODEL D 88E0 07 FANUC Power Mate i-MODEL H 88F0 07 Please add the following contents at the next part of the “1.
  • Page 261Parameter 5711 Axis number of moving axis 1 【Data type】 Byte 【Unit of data】 Axis number (When 0, compensation is not performed.) 【Valid data range】 1 to Number of controlled axes Set the axis numbers of moving axes. 5721 Axis number of compensation axis 1 for moving axis 1 【Data type】 Byte 【Unit of
  • Page 262Alarm and message Number Message Description 5046 ILLEGAL Parameter related to straightness compensation B PARAMETER have been erroneously specified. (ST.COMP B) Possible causes are as follows. 1. Invalid axis number have been assigned to move or compensation axes. 2. The number of pitch-error compe
  • Page 263"7.1.7 Look-ahead feed-forward control" is added. TITLE FANUC Power Mate i-D/H Look-ahead feed-forward control Connection manual (function) DRAW.NO. CUST. 01 990624 New design B-63173EN-1/02 SHEET EDIT DATE DESIG. DESCRIPTION
  • Page 2647.1.7 Look-ahead feed-forward control General This function is designed for high-speed precise axis motion. With this function, the delay due to acceleration/deceleration and the delay in the servo system which increase as the feedrate becomes higher can be suppressed. The tool can then follow speci
  • Page 265Parameter 1431 Maximum cutting feedrate for all axes in the look-ahead feed-forward control mode [Data type] Two-word [Unit of data] Valid data range Increment system Unit of data [Valid data range] IS-A, IS-B IS-C Millimeter machine 1mm/min 0∼240000 0∼100000 Inch machine 0.1inch/min 0∼96000 0∼48000
  • Page 266Specify the maximum cutting feedrate for each axis in the look-ahead feed-forward control mode. A feedrate for each axis is clamped during cutting feed so that it does not exceed the maximum cutting feedrate specified for each axis. WARNING In a mode other than the look-ahead feed-forward control mo
  • Page 267< Example of a deceleration process > < Example of an acceleration process > Feedrate Specified feedrate Feedrate Specified feedrate Feedrate after acceleration/ Feedrate after acceleration/ deceleration before deceleration before Point 1 interpolation is applied interpolation is applied F3 Type A F
  • Page 268Minimum speed in exponential acceleration/deceleration for cutting feed 1763 in the look-ahead feed-forward control mode [Data type] Word axis [Unit of data] Valid data range Increment system Unit of data [Valid data range] IS-A, IS-B IS-C Millimeter machine 1mm/min 6∼15000 6∼12000 Inch machine 0.1i
  • Page 269Parameter 1 for setting an acceleration for linear acceleration/deceleration 1770 before interpolation in the look-ahead feed-forward control mode (maximum cutting speed during linear acceleration/deceleration before interpolation) [Data type] Two-word [Unit of data] Valid data range Increment syste
  • Page 270This parameter is used to set an acceleration for linear acceleration/deceleration before interpolation in the look-ahead feed-forward control mode. In this parameter, set the time (time constant) used to reach the speed set in parameter No.1770. NOTE 1 When 0 is set in parameter No.1770 or paramete
  • Page 271Parameters for look-ahead feed-forward control mode and normal mode (Parameters for the cutting feed acceleration/deceleration before interpolation) Parameter No. Parameter description Look-ahead feed-forward Normal mode control mode Acceleration/deceleration type ( type A / type B ) FWB(1602#0) FWB
  • Page 272Note NOTE 1. In the look-ahead feed-forward control mode, the functions listed below cannot be specified. To specify these functions, it is necessary to cancel the look-ahead feed- forward control mode. After the desired function is completed, then set look-ahead feed-forward control mode again. ・Ri
  • Page 273Please add the next page as “chapter Function after “chapter chapter 21.Multi Axes Synchronization Function” chapter 20. Input in “Contents External Pulse Input” Contents”. Contents . TITLE FANUC Power Mate i-D/H Multi axes synchronization function Connection manual (function) DRAW.NO. CUST. 01 9906
  • Page 274MULTI AXES SYNCHRONIZATION FUNCTION ( Power Mate i-H only ) 1. SUMMARY....................................................................................................................................................... 42 2. PROCESS ................................................................
  • Page 275Please add the following description as “chapter chapter 21. Multi Axes Synchronization FunctionFunction” after “chapter chapter 20. EXTERNAL PULSE INPUT”. INPUT . TITLE FANUC Power Mate i-D/H Multi axes synchronization function Connection manual (function) DRAW.NO. CUST. 01 990624 New design B-6317
  • Page 2761. Summary Power Mate i-MODEL H (described as “Power Mate i-H” in the following) has the Multi Axes Synchronization Function. This function is that one servo axis synchronizes another servo axis as these axis are connected mechanically. This synchro relation keeps continuously. You can flexibly set
  • Page 2773. Setting You set the synchro relation between synchronized axis(parent axis) and synchronizing axis(child axis) by parameters before you execute synchro motion. Don’t do this setting by G10 command. 3.1. Synchro axis setting You settle the synchro relation between parent axis and child one. Parent
  • Page 278(Example) The following is an example of synchro setting. Axis number X is equal to 1, and Y is 2. Parameter No.8380 Parent axis number Parameter No.8381 Parent axis category X 0 X 100 Y 1 Y 1 Z 0 Z 0 A 0 A 0 B 0 B 0 C 0 C 0 U 0 U 0 V 0 V 0 Concerning parameter No.8381, both X and Y are related to s
  • Page 2794. Motion This chapter shows the synchro motion according to the synchro relation previous chapter refers to. Synchro motion has done by NC command. 4.1. NC Command As for NC command,  synchro motion is sure to be executed in “G91(incremental)” condition.  it needs to select synchro mode by settin
  • Page 280It shows another example.  X axis synchronizes Y axis.  X axis moves one rotation while Y axis moves the same.  X axis changes its speed by 2 stages.  In Section 2, X axis moves 2 times faster than that in Section 1. X axis Y axis(parent of X) Section2 Section1 Beforehand, You set parameter No.8
  • Page 2815. Signal 5.1. Synchro mode signal #7 #6 #5 #4 #3 #2 #1 #0 G212 SYCMD synchro mode signal SYCMD [Division] Input Signal [Function] This signal shows whether synchro motion is enable or not. 1 : synchro mode on(synchro motion enable) 0 : synchro mode off(synchro motion disable) Be sure to set
  • Page 2826. Others 6.1. Note  Don’t use acceleration or deceleration function to child axis in synchro motion to prevent incorrect synchronization.  Overlap function in motion block is not valid when it is commanded next to synchro motion block. 6.2. Restriction The following function can’t be used in sync
  • Page 283Add a following description as “22 FANUC I/O Link function” after chapter 21. (1) OUTLINE The I/O Link is serial interface that transfers high speed I/O signals (bit data) between CNC and cell controllers and I/O Unit–A, Power Mate. When an Power Mate, an I/O Link β,= an I/O card, or an I/O unit is
  • Page 284(3) I/O DATA OPERATION I/O Link has 1024 input and 1024 output I/O points seen from the Master. There is a periodic transfer of I/O data between the master and slaves by allotting these input and output points to each slave. Master Slave #0 Output 1024 output Input points Slave #1 Output 1024 Input
  • Page 285Actual I/O points Dedicated I/O points Remarks Slave Input Output Input points Output points type points points I/O Number of Number of Actual I/O Dedicated I/O Unit–A points for points for points points each input each output module module A maximum of 256 input Less than 32→ 32 points and 256 outp
  • Page 286(4) CONNECTIONS Slave Master I/O Unit-A I/O Unit-A 10m 2m CNC Group F-D Mate #0 Power Mate 10m Power Group Mate #1 2m Optical adapter 200m Optical fiber cable Optical adapter 2m Group I/O Link β #2 10m I/O card Group #3 Group #15 (a) The maximum cable length between each unit and equipment is 10 m.
  • Page 287When an I/O card, or an I/O unit is used with Power Mate, the Power Mate functions as a master unit, and the I/O card, or the I/O unit functions as a slave unit. (5) SPECIFICATIONS LIST Item Specifications Remarks Equipment and Master: Power Mate–D/H/iD/iH units that can be connected Slave: I/O Unit
  • Page 288(8) I/O link slave area HOST DO → Power Mate DI (serial communication DI) Power Mate Bit No. PMC Address #7 #6 #5 #4 #3 #2 #1 #0 X1020 SDI07 SDI06 SDI05 SDI04 SDI03 SDI02 SDI01 SDI00 X1021 SDI15 SDI14 SDI13 SDI12 SDI11 SDI10 SDI09 SDI08 X1022 SDI23 SDI22 SDI21 SDI20 SDI19 SDI18 SDI17 SDI16 X1023 SDI
  • Page 289FANUC Power Mate i-MODEL D/H Development of Power Mate i series (STEP3) 1.Type of applied technical documents Name FANUC Power Mate i-MODEL D/H OPERATOR’S MANUAL Spec. No./Version B-63174EN/01 2.Summary of Change New,Add Applicable Group Name/Outline Correct, Date Delete Basic Development of Power M
  • Page 290FANUC Power Mate i-MODEL D/H Development of Power Mate i series (STEP3) OPERATOR’S MANUAL (CONTENTS) Addition of the parameter which makes it impossible to use a manual handle in JOG mode(supplement) 3 Stored pitch error compensation function 4 Countermeasure when fan cooler stopps 5 Look-ahead feed
  • Page 291Add the note to the last part of the section "3.2 JOG FEED" in the chapter "IV. OPERATION". Note When the parameter NJH(No.7104#6) is 0, the manual handle feed is effective in the JOG mode. If it should be ineffective in the JOG mode, set 1 to the parameter No.7104#6. TITLE FANUC Power Mate i-D/H Ad
  • Page 292Stored Pitch Error Compensation function is applied to the following system series and version or later of the Power Mate i series. Power Mate i series type ROM series version FANUC Power Mate i-MODEL H 88F0 07 Please change the contents of the explanation in the following manual with the adding of
  • Page 293Add a following description after the description of 976 in “System alarm” in “G. ALARM LIST”. 978 FAN OVER HEAT ALARM Both of the two fan coolers have stopped. Renew the fan coolers. TITLE FANUC Power Mate i-D/H Countermeasure when fan cooler stops Operator’s manual DRAW.NO. CUST. 01 990624 New des
  • Page 294"II.16.4 Look-ahead feed-forward control (G08)" is added. TITLE FANUC Power Mate i-D/H Look-ahead feed-forward control Operator’s manual DRAW.NO. CUST. 01 990624 New design B-63174EN/01 SHEET EDIT DATE DESIG. DESCRIPTION 6
  • Page 29516.4 Look-ahead This function is designed for high-speed precise axis motion. With this function, the feed-forward control delay due to acceleration/deceleration and the delay in the servo system which (G08) increase as the feedrate becomes higher can be suppressed. The tool can then follow specifie
  • Page 296• Functions that In the look-ahead feed-forward control mode, the functions listed below cannot be specified. cannot be specified. To specify these functions, it is necessary to cancel the look-ahead feed-forward control mode. After the desired function is completed, then set look-ahead feed-forward
  • Page 297FANUC Power Mate i-MODEL D/H Development of Power Mate i series (STEP3) 1. Type of applied technical documents Name FANUC Power Mate i-MODEL D/H MAINTENANCE MANUAL Spec. No./Version B-63175EN/ 01 2. Summary of Change New,Add Applicable Group Name/Outline Correct, Date Delete Basic Development of Pow
  • Page 298FANUC Power Mate i-MODEL D/H Development of Power Mate i series (STEP3) MAINTENANCE MANUAL (CONTENTS) Restore all system files(from memory card) 3 Countermeasure when fan cooler stopped 5 TITLE FANUC Power Mate i-D/H Development of Power Mate i series (STEP3) Maintenance manual DRAW.NO. CUST. 01 990
  • Page 299Add the following description after the explanation " " in "2.2.1 OPERATION AT POWER ON " of FANUC Power Mate i-D,i-H Display of Power Mate i equipment and service operation Specification(B-63175JA/01). TITLE FANUC Power Mate i-D/H Restore all system files(from memory card) Maintenance manual DRAW.N
  • Page 300Restore all system files (from memory card) ) ・All the system files are restored from a memory card at once. ・An alarm occurs when a write protect switch of a memory card is not on. (It is possible to restore them in the service operation of the boot system, too.) ・Pushing the push switch after the
  • Page 301Add following description as “2.5.1 fan cooler” in “2.5 METHODS FOR DISMOUNTING AND MOUNTING FAN UNITS AND FANS”. And renumber the existing paragraph from 2.5.2. 2.5.1 Fan Cooler In order to avoid malfunction caused by overheat, Power Mate i has two fans. When one of the two fans stops, the warning
  • Page 302FANUC Power Mate i-MODEL D/H Development of Power Mate i series (STEP3) 1.Type of applied technical documents Name FANUC Power Mate i-MODEL D/H PARAMETER MANUAL Spec. No./Version B-63180EN/01 2.Summary of Change New,Add Applicable Group Name/Outline Correct, Date Delete Basic Development of Power Ma
  • Page 303FANUC Power Mate i-MODEL D/H Development of Power Mate i series (STEP3) PARAMETER MANUAL (CONTENTS) The function that key matrix of MDI can be changed from M-type to T-type 3 The function of the expansion of time constant 4 Look-ahead feed-forward control 6 TITLE FANUC Power Mate i-D/H Development o
  • Page 304Add a following description after parameter No.3118 in “4.11 PARAMETERS OF MDI, DISPLAY, AND EDIT". #7 #6 #5 #4 #3 #2 #1 #0 3119 TKEY [Data type] Bit TKEY Using MDI key code is 0 : M type 1 : T type Note After setting this parameter, turn the power off then on again so that the setting will take eff
  • Page 305Add a following description after No.1602 in “4.8 PARAMETERS OF ACCELERATION/DECELERATION CONTROL” #7 #6 #5 #4 #3 #2 #1 #0 1605 TCE [Data type] Bit TCE The function of the expansion of time constant is 0:not available(maximum Time constant is 8000) 1:available(maximum time constant depends on number
  • Page 306Change description of [Valid data range] of parameter No.1622 in “4.8 PARAMETERS OF ACCELERATION/DECELERATION CONTROL” as follows. Don’t change the description, “Set the time constant ……” and the figure after [Valid data range]. [Valid data range] ・In case that the function of expansion of time cons
  • Page 307Following parameters are added. TITLE FANUC Power Mate i-D/H Look-ahead feed-forward control Parameter manual DRAW.NO. CUST. 01 990624 New design B-63180EN/01-4 SHEET EDIT DATE DESIG. DESCRIPTION 6
  • Page 3081431 Maximum cutting feedrate for all axes in the look-ahead feed-forward control mode [Data type] Two-word [Unit of data] Valid data range Increment system Unit of data [Valid data range] IS-A, IS-B IS-C Millimeter machine 1mm/min 0∼240000 0∼100000 Inch machine 0.1inch/min 0∼96000 0∼48000 Rotation
  • Page 309Specify the maximum cutting feedrate for each axis in the look-ahead feed-forward control mode. A feedrate for each axis is clamped during cutting feed so that it does not exceed the maximum cutting feedrate specified for each axis. WARNING In a mode other than the look-ahead feed-forward control mo
  • Page 310< Example of a deceleration process > < Example of an acceleration process > Feedrate Specified feedrate Feedrate Specified feedrate Feedrate after acceleration/ Feedrate after acceleration/ deceleration before deceleration before Point 1 interpolation is applied interpolation is applied F3 Type A F
  • Page 311Minimum speed in exponential acceleration/deceleration for cutting feed 1763 in the look-ahead feed-forward control mode [Data type] Word axis [Unit of data] Valid data range Increment system Unit of data [Valid data range] IS-A, IS-B IS-C Millimeter machine 1mm/min 6∼15000 6∼12000 Inch machine 0.1i
  • Page 312Parameter 1 for setting an acceleration for linear acceleration/deceleration 1770 before interpolation in the look-ahead feed-forward control mode (maximum cutting speed during linear acceleration/deceleration before interpolation) [Data type] Two-word [Unit of data] Valid data range Increment syste
  • Page 313This parameter is used to set an acceleration for linear acceleration/deceleration before interpolation in the look-ahead feed-forward control mode. In this parameter, set the time (time constant) used to reach the speed set in parameter No.1770. NOTE 1 When 0 is set in parameter No.1770 or paramete
  • Page 314TECHNICAL REPORT (MANUAL) (MANUAL) No. TMN 00/0087 00/ 0087 Date 30.May.2000 General Manager of Software Laboratory FANUC Power Mate i-MODEL H the function of increment system IS-C 1. Communicate this report to: ○ Your information ○ GE Fanuc-N, GE Fanuc-E FANUC Robotics CINCINNATI MILACRON ○ Machine
  • Page 315FANUC Power Mate i - MODEL H The function of increment system IS-C 1.Type of applied technical documents Name FANUC Power Mate i- MODEL D/H DESCRIPTION MANUAL Spec. No./Version B-63172EN/01 2.Summary of Change Group Name/Outline New,Add, Applicable Correct, Date Delete Basic The function of incremen
  • Page 316Change the description of " increment system 1/10 " in the chapter " 2 LIST OF SPECIFICATION " Item specification iD iD2 iH Increment system 1/10 0.0001mm 0.0001deg 0.00001inch 0 0 ☆ Replace the description of " NOTE" in the chapter " 1.3 INCREMENT SYSTEM" as follows. NOTE IS-A is available only for
  • Page 317Replace the description of the" Dimension word Setting unit", " Feed per minute, Setting unit", " Dwell, Setting unit" and " Note" in the chapter " 11.7 BASIC ADDRESS AND COMMAND VALUE RANGE" as follows. Function Address Metric input Inch input Dimension IS-A ±999999.99mm ±99999.999inch(Note 2) word
  • Page 318Replace the description of the" Note" in the chapter " APPENDIX A RANGE OF COMMAND NOTE 1 The feedrate range shown above are limitations depending on CNC interpolation capacity. As a whole system, limitations depending on servo system must also be considered. 2 IS-A is available only for Power Mate
  • Page 319FANUC Power Mate i - MODEL H The function of increment system IS-C 1.Type of applied technical documents Name FANUC Power Mate i- MODEL D/H CONNECTION MANUAL Spec. No./Version B-63173EN/01 2.Summary of Change Group Name/Outline New,Add, Applicable Correct, Date Delete Basic The function of increment
  • Page 320Replace the description of " NOTE" in the chapter " 2.2.2 INCREMENT SYSTEM" as follows. NOTE The IS-A cannot be used in the Power Mate i - D Delete the description of "(Power Mate i – D only)" in the title of "Table 1.2.2(C)" in the chapter " 2.2.2 INCREMENT SYSTEM" Replace the description of " NOTE
  • Page 321Replace the description of the table of " (7) Skip-feed per minute" of the " 3 axis control feedrate signals EIF0g to EIF15g" in the chapter " 15 PMC CONTROL FUNCTION" as follows. [ Unit of data ] When bit 3(F10)of parameter No.8002 is set to 0 Data unit Unit IS-A,IS-B IS-C Linear Metric machine 1 0
  • Page 322Replace the description of the table of " (12) Continuous feed " of the " 3 axis control feedrate signals EIF0g to EIF15g" in the chapter " 15 PMC CONTROL FUNCTION" as follows. IS-A,IS-B IS-C Metric input Inch input Metric input Inch input Magnified 166458mm/min 1664.58inch/mi 16645mm/min 166.45inch
  • Page 323FANUC Power Mate i - MODEL H The function of increment system IS-C 1.Type of applied technical documents Name FANUC Power Mate i- MODEL D/H OPERATOR’S MANUAL Spec. No./Version B-63174EN/01 2.Summary of Change Group Name/Outline New,Add, Applicable Correct, Date Delete Basic The function of increment
  • Page 324Replace the description of " NOTE" in the chapter " 2.3 INCREMENT SYSTEM" as follows. NOTE IS-A is available only for Power Mate i – H. Replace the description of " NOTE" of the Table 5.4(a) and 5.4(b) the chapter " 5.4 DWELL(G04)" as follows. NOTE IS-A is available only for Power Mate i – H. Replac