
14 30
EDIT.
SHEET
DRAW. NO.
CUST.
TITLE
DESCRIPTIONDESIG.DATE
-65551EN/01
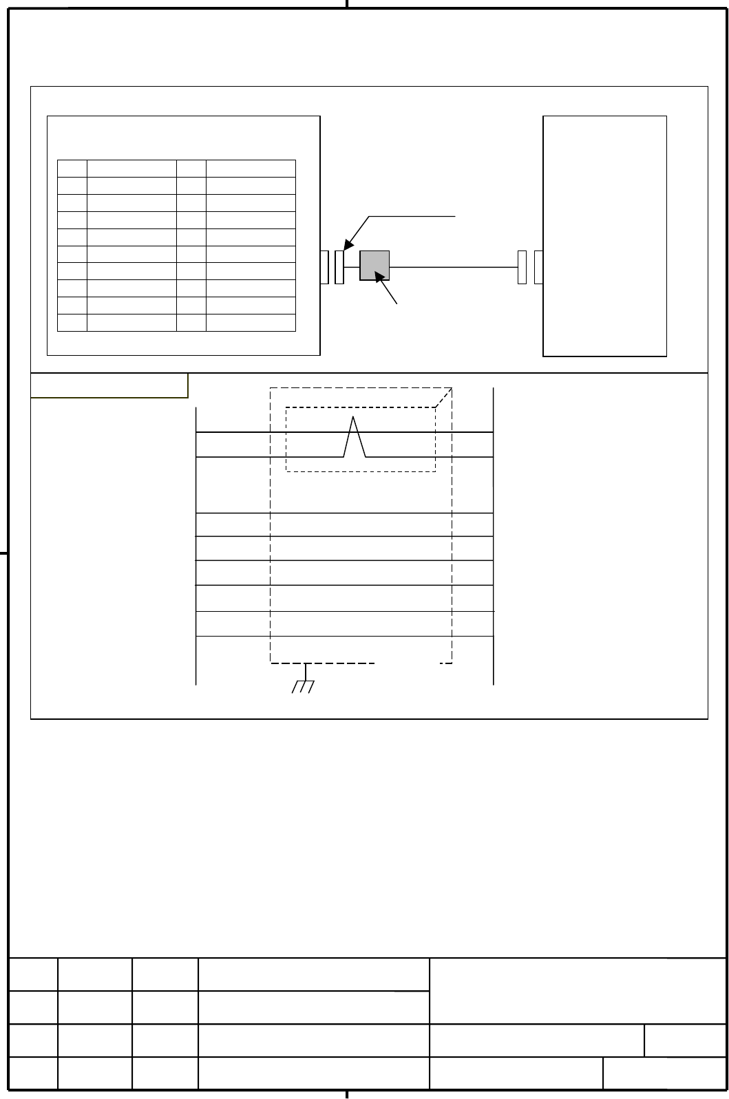
6.2.4 CABLE J158
Cable J158 is for analog servo interface unit (JV1nL) and analog servo amplifier.
7
6
17
15
10
19
18
16
Connector
PCR-E20FS
or
PCR-E20FA
Housing
PCR-V20LB
JV1nL
(PCR-EV20MDT)
1 (PCA) 11 (PCB)
2 (*PCA) 12 (*PCB)
3 (*ENBL) 13 (OVL)
4 (0V) 14 (0V)
5 (PCZ) 15 ALM
6 EC 16 0V
7 VCMD 17 *SRDY
8 (0V) 18 0V
9 (*PCZ) 19 24VOUT
10 *PRDY 20 (*VRDY)
nalog servo interface unit
アナログサーボアンプ
J158
l
nn
i
n
1
VCMD
EC
*SRD
ALM
*PRD
COM+
0
0
Shield
nalog servo
interface unit
JV1nL
SPR/SPL
GND
S−RDY
LM
SRV−ON
COM+
COM−
GND
Note)The pin with () mark
must be open.
nalog servo amplifier
nalog servo amplifier
Individually
shielded
twisted pair
Maximum allowable cable length:50m (cable length has limitation by voltage drop)
Recommended wire A66L-0001-0206
(Individually shielded twisted pair #24AWG x 3 pairs + twisted pair #24AWG x 7 pairs)
The external cable diameter is ∅11, preventing the use of the cable, as is, with connector case PCR-V20LB
(∅8). Peel backs the sheath at the point where the cable meets the connector to reduce the cable diameter.
Recommended ferrite core:TDK ZCAT2032-0930
Set ferrite core near analog servo interface unit. It must be separate type.
Ferrite core