
16 30
EDIT.
SHEET
DRAW. NO.
CUST.
TITLE
DESCRIPTIONDESIG.DATE
-65551EN/01
7 Power and heat generated
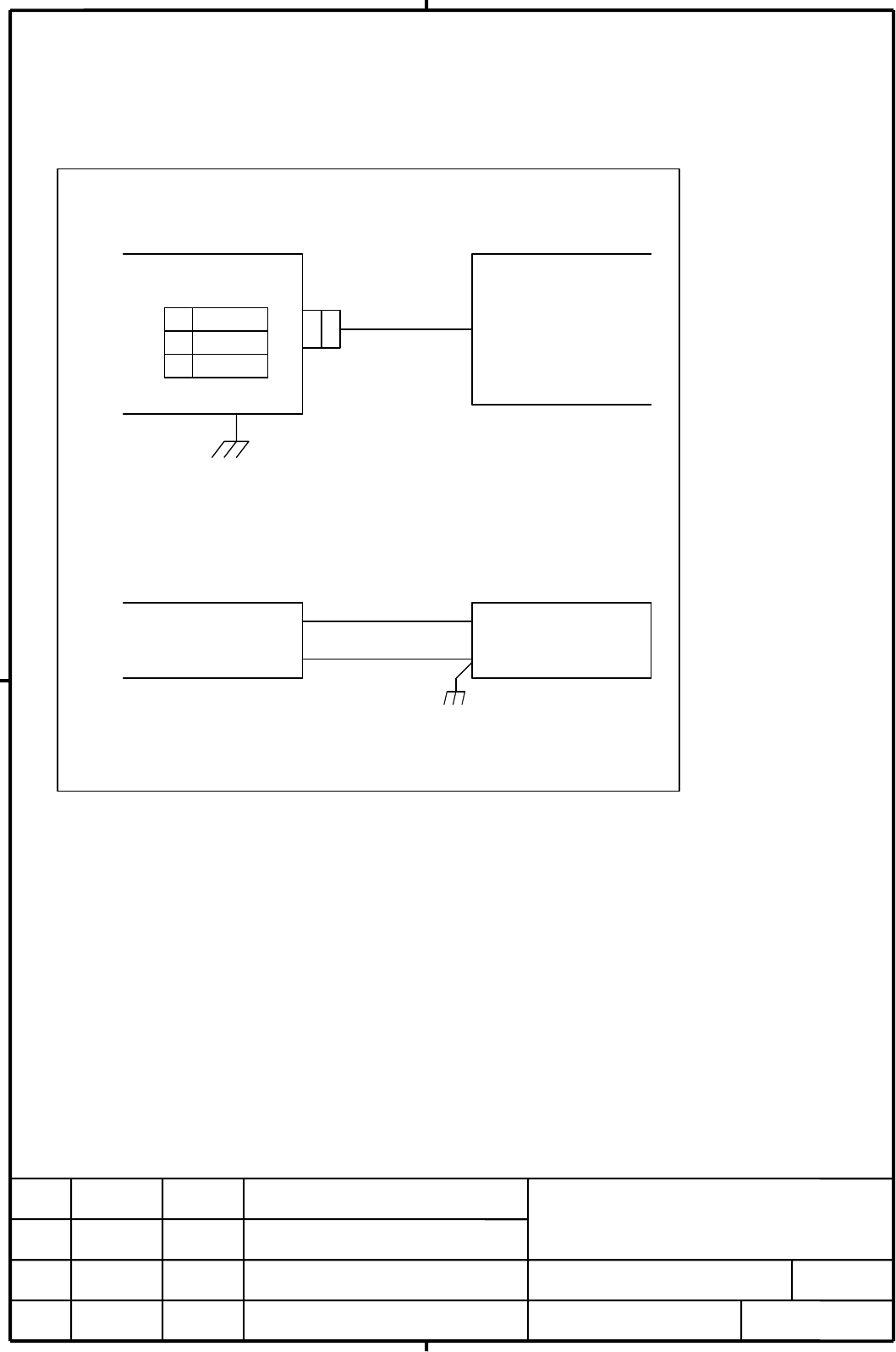
The power of analog servo interface unit must be supplied from external power supply 24VDC.
CP11L
MP Japan
1-178288-3(Housing)
1-175218-5(Contact)
nalog servo interface unit (basic)
0V(2)
+24V(1)
External power supply
CP11L
1 +24V
2 0V
3
DC24V
±
10%
(including an
instantaneous value
and ripple)
Cable
Recommended cable : A02B-0124-K830(5m)
With M3 terminal for External power supply
GND
External power supply
24VDC are supplied through the connector CP11L. The power can be supplied from CP11M to the
next unit.
Be sure to ground the 0-V line of the power supply to the analog servo interface unit. In addition,
keep any noise source (such as an AC power cable and contactor) away from the power line of the
analog servo interface unit as far as possible to prevent noise from being picked up through the
power line.
Secure the ground line to the ground terminal (GND) for signals of an analog servo interface unit,
which is located at the bottom of the unit, with an M3 screw as shown in the figure below. Connect the
ground line to the ground plate of the cabinet.