
5. EXPANSION PROTOCOL A B-63322EN-1/01
-28-
5.2
DATA PACKET FORMAT
The NC data is transferred to the remote buffer using the following
format by the host computer after receiving the <GTD>.
When the NC data transmitted becomes multiple packets, the packets
can be transmitted in order without waiting the response from the
remote buffer by the host computer.
1) NC data
The NC data is the fixed length of “256*n” bytes and the n is
specified with the parameter (byte position 55 to 56) by the
<SET> command.
The default value of n is 0. In the case of “n = 0”, the normal
protocol A is used.
n = 0 : Normal protocol A
n = 1, 2, 4 : Expansion protocol A
NOTE
Note that n is set to 0 automatically even if n is set to the
values other than listed above.
2) Packet No.
a) Effective packet : 30h – 39h (ASCII code)
Be sure to assign packet No. 30h to the first packet. If there
is only one effective packet, assign FFh to the packet, since
it is not only the first but also the last packet.
If there is more than one effective packet, packet No. 30h is
transmitted to the host computer by the remote buffer, along
with the monitor packet <NAK> of retransfer request.
Hereafter, the value incremented by 1 should be the packet
No.
However, the value next to 39h becomes 30h.
If there is only one packet, the packet is both the first and
the last; be sure to assign FFh.
Also, when the loss or improper order of packet No. is
detected, the improper packet No. is transmitted to the host
computer along with the monitor packet No. <NAK>.
When the checksum error is detected, the improper packet
No. is transmitted to the host computer with the monitor
packet <NAK> of retransfer request by the remote buffer.
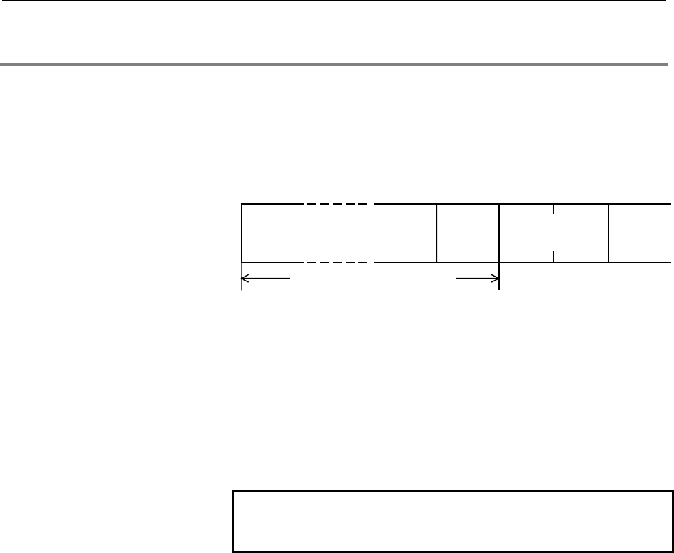
End code
(1 byte)
Checksum
(2 byte)
Packet
NC data
No.
(1 byte)
( "256*n" byte )
Calculation range of checksum