
B-63322EN-1/01 10. PARAMETER
-63-
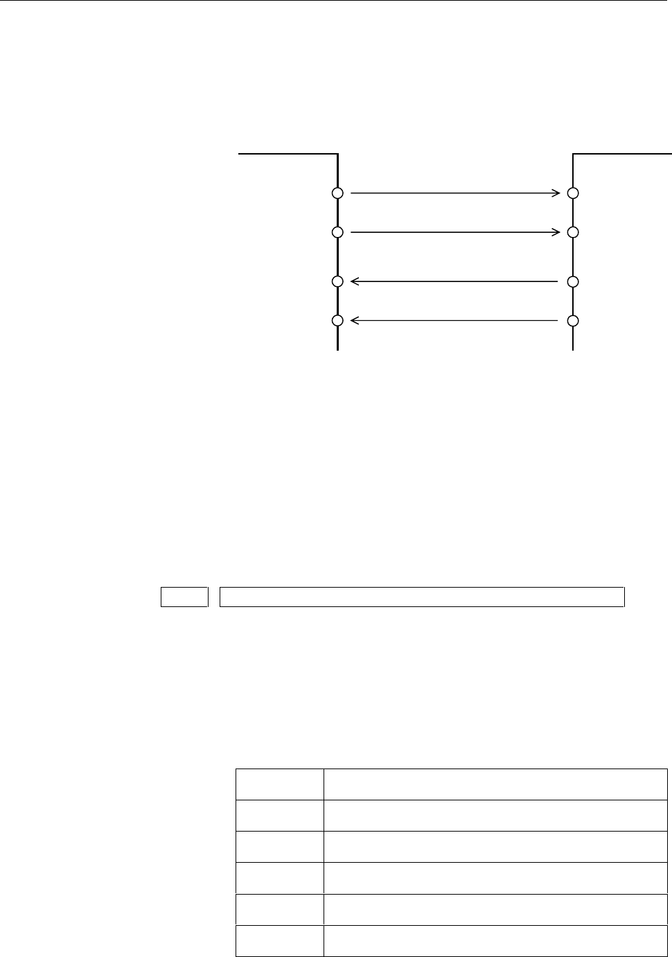
(2) The TT signal from the CNC is connected to the RT signal
for the host, and the TT signal from the host is connected to
the RT signal for the CNC, in both cases via cables.
(3) A synchronizing clock, the same as the baud rate clock, is
output from the TT pins. JIS refers to this signal as the
transmission signal element timing.
In clock synchronous communication, the transmission clock is
determined from the baud rate. The transmission clock output
by the transmitting station is used as the reception clock. To
perform clock synchronous communication, set the following
from the host computer:
(1) The host shall output the transmission signal element
timing as the TT signal (ST1 signal, as defined by JIS).
(2) The TT signal clock cycle shall be the same as the baud rate
clock cycle (clock rate: 1).
5071 RS-422 I/O specifications number (Remoto buffer)
[Input type] Setting input
[Data type] Integer
[Valid data range] 0 to 8
Set the specification number of the host (reader/punch device) of the
remote buffer.
The specification numbers and their corresponding reader/punch
device specifications are as follows.
Specification
No.
Reader/punch device specification
1
Uses the control codes (DC1-DC4). Outputs feed by
punching. Tape reader.
2
Does not use the control codes (DC1-DC4). Outputs feed
by punching.
3
Uses the control codes (DC1-DC4). Does not outputs feed
by punching.
4
Does not use the control codes (DC1-DC4). Does not
outputs feed by punching.
8
PROGRAM FILE Mate
Handy File (remote mode)
TT
*RT
RT
*TT
RT
*RT
TT
*TT
CNC Host