
12. MAINTENANCE B-63322EN-1/01
-72-
12.1.2
System Errors
When the LEDs are in any of the statuses shown below, there is a
system error. For recovery, the board must be turned off then on
again. The hardware may have to be replaced in some causes.
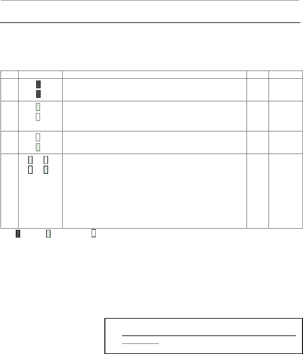
Table 12.1.2 (a) LED (green) indications and their meanings (STATUS LED)
No. LED indication Meaning Code Message
1 An error occurred during a DRAM module test. ("RMT-BUF DRAM
TEST:ERROR" is displayed on the screen, and the system fails to
start.)
Displayed.
2 The results of the parity check could not be accepted upon loading into
the code area. (A system alarm error message is displayed, and the
system fails to start.) (See Table 12.1.2 (c), "System alarm error
messages.")
1 Displayed.
3 NMI occurred in a module other than the remote buffer. 2 Not
displayed.
4
LEDs 1 and 2
flash
alternately.
Together with this LED indication, a system alarm error message is
displayed. (See Table 12.1.2 (c), "System alarm error messages.")
a) Hardware failure
b) Illegal interrupt (generation of an invalid interrupt)
c) F-BUS error
d) DRAM parity error
e) ARES bus error
f) LFP bus error
g) F-BUS write bus error
h) Non-F-BUS write bus error
4
5
6
7
8
9
A
B
Displayed.
: On : Flashing : Off
When the LEDs are in any of the statuses shown above, perform an
address search for 4n80E014 on the memory display screen, make a
note of the contents of the nine words prior to 4n80E024, and report
them.
In the above explanation, n is the logical slot number of the remote
buffer (609I series).
(See "Determining the Logical Slot Number of the Remote Buffer
Board," described below.)
NOTE
The DRAM area of the remote buffer is 4n8000000H to
4n9FFFFFH. If an attempt is made to display an address
outside this range, a system error occurs.
1
2
1
2
1
2
1⇔ 1
2⇔ 2