
EDIT
SHEET
DRAW. NO. CUST
TITLE
DESCRIPTIONDESIG.DATE
Year 2000 issue of OPEN CNC
-76040E
12
5. SET-UP Utility (Intelligent Terminal type 1)
BIOS setting of Intelligent Terminal is cleared after update BIOS. You should note the setting before
update. However, it is unnecessary to run the set-up program for usual use of the Intelligent Terminal.
5.1. Keys Used for Operation
The keys used for set-up have the following functions.
-[ ] [ ] keys : Move cursor to the next item.
-[F1] key : Display helps.
-[ENTER] key : Select item.
-[ESC] key : Ends the set-up menu.
5.2. How to Begin the “BIOS SET-UP”
i) End work and store the data.
ii) Turn off the power, connect a full-keyboard, and then turn on the power again.
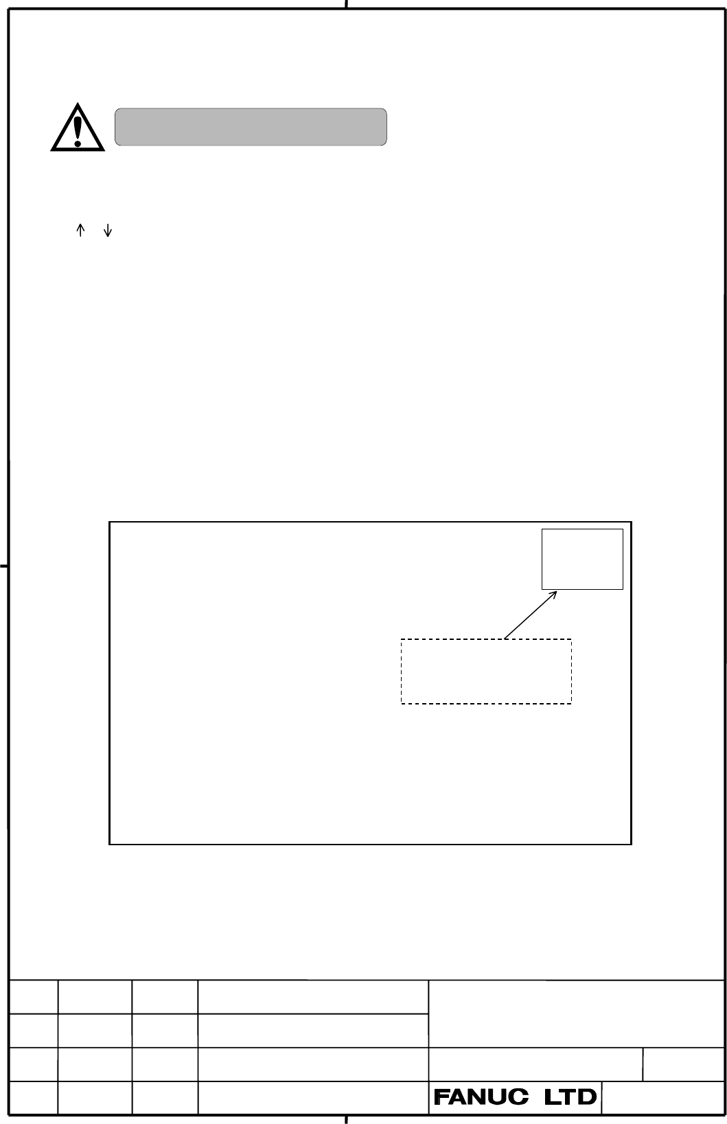
iii) BIOS set-up will run with pushing “F1” key once while “Initial Message” is displayed as the
following screen. If BIOS set-up does not run, retry from step ii.
iv) Write down the parameters with underline of each display on the screen.
Initial Message
Be sure to connect a full-keyboard.
(C) Copyright IBM Corporation 1981, 1994 ALL RIGHTS RESERVED
486DX2-50MHz
Copyright (C) Matsushita Electric Industrial Co., LTD 1995
Release 0.1 1.02
0640KB System Memory
7168KB Extended Memory
Press F1 for configuration/Setup
Press ESC for fast POST
~~~ ~~
~~~ ~~
~~~ ~~
This means that BIOS
set-up will runs if F1 is
pushed at present.
02 99.07.29 Added this page.