
EDIT
SHEET
DRAW. NO. CUST
TITLE
DESCRIPTIONDESIG.DATE
Year 2000 issue of OPEN CNC
-76040E
3
3. Countermeasure
3.1. MMC-IV
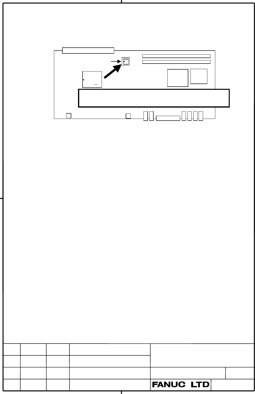
Please change the BIOS ROM (Flash ROM, PLCC package, 32 leads) in the socket on the MMC-IV
board. The BIOS ROM is mounted on the MMC-IV board as follows.
3.1.2. Necessary things [2]
(a) Flash ROM installed BIOS version 1.34 (The label "H 1.34" is stuck on it)
Order specifications of this BIOS ROM : A76L-1102-0169 [2]
(b) PLCC device remover
(c) Full keyboard [2]
3.1.3. How to exchange BIOS ROM [2]
(It is assumed that the driver software "MMCSYS.EXE" has been installed in the HDD.)
(Write BIOS parameters down before beginning setup.) [2]
(1) Shut down and turn off the power.
(2) Pull out the MMC-IV board from the CNC controller.
(3) Confirm the BIOS version by checking the label on the ROM as mentioned above.
(4) Remove the ROM and mount the new ROM installed BIOS version 1.34. Pay attention to
direction of the No.1 pin.
(5) Install the MMC-IV board into the CNC controller.
(6) Turn on the power and check the proper working.
If the BIOS setup utility is run automatically at power on after above changing, shut down and turn
off the power, connect the full keyboard, turn on the power and check the BIOS setting in the setup
utility referring to the connection manual for MMC-IV. [2]
Please require the new BIOS ROM to our sales engineer
1000
767E
The label like above is stuck on the BIOS ROM. When the right lower letter is
"E", the BIOS version is 1.11 and it must be changed. When it is "G" or "H", it
is not necessar
to be chan
ed.
02 99.07.28
Added parts of [2]
No.1 pin