
9. CONNECTION
B–65192EN/02
76
(b) For model α3/3000 to α40/2000, αC3/2000 to αC22/1500
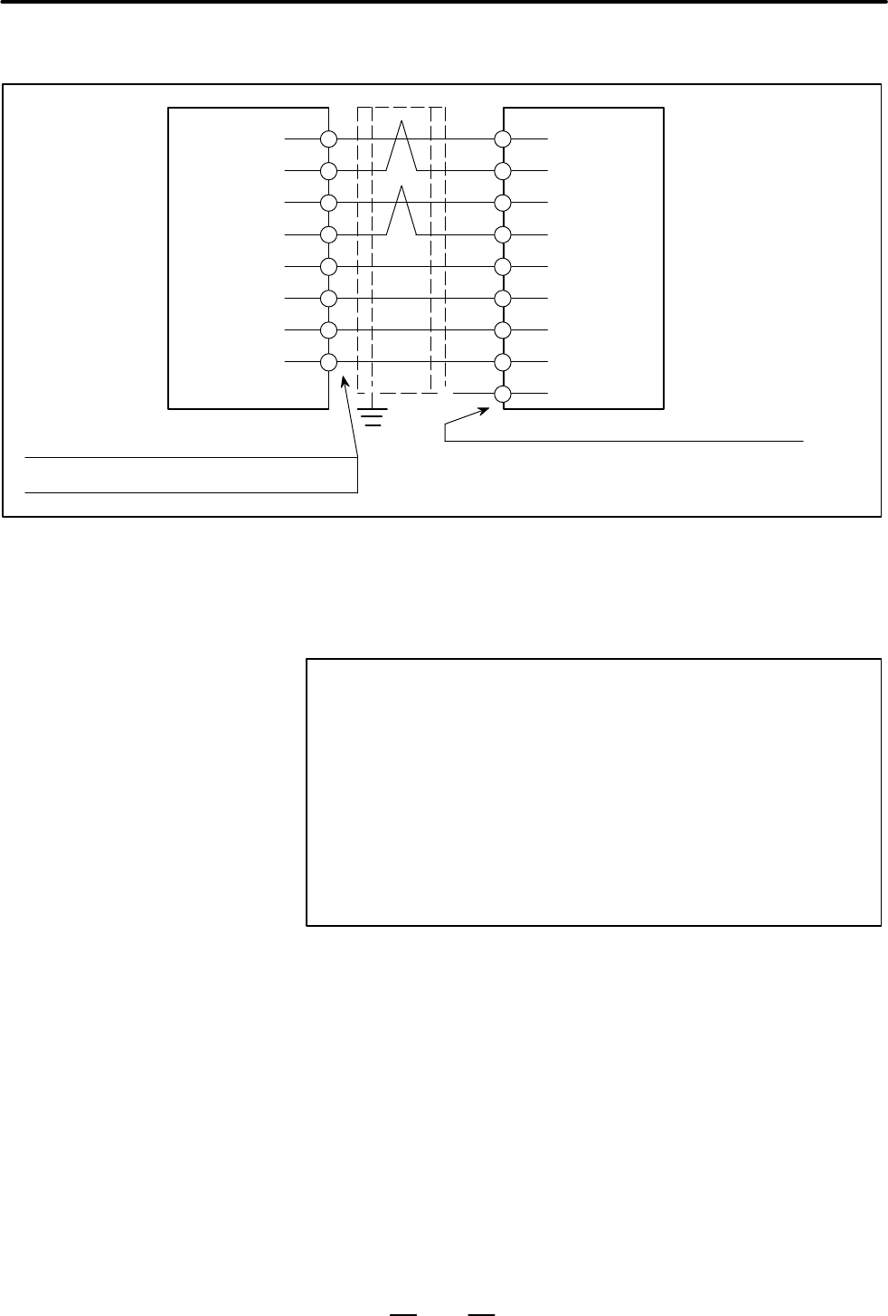
SVU SD (A)
(2) *SD (D)
(5) REQ (F)
(6) *REQ (G)
(9, 18, 20) +5V (J, K)
(12, 14) 0V (N, T)
(16) 0VA (S)
Note 1) Note 1)
(7) +6VA (R)
Shield (H)
FF
Connector:
Connector: Refer to table 9.3.4 (b), (c).
FI40–2015S (HIROSE ELECTRIC)
(1) Motor
Case: FI–20–CV (HIROSE ELECTRIC)
JF (1/2)
{}
Wire material: +5V, 0V – – – 0.5mm
2
or more 2
(When the cable length is 14m or less)
: 6VA, 0VA– – – 0.5mm
2
or more
: SD, *SD, REQ, *REQ– – – 0.18mm
2
or more , twisted pair
NOTE
1 For incremental pulse coders, pins 7 and 16 of the NC and
pins S and R of the motor need not be connected.
Connecting these pins, however, will not result in any
problems. Therefore, a cable designed for use with an
absolute pulse coder can also be used with an incremental
pulse coder.
2 The total resistance of the cables of pins 0V and 5V must
be 0.5 Ω or less if the corresponding cables are longer than
14m.