Servo Motors Beta Series Maintenance manual Page 37

Maintenance manual
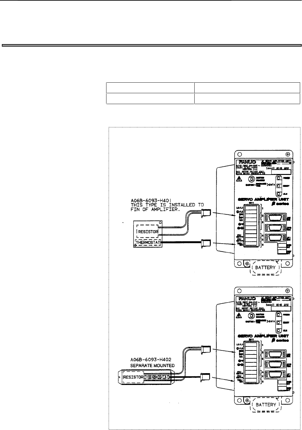
3. START-UP PROCEDURE START-UP PROCEDURE B-65235EN/02
- 36 -
3.3
CONNECTING THE SEPARATE REGENERATIVE
DISCHARGE UNIT
(1) Type
A06B-6093-H401
Natural ventilation (30/20W)
A06B-6093-H402
Natural ventilation (30/100W)
(2) Connection

Contents Summary of Servo Motors Beta Series Maintenance manual

  • Page 1GE Fanuc Automation Computer Numerical Control Products ß-Series Servo Motor Maintenance Manual B-65235EN/02 October 1997
  • Page 2The export of this product is subject to the authorization of the government of the country from where the product is exported. In this manual we have tried as much as possible to describe all the various matters. However, we cannot describe all the matters which must not be done, or which cannot be
  • Page 3Warnings and notices for GFLE-003 this publication Warning In this manual we have tried as much as possible to describe all the various matters. However, we cannot describe all the matters which must not be done, or which cannot be done, because there are so many possibilities. Therefore, matters wh
  • Page 4FANUC SERVO MOTOR series FANUC SERVO MOTOR AMPLIFIER series SAFETY PRECAUTIONS This ”Safety Precautions” section describes the precautions which must be observed to ensure safety when using FANUC servo motors (including spindle motors) and servo amplifiers (including spindle amplifiers). Users of an
  • Page 5SAFETY PRECAUTIONS B–65235EN/02 DEFINITION OF WARNING, CAUTION, AND NOTE This manual includes safety precautions for protecting the user and preventing damage to the machine. Precautions are classified into Warning and Caution according to their bearing on safety. Also, supplementary information is
  • Page 6I. FANUC SERVO MOTOR series 5
  • Page 7SAFETY PRECAUTIONS (FANUC AC SERVO MOTOR series) B–65235EN/02 1 WARNING WARNING F Be safely dressed when handling a motor. Wear safety shoes or gloves when handling a motor as you may get hurt on any edge or protrusion on it or electric shocks. F Use a crane or lift to move a motor from one place to
  • Page 8B–65235EN/02 SAFETY PRECAUTIONS (FANUC AC SERVO MOTOR series) WARNING F Connect power wires securely so that they will not get loose. A failure to observe this caution may cause a wire to be disconnected, resulting in a ground fault, short circuit, or electric shock. F Do not supply the power to the
  • Page 9SAFETY PRECAUTIONS (FANUC AC SERVO MOTOR series) B–65235EN/02 2 CAUTION CAUTION F FANUC motors are designed for use with machines. Do not use them for any other purpose. If a FANUC motor is used for an unintended purpose, it may cause an unexpected symptom or trouble. If you want to use a motor for
  • Page 10B–65235EN/02 SAFETY PRECAUTIONS (FANUC AC SERVO MOTOR series) 3 NOTE NOTE F Do not step or sit on a motor. If you step or sit on a motor, it may get deformed or broken. Do not put a motor on another unless they are in packages. F When storing a motor, put it in a dry (non–condensing) place at room t
  • Page 11SAFETY PRECAUTIONS (FANUC AC SERVO MOTOR series) B–65235EN/02 NOTE F Use a motor under an appropriate environmental condition. Using a motor in an adverse environment may cause a failure or trouble in it. Refer to their respective specification manuals for details of the operating and environmental
  • Page 12B–65235EN/02 SAFETY PRECAUTIONS (FANUC AC SERVO MOTOR series) MOTOR INSULATION RESISTANCE MEASUREMENT Measure an insulation resistance between each winding and motor frame using an insulation resistance meter (500 VDC). Judge the measurements according to the following table. Insulation resistance J
  • Page 13II. FANUC SERVO MOTOR AMPLIFIER series 12
  • Page 14B–65235EN/02 SAFETY PRECAUTIONS (FANUC SERVO MOTOR AMPLIFIER series) 1 WARNINGS AND CAUTIONS RELATING TO MOUNTING WARNING F Check the specification code of the amplifier. Check that the delivered amplifier is as originally ordered. F Mount a ground fault interrupter. To guard against fire and electr
  • Page 15SAFETY PRECAUTIONS (FANUC SERVO MOTOR AMPLIFIER series) B–65235EN/02 WARNING F Do not disassemble the amplifier. F Ensure that the cables used for the power supply lines and power lines are of the appropriate diameter and temperature ratings. F Do not apply an excessively large force to plastic part
  • Page 16B–65235EN/02 SAFETY PRECAUTIONS (FANUC SERVO MOTOR AMPLIFIER series) CAUTION F Do not step or sit on the amplifier. Also, do not stack unpacked amplifiers on top of each other. F Use the amplifier in an appropriate environment. See the allowable ambient temperatures and other requirements, given in
  • Page 17SAFETY PRECAUTIONS (FANUC SERVO MOTOR AMPLIFIER series) B–65235EN/02 CAUTION F Apply appropriate countermeasures against noise. Adequate countermeasures against noise are required to maintain normal operation of the amplifier. For example, signal lines must be routed away from power supply lines and
  • Page 18B–65235EN/02 SAFETY PRECAUTIONS (FANUC SERVO MOTOR AMPLIFIER series) NOTE F Keep the nameplate clearly visible. F Keep the legend on the nameplate clearly visible. F After unpacking the amplifier, carefully check for any damage. F Mount the amplifier in a location where it can be easily accessed to
  • Page 19SAFETY PRECAUTIONS (FANUC SERVO MOTOR AMPLIFIER series) B–65235EN/02 2 WARNINGS AND CAUTIONS RELATING TO A PILOT RUN WARNING F Before turning on the power, check that the cables connected to the power magnetics cabinet and amplifier, as well as the power lines and power supply lines, are securely co
  • Page 20B–65235EN/02 SAFETY PRECAUTIONS (FANUC SERVO MOTOR AMPLIFIER series) CAUTION F Note whether an alarm status relative to the amplifier is displayed at power–up or during operation. If an alarm is displayed, take appropriate action as explained in the maintenance manual. If the work to be done require
  • Page 21SAFETY PRECAUTIONS (FANUC SERVO MOTOR AMPLIFIER series) B–65235EN/02 3 WARNINGS AND CAUTIONS RELATING TO MAINTENANCE WARNING F Read the maintenance manual carefully and ensure that you are totally familiar with its contents. This manual describes daily maintenance and the procedures to be followed i
  • Page 22B–65235EN/02 SAFETY PRECAUTIONS (FANUC SERVO MOTOR AMPLIFIER series) WARNING F Check the number of any alarm. If the machine stops upon an alarm being issued, check the alarm number. Some alarms indicate that a component must be replaced. If the power is reconnected without first replacing the faile
  • Page 23SAFETY PRECAUTIONS (FANUC SERVO MOTOR AMPLIFIER series) B–65235EN/02 CAUTION F Ensure that all required components are mounted. When replacing a component or PC board, check that all components, including the snubber capacitor, are correctly mounted. If the snubber capacitor is not mounted, for exam
  • Page 24B–65235EN/02 SAFETY PRECAUTIONS (FANUC SERVO MOTOR AMPLIFIER series) NOTE F Ensure that the battery connector is correctly inserted. If the power is shut off while the battery connector is not connected correctly, the absolute position data for the machine will be lost. F Store the manuals in a safe
  • Page 25PREFACE B-65235EN/02 PREFACE This manual provides information necessary for maintenance of the FANUC Servo Motor Amplifier β series servo amplifier unit. There is one servo amplifier unit type,as listed below. Name Designation Remark SVU A06B-6093-H*** Conforms to VDE0160, UL and CSA. Part I describ
  • Page 26B-65235EN/02 Table of Contents SAFETY PRECAUTIONS .......................................................................1 PREFACE .............................................................................................24 I. START-UP PROCEDURE ...................................................
  • Page 27Table of Contents B-65235EN/02 3.3.3 Feedback Disconnected Alarm........................................................................................................ 65 3.3.4 Motor Overheat Alarm .....................................................................................................
  • Page 28I. START-UP PROCEDURE - 27 -
  • Page 292. CONFIGURATION START-UP PROCEDURE B-65235EN/02 1 OVERVIEW This part provides information necessary to confirm the system configuration and start up the servo amplifier units: (1) Configuration (2) Start-up procedure (3) Operation confirmation procedure - 28 -
  • Page 30B-65235EN/02 START-UP PROCEDURE 2. CONFIGURATION 2 CONFIGURATION - 29 -
  • Page 312. CONFIGURATION START-UP PROCEDURE B-65235EN/02 2.1 BASIC CONFIGURATION The basic configuration is shown below. Refer to "FANUC SERVO MOTOR β series Descriptions" (B-65232EN) for detail. Ex. Two SVU2s Control power supply 24V DC ±10% Servo Servo amplifier amplifier unit unit β series β series SVU S
  • Page 32B-65235EN/02 START-UP PROCEDURE 2. CONFIGURATION 2.2 MAJOR COMPONENTS SVU Model Oder specification Power P.C.B. Control P.C.B. Remark SVU-12 A06B-6093-H101 A20B-2100-0130 A20B-2002-0320 SVU-20 A06B-6093-H102 A20B-2100-0131 A20B-2002-0320 - 31 -
  • Page 333. START-UP PROCEDURE START-UP PROCEDURE B-65235EN/02 3 START-UP PROCEDURE - 32 -
  • Page 34B-65235EN/02 START-UP PROCEDURE 3. START-UP PROCEDURE 3.1 OVERVIEW OF THE START-UP PROCEDURE Start-up procedure 1. Confirm the CNC model, and the specifications of the control motors, detector, and servo amplifier units. 2. Check for visible damage. 3. Confirm the line voltage and power requirements
  • Page 353. START-UP PROCEDURE START-UP PROCEDURE B-65235EN/02 3.2 CONNECTING THE POWER SUPPLY 3.2.1 Confirming the Line Voltage and Power Requirements (1) Line voltage Before connecting the power source to the machine, check the voltage of the power source. Item Specification Input power Three-phase Voltage
  • Page 36B-65235EN/02 START-UP PROCEDURE 3. START-UP PROCEDURE (2) Power requirements • The power requirement of the servo amplifier unit is the sum of the power requirements of individual servo motors. • When a servo motor accelerates or decelerates rapidly, it may require twice as much power as the continu
  • Page 373. START-UP PROCEDURE START-UP PROCEDURE B-65235EN/02 3.3 CONNECTING THE SEPARATE REGENERATIVE DISCHARGE UNIT (1) Type A06B-6093-H401 Natural ventilation (30Ω /20W) A06B-6093-H402 Natural ventilation (30Ω /100W) (2) Connection - 36 -
  • Page 38B-65235EN/02 START-UP PROCEDURE 3. START-UP PROCEDURE 3.4 INITIALIZING SERVO PARAMETERS 3.4.1 Servo Amplifier Unit (1) Before servo parameter initialization Before starting servo parameter initialization ,confirm the following: 1) NC model (Example: Series 16-C) 2) Servo motor model (Example: β6/200
  • Page 393. START-UP PROCEDURE START-UP PROCEDURE B-65235EN/02 • Series 0-C Press the PARAM key several times, and the servo setting screen will appear. If no servo screen appears, set the following paramter as shown, and switch the NC off and on again. #7 #6 #5 #4 #3 #2 #1 #0 389 SVS SVS (#0) = 0 (to displa
  • Page 40B-65235EN/02 START-UP PROCEDURE 3. START-UP PROCEDURE These read to move over so look like headings install a part of previous. 3) Start initializing #7 #6 #5 #4 #3 #2 #1 #0 Initial set bits 1 1 DGPR 0 (#3 is set automatically to 1 except for Series 0) Start initializing (Keep the CNC power on until
  • Page 413. START-UP PROCEDURE START-UP PROCEDURE B-65235EN/02 6) Set CMR with the scale of a distance the NC instructs the machine to move. CMR = Command unit / Detection unit CMR 1/2 to 48 Setting value = CMR × 2 Usually, CMR = 1, so specify 2. 7) Specify the flexible feed gear (F.FG). This function makes
  • Page 42B-65235EN/02 START-UP PROCEDURE 3. START-UP PROCEDURE Setting for use of a separate detector (full closed) Number of position necessary for the motor to (as F.FG numerator (≤ 32767) make one turn irreducible = F.FG denominator (≤ 32767) Number of position pulses fraction) from the separate detector
  • Page 433. START-UP PROCEDURE START-UP PROCEDURE B-65235EN/02 • Series 16, 18, 20, 21, Power Mate-D, F, H, I #7 #6 #5 #4 #3 #2 #1 #0 1815 OPTX ↑ Must be specified for all NCs. OPTX (#1) The separate position detector is : 1 : used 0 : Not used NOTE For Series 16, 18, 20 and 21, setting this parameter causes
  • Page 44B-65235EN/02 START-UP PROCEDURE 3. START-UP PROCEDURE 11) Switch the NC off and on again. This completes servo parameter initialization.If a servo alarm related to pulse coders occurs for an axis for which a servo motor or amplifier is not connected, specify the following parameter. #7 #6 #5 #4 #3 #
  • Page 453. START-UP PROCEDURE START-UP PROCEDURE B-65235EN/02 • Power Mate -E #7 #6 #5 #4 #3 #2 #1 #0 21 APCX APCX (#0) 1: Performs absolute position as communication pulse coder. 0: Does not perform as absolute position pulse coder. 2. After making sure that the battery for the pulse coder is connected,swi
  • Page 46B-65235EN/02 START-UP PROCEDURE 4. OPERATION CONFIRMATION METHOD 4 OPERATION CONFIRMATION METHOD - 45 -
  • Page 474. OPERATION CONFIRMATION METHOD START-UP PROCEDURE B-65235EN/02 4.1 CONFIRMATION PROCEDURE 1. Supply power ALARM indicator is lit. See servo motor tuning screen. 2. Alarm indicator is not lit. 3. After confirming the NC parameters, release the emergency stop condition. READY indicator is not lit. S
  • Page 48B-65235EN/02 START-UP PROCEDURE 4. OPERATION CONFIRMATION METHOD 4.2 CHECK PIN BOARD When you are going to observe the signals inside the amplifier with an oscilloscope,attach the check pin board listed below to the connector. Order No. Description of the order A06B-6071-K290 Printed-circuit board A
  • Page 494. OPERATION CONFIRMATION METHOD START-UP PROCEDURE B-65235EN/02 Connection to the servo amplifier unit SVU J C Check pin C X N board N 5 1 2 Pin No. Signal name Description 1) 2) 0V Reference voltage 3) IRC Note) Phase R motor current signal 4) ISC Note) Phase S motor current signal 5) 6) 7) 8) 9)
  • Page 50B-65235EN/02 START-UP PROCEDURE 4. OPERATION CONFIRMATION METHOD 4.2.1 Checking the Control Power Supply Voltage Check pin Ratings 24V - 0V 24V ±10% 5V - 0V 5V ±5% 15V - 0V 15V ±10% -15V - 0V -15V ±10% 4.2.2 Checking the Motor Instantaneous Current The motor instantaneous current can be measured by
  • Page 515. SERVO CHECK BOARD START-UP PROCEDURE B-65235EN/02 5 SERVO CHECK BOARD (1) General The servo check board receives the digital value used for control inside the digital servo as numerical data and converts it to an analog form. (2) Servo check board specifications Specification Name A06B-6057-H602
  • Page 52B-65235EN/02 START-UP PROCEDURE 5. SERVO CHECK BOARD • Series 0-C, Power Mate-D, Power Mate-F Preventing reverse insertion cable Servo check board Axis control board (4) Location of signal ouput Check pin TSAL TSAM CH1 CH2 CH3 CH4 CH5 CH6 Signal L axis L axis M axis M axis L axis M axis VCMD TCMD VC
  • Page 535. SERVO CHECK BOARD START-UP PROCEDURE B-65235EN/02 E GND VCMD GND Enlarged 1/f DC mode AC mode When the signal conversion result for the VCMD waveform is W(rpm/5V), the voltage per positional shift pulse is: 300 × position gain (S–1) Voltage (V) per positional deviation pulse = Number of positiona
  • Page 54B-65235EN/02 START-UP PROCEDURE 5. SERVO CHECK BOARD (7) TSA signal The TSA signal outputs a motor speed. Signal conversion 3750 rpm / 5V If the TSA signal is clamped at 5V, check whether the following parameter is specified. 2115 Not used Be sure to specify 0. - 53 -
  • Page 55II. TROUBLESHOOTING AND RECOVERY - 54 -
  • Page 56B-65235EN/02 TROUBLESHOOTING AND RECOVERY 1. OVERVIEW 1 OVERVIEW This part describes troubleshooting and recovery procedures. Each item should be carefully followed to find the cause of trouble and take necessary actions. First, check the alarm No. (Servo tuning screen on the CNC) to find the cause
  • Page 572. ALARM NUMBER AND BRIEF DESCRIPTIONS TROUBLESHOOTING AND RECOVERY B-65235EN/02 2 ALARM NUMBER AND BRIEF DESCRIPTIONS - 56 -
  • Page 582. ALARM NUMBER AND BRIEF B-65235EN/02 TROUBLESHOOTING AND RECOVERY DESCRIPTIONS 2.1 ALARM NUMBER IN Series 0-C (SERVO ALARMS) Alarm No. Description Remark 309 Alarm3 α pulse coder error alarm 3.3.6 309 Alarm4 Pulse coder communication error alarm 3.3.8 400 Alarm1 bit7 Overheat alarm (motor) 3.1.2 4
  • Page 592. ALARM NUMBER AND BRIEF DESCRIPTIONS TROUBLESHOOTING AND RECOVERY B-65235EN/02 2.2 ALARM NUMBER IN Series 16,18,20,21 (SERVO ALARMS) Alarm No. Description Remark 350 Alarm3 α pulse coder error alarm 3.3.6 350 Alarm3 bit3 Rotation speed data error alarm 3.3.7 351 Alarm4 Pulse coder communication er
  • Page 603. TROUBLESHOOTING AND B-65235EN/02 TROUBLESHOOTING AND RECOVERY RECOVERY PROCEDURES 3 TROUBLESHOOTING AND RECOVERY PROCEDURES - 59 -
  • Page 613. TROUBLESHOOTING AND RECOVERY PROCEDURES TROUBLESHOOTING AND RECOVERY B-65235EN/02 3.1 SERVO AMPLIFIER UNIT 3.1.1 LED Indications and Meanings If alarm condition related to the servo amplifier unit occurs, the alarm indicator on the amplifier front panel is lit. Check the description of alarm at s
  • Page 623. TROUBLESHOOTING AND B-65235EN/02 TROUBLESHOOTING AND RECOVERY RECOVERY PROCEDURES 3.1.2 Actions to be Taken on each Alarm Type Action Over-voltage alarm (1) The input voltage is probably higher than the rating. (HV) Check the voltage and correct it as required. (2) The connection of the separated
  • Page 633. TROUBLESHOOTING AND RECOVERY PROCEDURES TROUBLESHOOTING AND RECOVERY B-65235EN/02 Fan alarm Check if the fan,built into the servo amplifier unit, has (FAL) stopped. If it is not stopped, replace the servo amplifier. Over-current alarm (1) Check that following parameter are set to standard (HC) va
  • Page 643. TROUBLESHOOTING AND B-65235EN/02 TROUBLESHOOTING AND RECOVERY RECOVERY PROCEDURES 3.2 CURRENT CONVERSION FAILURE ALARM (1) Exchange the command cables as shown in the example below. Turn on CNC in an emergency stage. If the alarm is issued on the same axis, go to (2). If the alarm is issued now o
  • Page 653. TROUBLESHOOTING AND RECOVERY PROCEDURES TROUBLESHOOTING AND RECOVERY B-65235EN/02 3.3 SERVO SOFTWARE 3.3.1 Servo Adjustment Screen Cause the servo adjustment screen to appear, and check the position error, actual current, and actual speed it.Using the key on the CNC, enter the required value acco
  • Page 663. TROUBLESHOOTING AND B-65235EN/02 TROUBLESHOOTING AND RECOVERY RECOVERY PROCEDURES 3.3.2 Overload Alarm (1) Make sure that the motor is not vibrating. If a motor vibrates, the current flowing in it becomes more than necessary, resulting in an alarm. (2) Make sure that the power line to the motor i
  • Page 673. TROUBLESHOOTING AND RECOVERY PROCEDURES TROUBLESHOOTING AND RECOVERY B-65235EN/02 (1) For a full-closed Series 0-C system, make sure that the phase C signal connection is correct, or when the system is not a Series 0-C, go to (2). (2) If there is a large backlash; or if the number of position fee
  • Page 683. TROUBLESHOOTING AND B-65235EN/02 TROUBLESHOOTING AND RECOVERY RECOVERY PROCEDURES 3.3.5 Invalid Servo Parameter Setting Parameters The following table contains actions to be taken for invalid servo parameter setting alarms. Alarm Decision criterion Adjustment item POA1 overflow Try resetting POA1
  • Page 693. TROUBLESHOOTING AND RECOVERY PROCEDURES TROUBLESHOOTING AND RECOVERY B-65235EN/02 Survey If the adjustments described below cannot eliminated overflow, let us work out the setting procedure individually. Adjustment1: POA1 overflow (No. 8X47-2047) Use the tenfold POA1 setting function NOTE This fu
  • Page 703. TROUBLESHOOTING AND B-65235EN/02 TROUBLESHOOTING AND RECOVERY RECOVERY PROCEDURES Adjustment3: Feed forward coefficient (No.8X68-2068, NO.8X92-2092 (advance)) (9060,9070,9080 Series) Specify position gain setting range expansion function. Function bit: No.2000, B4 = 1 (Series 16, 18, 20, 21) The
  • Page 713. TROUBLESHOOTING AND RECOVERY PROCEDURES TROUBLESHOOTING AND RECOVERY B-65235EN/02 Adjustment5: Number of position gain Make the changes listed below. Value E must satisfy the following: Number of current position pulses / E < 13100. Current setting value / E Current setting value / E Series 0-C S
  • Page 723. TROUBLESHOOTING AND B-65235EN/02 TROUBLESHOOTING AND RECOVERY RECOVERY PROCEDURES [Reference] Feed-forward coefficient overflow check (9060, 9070,9080 series) If the result of any of the following calculations exceed 32767, an overflow occurs. (Advanced) feed-forward parameter setting value 4096
  • Page 733. TROUBLESHOOTING AND RECOVERY PROCEDURES TROUBLESHOOTING AND RECOVERY B-65235EN/02 Position gain overflow check 9060, 9070, 9080 series When is servo software series? * 9046 series Position gain parameter setting value Number of velocity pulses 4 655 × × × (1) 2000 Number of position pulses DMR is
  • Page 743. TROUBLESHOOTING AND B-65235EN/02 TROUBLESHOOTING AND RECOVERY RECOVERY PROCEDURES * (9060, 9070, 9080 series) Position gain parameter setting value Number of velocity pulses 655 × (4) No (4) × (5) 2000 Number of position pulses is 32767 exceeded? is 32767 exceeded? No Is the feed gear in use? Yes
  • Page 753. TROUBLESHOOTING AND RECOVERY PROCEDURES TROUBLESHOOTING AND RECOVERY B-65235EN/02 3.3.6 Pulse Coder Error Alarm #7 #6 #5 #4 #3 #2 #1 #0 Alarm 3 CSAL BLAL PHAL BZAL CKAL SPH (See Subsec. 3.3.1) Whether the alarm occurs in each pulse coder α pulse Serial A coder SPH (#0) Probably, pulse coder or fe
  • Page 763. TROUBLESHOOTING AND B-65235EN/02 TROUBLESHOOTING AND RECOVERY RECOVERY PROCEDURES 3.3.7 Rotation Speed Data Error Alarm Serial pulse coder A #7 #6 #5 #4 #3 #2 #1 #0 Alarm 3 RCAL (See Subsec. 3.3.1) RCAL (#3) A rotation speed data error alarm occurred. α pulse coder #7 #6 #5 #4 #3 #2 #1 #0 Alarm 1
  • Page 774. REPLACING THE FUSE TROUBLESHOOTING AND RECOVERY B-65235EN/02 4 REPLACING THE FUSE WARNING When replacing the fuse, keep the power supply switched off. Also make sure that the "CHARGING" LED (red) on the servo amplifier front panel is off. Replacement procedure 1 Remove the plastic cover. 2 Replac
  • Page 785. CONNECTING THE BATTERY FOR B-65235EN/02 TROUBLESHOOTING AND RECOVERY AN ABSOLUTE PULSE CODER 5 CONNECTING THE BATTERY FOR AN ABSOLUTE PULSE CODER Use of an absolute pulse coder requires a battery. The way the battery is connected varies with two types. Refer to FANUC SERVO MOTOR β series Descript
  • Page 79III. MOTOR MAINTENANCE - 78 -
  • Page 80B-65235EN/02 MOTOR MAINTENANCE 1. AC SERVO MOTOR MAINTENANCE 1 AC SERVO MOTOR MAINTENANCE Generally, β series servo motors have no parts that wear out or that must be replaced periodically, unlike DC servo motors, which have brushes that must be replaced periodically. However, you should perform per
  • Page 811. AC SERVO MOTOR MAINTENANCE MOTOR MAINTENANCE B-65235EN/02 1.1 RECEIVING AND KEEPING AC SERVO MOTORS When you receive an β series servo motor, make sure that: - The motor is exactly the one you ordered, in terms of model, shaft, and detector specifications. - No damage has been caused to the motor
  • Page 82B-65235EN/02 MOTOR MAINTENANCE 1. AC SERVO MOTOR MAINTENANCE 1.2 DAILY INSPECTION OF AC SERVO MOTORS Before starting operation, or periodically (once a week or month), you should inspect the β series servo motors in terms of the following: (1) Vibration and noise Check the motor for abnormal vibrati
  • Page 831. AC SERVO MOTOR MAINTENANCE MOTOR MAINTENANCE B-65235EN/02 (3) Stains and smudges Check the motor surface and bolt holes for oil or cutting fluid. Oil or cutting fluid can damage the coating by chemical reaction, possibly leading to a failure. Therefore, wipe off oil and cutting fluid on the motor
  • Page 84B-65235EN/02 MOTOR MAINTENANCE 1. AC SERVO MOTOR MAINTENANCE (6) Overheating Attach a thermolabel on the motor surface and check it visually to see if the motor becomes too hot during normal operation. WARNING Temperature on the motor surface can exceed 80°C under some conditions. Therefore, never t
  • Page 851. AC SERVO MOTOR MAINTENANCE MOTOR MAINTENANCE B-65235EN/02 1.3 PERIODIC INSPECTION OF β SERIES MOTOR We recommend that you inspect the series motor for the following items at least once a year. (1) Observation of torque command (TCMD) and velocity command (VCMD) waveforms Observe the normal voltag
  • Page 86B-65235EN/02 MOTOR MAINTENANCE 1. AC SERVO MOTOR MAINTENANCE The load condition in the machine is changed to the following reasons. – The machine friction is increased for a long time. – Reduced efficiency. Increased friction Rediced efficiency The limit to the amplifier current is listed below. β1/
  • Page 871. AC SERVO MOTOR MAINTENANCE MOTOR MAINTENANCE B-65235EN/02 1.4 REPLACING THE PULSE CODER The pulse coder in the β series servo motor is mounted on the motor shaft directly. Therefore, can not replace the pulse coder. When the pulse coder is detective, replace the motor. - 86 -
  • Page 88B-65235EN/02 MOTOR MAINTENANCE 1. AC SERVO MOTOR MAINTENANCE 1.5 REPLACEMENT PARTS SPECIFICATION Listed below are the maintenance arrangement numbers. (1) Oil seal (Maker : NOK Corporation) Motor model Oil seal specification (Maker specification) β 0.5/3000 A98L-0001-0135/C0514E5 (AC0514E5 SC type)
  • Page 89APPENDIX - 88 -
  • Page 90B-65235EN/02 APPENDIX A. SERVO AMPLIFIER UNIT FRONT PANEL A SERVO AMPLIFIER UNIT FRONT PANEL Identify connector etc. - 89 -
  • Page 91B. MOTOR PARAMETER LIST APPENDIX B-65235EN/02 B MOTOR PARAMETER LIST - 90 -
  • Page 92B-65235EN/02 APPENDIX B. MOTOR PARAMETER LIST 9041, 9046 series Motor model 2-0SP/3 1-0SP 1-0SP/3 α 0.5 α E1/3 α E2/3 α E3/2 α E6/2 Motor specification 371 372 373 0113 0101 0102 0105 0106 Motor model α C3 α C6 α C12 α 1/3 α 2/2 α 2/3 β 0.5 β 1/3 β 2/3 β 3/3 β 6/2 Motor 0121 0126 0141 0371 0372 0373
  • Page 93B. MOTOR PARAMETER LIST APPENDIX B-65235EN/02 9060, 9064, 9070 series Motor model 2-0SP/3 1-0SP 1-0SP/3 α 0.5 α E1/3 α E2/3 α E3/2 α E6/2 Motor specification 371 372 373 0113 0101 0102 0105 0106 Motor model α C3 α C6 α C12 α 1/3 α 2/2 α 2/3 β 0.5 β 1/3 β 2/3 β 3/3 β 6/2 Motor 0121 0126 0141 0371 037
  • Page 94B-65235EN/02 APPENDIX B. MOTOR PARAMETER LIST 9066, 9080 series Motor model 2-0SP/3 1-0SP 1-0SP/3 α 0.5 α E1/3 α E2/3 α E3/2 α E6/2 Motor specification 371 372 373 0113 0101 0102 0105 0106 Motor model α C3 α C6 α C12 α 1/3 α 2/2 α 2/3 β 0.5 β 1/3 β 2/3 β 3/3 β 6/2 Motor 0121 0126 0141 0371 0372 0373
  • Page 95C. FSSB APPENDIX B-65235EN/02 C FSSB - 94 -
  • Page 96B-65235EN/02 APPENDIX C. FSSB C.1 GENERAL The β series SERVO AMPLIFIER UNIT with FSSB is used with the new optical interface FSSB. The specifications of this β series amplifier is same that of the current SVU except for the interface. The differences between βseries amplifier with FSSB and the curre
  • Page 97C. FSSB APPENDIX B-65235EN/02 C.2 CONFIGURATION Model Oder Power P.C.B. Control P.C.B. Remark specification SVU-12 A06B-6093-H111 A20B-2100-0130 A20B-2002-0640 SVU-20 A06B-6093-H112 A20B-2100-0131 A20B-2002-0640 - 96 -
  • Page 98B-65235EN/02 APPENDIX C. FSSB C.3 OPERATION CONFIRMATION METHOD C.3.1 Check Pin Board  1. Supply power. ALARM indicator is lit. See servo motor tuning screen. 2. Alarm indicator is not lit. 3. After confirming the NC parameters, release the emergency stop condition. READY indicator is not lit. See
  • Page 99C. FSSB APPENDIX B-65235EN/02 C.3.2 Connection to the servo amplifier unit SVU J C Check pin C X N board N Dummy 5 1 2 connector for ESP Pin No. Signal name Description (1) (2) 3.3V +3.3V power (with tolerance of –2%) (3) IRC Note) Phase R motor current signal (4) ISC Note) Phase S motor current sig
  • Page 100B-65235EN/02 APPENDIX C. FSSB C.4 SERVO CHECK BOARD (1) General The servo check board receives the digital value used for contol inside the digital servo as numerical data and converts it to an analog form. (2) Servo check board specifications Specification Name A06B-6057-H602 Servo check board (wit
  • Page 101C. FSSB APPENDIX B-65235EN/02 C.5 TROUBLESHOOTING AND RECOVERY Alarm meaning Relation to pulsecoder Number of Message Meaning NC alarms 360 n axis : abnormal checksum(int) Checksum alarmis occurred in pulsecoder (int). 361 n axis : abnormal phase data (int) Abnormal phase data alarm is occurred in p
  • Page 102B-65235EN/02 APPENDIX C. FSSB Relation to servo amplifier Number of Message Meaning NC alarms 430 n axis : servo motor overheat Servo motor is overheat. 431 n axis : cnv. overload (OH) This alarm is occurred if the temperature of amplifier is abnormally high. 432 n axis : cnv. lowvolt con./powfault
  • Page 103C. FSSB APPENDIX B-65235EN/02 Relation to servo amplifier Number of Message Meaning NC alarms 460 n axis : FSSB disconnection FSSB communication is open. 1. Optical fiber cable is open or disconnection. 2. Control power supply is shut down. 3. LV alarm of control power supply is occurred. 461 n axis
  • Page 104B-65235EN/02 APPENDIX C. FSSB Relation to P/S alarm Number of Message Meaning NC alarms 5134 FSSB : open ready time out FSSB is not ready at the time of power on. 5135 FSSB : error mode FSSB is abnormal. 5136 FSSB : number of amps is small The number of amplifier is small to the setting numer. 5137
  • Page 105C. FSSB APPENDIX B-65235EN/02 C.6 i SERIES INITIAL SETTING OF PARAMETER C.6.1 Outline In the system using FSSB, we have to set the following parameters for the axis arrangement. (Please set the parameters as usual except the following ones) l No.1023 l No.1905 l No.1910 to 1919 l No.1936, 1937 In or
  • Page 106B-65235EN/02 APPENDIX C. FSSB C.6.2 Slave In the system using FSSB, the Servo Amplifier and Pulse Module are connected to CNC by the optical cable. We call the Servo Amplifier and Pulse Module “Slave”. Two axes amplifier consists of two slaves and three axes amplifier has three slaves. Each slave is
  • Page 107C. FSSB APPENDIX B-65235EN/02 C.6.3 Manual setting 1 Default setting is available in the following parameter setting. No.1902#0=0 No.1902#1=0 No.1910 ~ 1919=0 (All 0) In the manual setting 1, the slave No. has to correspond to the value in No.1023 of each axis. Therefore, the axis which is set No.10
  • Page 108B-65235EN/02 APPENDIX C. FSSB C.6.4 Automatic setting Under the following conditions, you can set the parameter automatically using the FSSB screen. No.1902#0=0 No.1902#1=0 Please do the automatic setting by FSSB setting screen in the folloing procedure. 1. Please set the servo axis No. to No.1023.
  • Page 109C. FSSB APPENDIX B-65235EN/02 AMPLIFIER SETTING No. AMP SERIES UNIT CUR. [AXIS] NAME 1 A1-L α SVM 40AL [ 1 ] X 2 A1-M α SVM 12A [ 2 ] Y 3 A2-L β SVU 20A [ 3 ] Z 4 A3-L α SVM 40A [ 4 ] A 5 A3-M α SVM 80A [ 5 ] B 7 A4-L α SVM 40AS [ 6 ] C No. EXTRA type PCB ID 6 M1 A 0008 DETECTOR(4AXES) 8 M2 A 0008 D
  • Page 110B-65235EN/02 APPENDIX C. FSSB AXIS SETTING AXIS NAME AMP M1 M2 1DSP Cs TNDM 1 X A1-L 1 0 0 0 0 2 Y A1-M 0 1 0 0 0 3 Z A2-L 0 0 0 0 0 4 A A3-L 2 0 0 0 0 5 B A3-M 0 2 0 0 0 6 C A4-L 0 0 0 0 0 > MDI **** *** *** 13:11:56 [ AMP ] [ AXIS ] [MAINTE] [ ] [ (OPRT)] 14. Please push the soft key [SETING]. If
  • Page 111C. FSSB APPENDIX B-65235EN/02 [EX 1] In case of Semi-closed loop A1-L A2-L A3-L A3-M 3 servo Amplifiers Machine side CNC A A A Z axis A axis X axis Y axis Please set the parameter No.1023. X: 1 Z: 3 Y: 2 A: 4 Please set the servo initial setting to the each axis. Please turn off and on the CNC’s pow
  • Page 112B-65235EN/02 APPENDIX C. FSSB When you push the soft key [FSSB], the screen changes the Amplifier setting (or the screen selected before) and the following soft key appears. [ AMP ][ AXIS ][MAINTE][ ][ (OPRT)] Please push the soft key[AXIS]. Please push the soft key[(OPRT)] and please push the soft
  • Page 113C. FSSB APPENDIX B-65235EN/02 AMPLIFIER SETTING No. AMP SERIES UNIT CUR. [AXIS] NAME 1 A1-L α SVM 40A [ 2 ] Y 2 A2-L α SVM 40A [ 1 ] X 3 A3-L α SVM 40A [ 4 ] A 4 A3-M α SVM 80A [ 3 ] Z No. EXTRA TYPE PCB ID 5 M1 A 0008 DETECTOR (AXES) > MDI **** *** *** 13:11:56 [ AMP ] [ AXIS ] [MAINTE] [ ] [ (OPRT
  • Page 114B-65235EN/02 APPENDIX C. FSSB Please push the soft key[AXIS]. AXIS SETTING AXIS NAME AMP M1 M2 1DSP Cs TNDM 1 X A2-L 0 0 0 0 0 2 Y A1-L 1 0 0 0 0 3 Z A3-M 0 0 0 0 0 4 A A3-L 2 0 0 0 0 > MDI **** *** *** 13:11:56 [ AMP ] [ AXIS ] [MAINTE] [ ] [ (OPRT)] Please push the soft key[SETING] Please input No
  • Page 115C. FSSB APPENDIX B-65235EN/02 C.6.5 Manual setting 2 When the following parameters are set, you can set the parameter for each axis by hand. No.1902#0=1, #1=0 In case of manual setting 2, please set the parameter No.1023, 1905, 1910 to 1919, 1936, 1937 after understanding the meaning of these parame
  • Page 116B-65235EN/02 APPENDIX C. FSSB l In case of 3 axes amplifier, the first and the second axis are the same as 2 axes amplifier, and the third axis is the same as single axis amplifier. l Please select Fast type for the axis set the odd to No.1023. In case of the axis for EGB, Learning control, high spe
  • Page 117C. FSSB APPENDIX B-65235EN/02 No. 1910 The value of Address Conversion Table for Slave1 (ATR) 1911 The value of Address Conversion Table for Slave2 (ATR) 1912 The value of Address Conversion Table for Slave3 (ATR) 1913 The value of Address Conversion Table for Slave4 (ATR) 1914 The value of Address
  • Page 118B-65235EN/02 APPENDIX C. FSSB In case of the Automatic setting mode(No.1902#0=0), these parameters are set automatically. In case of the Manual setting mode(No.1902#0=1), please set these parameters by hand. - Example of axis configration & parameter setting CNC Slave ATR No. No.1910 AXIS Control Ax
  • Page 119C. FSSB APPENDIX B-65235EN/02 No. 1936 Connector number of 1st Pulse Module 1937 Connector number of 2nd Pulse Module Data type : Byte Data range : 0 to 7 In case using the Pulse module, please set the value which subtracts 1 from the connector No. of each axis. Therefore, the No. of connector 1-8 c
  • Page 120B-65235EN/02 APPENDIX C. FSSB - Axis configration & parameter setting by Manual setting 2 CNC AXIS Control Axis Name Pulse Module axis No. No. 1020 Connector 1 axis AMP X A 2 axes 1 X 1st CN1 Y 2 Y 2nd CN2 Z 2 axes 3 Z 2nd CN1 B 4 A (None) M1 5 B 1st CN2 1 axis AMP C 6 C 2nd CN3 M2 M1/M2: Pulse Modu
  • Page 121B-65235EN/02 Index Daily inspection of AC servo motors, 81 AC servo motor maintenance, 79 Actions to be taken on each alarm, 61 Alarm number brief descriptions, 56 Feedback disconnected alarm, 65 Alarm number in Series 0-C (SERVO FSSB, 94 ALARMS), 57 Alarm number in Series 16,18,20,21 (SERVO
  • Page 122B-65235EN/02 INDEX

    Periodic inspection of β series motor, 84 Pulse coder communication error alarm, 75 Pulse coder error alarm, 74 Receiving and keeping AC servo motors, 80 Replacement parts specification, 87 Replacing the fuse, 76 Replacing the pulse coder, 86 Rotation speed data error alar

  • Page 123Revision Record FANUC SERVO MOTOR β series MAINTENANCE MANUAL (B–65235EN) Edition Date Contents 01 Nov., ’96 – SAFETY PRECAUTIONS (FANUC AC SERVO MOTOR series) is modified. – SAFETY PRECAUTIONS (FANUC AC SERVO AMPLIFIER series) is modified. – FANUC SERVO MOTOR AMPLIFIER β series with FSSB MAINTENANC
  • Page 124D No part of this manual may be reproduced in any form. D All specifications and designs are subject to change without notice.