
8. EMBEDDED ETHERNET FUNCTION
B–63525EN/02
606
NOTE
1 The embedded Ethernet function includes the FTP file
transfer function.
This function is almost equivalent to the NC data transfer
function in the FTP mode of the Data Server function of the
option board.
2 Compared with the option board, the embedded Ethernet
function allows a smaller number of FOCAS1/Ethernet
clients to be connected simultaneously.
3 Communications using the embedded Ethernet function is
processed by the CPU of the CNC. This means that the
operation state of the CNC can affect the performance of
communication based on the embedded Ethernet function,
and communication based on the embedded Ethernet
function can affect the processing of the CNC.
The embedded Ethernet function has lower priority than
axis–by–axis processing such as automatic operation
processing and manual operation. So, when automatic
operation is being performed or many controlled axes are
involved, communication may become slower.
On the contrary, the embedded Ethernet function has
higher priority over CNC screen display processing, C
language executor processing (excluding high–level tasks),
and macro executor processing (excluding execution
macros). So, communication based on the embedded
Ethernet function can decrease the performance of such
processing.
4 Note that when the embedded Ethernet function is
connected to an intranet that handles large volumes of
broadcast data, for example, the processing of broadcast
data can take a longer time, resulting in a decrease in
performance of processing such as CNC screen display
processing.
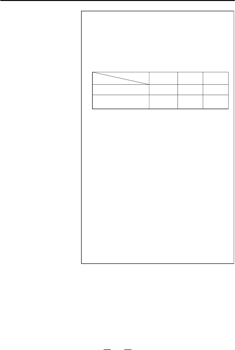
Number of personal computers
that can be connected simulta-
neously
Number of clients that can be
connected simultaneously
Embedded
Ethernet
Ethernet
board
10 clients
maximum
10 units
maximum
1 unit (recom-
mended)
5 clients
maximum
Fast Ether-
net board
20 clients
maximum
20 units
maximum