
B-63324EN-1/03 OPERATION 9.SETTING AND DISPLAYING DATA
- 355 -
The workpiece origin offset can be obtained using method 2, in the
same way as in method 1.
OFSW=Zm-OFSL
where
OFSW : Workpiece origin offset
OFSL : Tool length offset of a tool with which the workpiece origin
offset is measured
Zm : Amount of travel from the machine zero point to the
workpiece origin when measurement is madewith a tool
having a tool length of OFSL
-Workpiece origin offset on the X-axis or Y-axis
The workpiece origin offset of the X-axis or Y-axis can easily be
measured both when the surface of a workpiece is set as the workpiece
origin and when the center of a cutting hole is set as the workpiece
origin.
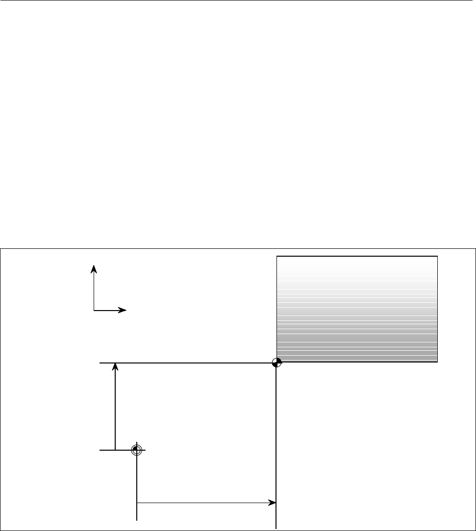
(1) When a surface is set as the workpiece origin
A side face of a workpiece is set as the workpiece origin, in the
figure shown above. The offset measurement in which the
workpiece origin on the X-axis or Y-axis is set on a face of a
workpiece is basically the same as the measurement for the
workpiece origin offset on the Z-axis. The two measurements
differ in that the tool length of a tool used for measurement is
considered to obtain the workpiece origin offset on the Z-axis
while the tool radius offset is considered for the X-axis or Y-axis.
Workpiec
Workpiece origin offset
on the Y-axis
Workpiece origin offset on
the X-axis
+Y
+X
Origin of workpiece coordinate system