
B-63944EN-2/02 PROGRAMMING 5.FUNCTIONS TO SIMPLIFY PROGRAMMING
- 91 -
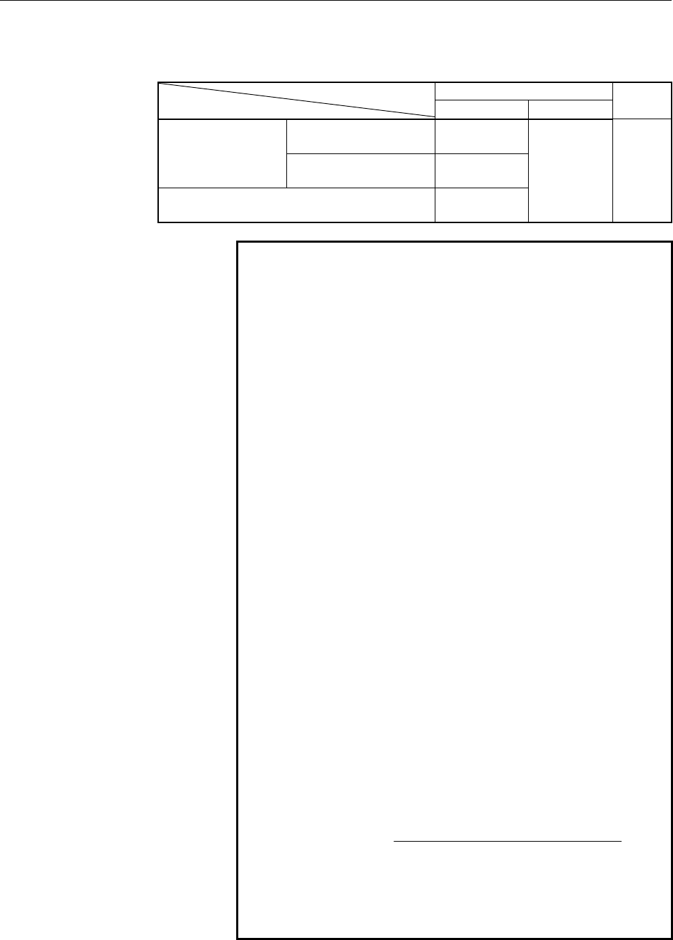
The override to be applied is determined according to the setting of
parameters and that in the command as shown in the table below.
DOV = 1 Parameter setting
Command
OV3 = 1 OV3 = 0
DOV = 0
Within the range between
100% to 200%
Command in
the program
Spindle speed at
extraction specified at
address "J"
Outside the range
between 100% to 200%
100%
No spindle speed at extraction specified at
address "J"
Parameter No.
5211
Parameter
No. 5211
100%
NOTE
1 Do not use a decimal point in the value specified at
address "J".
If a decimal point is used, the value is assumed as
follows:
Example) When the increment system for the
reference axis is IS-B
• When pocket calculator type decimal point
programming is not used
The specified value is converted to the value
for which the least input increment is
considered.
"J200." is assumed to be 200000 min
-1
.
• When pocket calculator type decimal point
programming is used
The specified value is converted to the value
obtained by rounding down to an integer.
"J200." is assumed to be 200 min
-1
.
2 Do not use a minus sign in the value specified at
address "J".
If a minus sign is used, a value outside the range
between 100% to 200% is assumed.
3 The maximum override is obtained using the
following equation so that the spindle speed to
which override at extraction is applied do not
exceed the maximum used gear speed (specified
in parameters Nos. 5241 to 5244). For this reason,
the obtained value is not the same as the
maximum spindle speed depending on the
override.
100
S
×=
) at (specified speed Spindle
)parameters in (specified speed spindle Maximum
(%) override Maximum
4 When a value is specified at address "J" for
specifying the spindle speed at extraction in the
rigid tapping mode, it is valid until the canned cycle
is canceled.