
B–63002EN/01
31. SAFETY FUNCTIONS
NC FUNCTION
345
Feed rate can be decelerated by an external deceleration signal from the
machine side. A feed rate after deceleration can be set by parameter.
External deceleration is prepared every axis and every direction.
When the tool is to be moved in the reverse direction, futile time may not
be wasted since no external deceleration is applied.
By setting the corresponding parameter, whether to make this signal
effective only for rapid traverse mode or for all feed modes can be
specified for each axis and for each direction.
This function allows the maximum of valid strokes and keeps shock to the
machine to a minimum, to stops at stroke end.
When a cutting tool collides with the machine body or is damaged during
cutting, the load torque applied to the servo motors is larger than during
normal feeding or cutting. The abnormal load detection function
calculates the load torque and transfers the value from the CNC to the
PMC. If the load torque is larger than the value set in a parameter, the
function stop the motor or reverses the motor rotation to retract the tool
by the distance set in a parameter. In this way, damage to the machine is
prevented.
The servo axis and spindle motor speeds are monitored. If the speed of
an axis exceeds a preset maximum (specified by parameter setting), the
corresponding signal is output to a Y address (specified by parameter
setting) of the PMC.
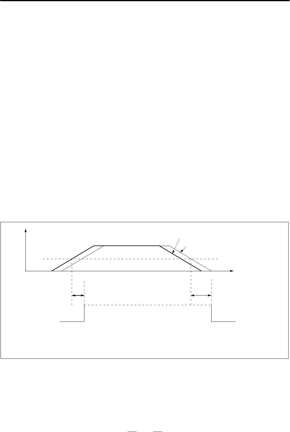
The following diagram illustrates the signal output state.
Max 2msec (servo motor)
Max 10msec (spindle motor)
Speed
? rpm (Preset maximum)
CNC output signal
<Y???#?>(Specified by parameter setting)
Max 16msec
Command for axis
Actual motor speed
Time
Note) The status of each signal is updated every 8 msec.
(Fluctuations in the speed of less than 8 msec duration cannot be detected, therefore.)
(Specified by parameter setting)
31.4
EXTERNAL
DECELERATION
31.5
ABNORMAL LOAD
DETECTION
31.6
SERVO/SPINDLE
MOTOR SPEED
DETECTION