
4/9
PAGEEDT.
DATE
DESIGN
DESCRIPTION
TITLE
No.
FANUC Series 16i/18i/21i/20i/160i/180i/210i-MODEL A
CONNECTION MANUAL (FUNCTION)
Concerning the addition of Look-Ahead Bell-Shaped
Acceleration/Deceleration Before Interpolation Time
Constant Change Function
B-63003EN-1
02-08 01 01.08.29 Newl
Re
istered
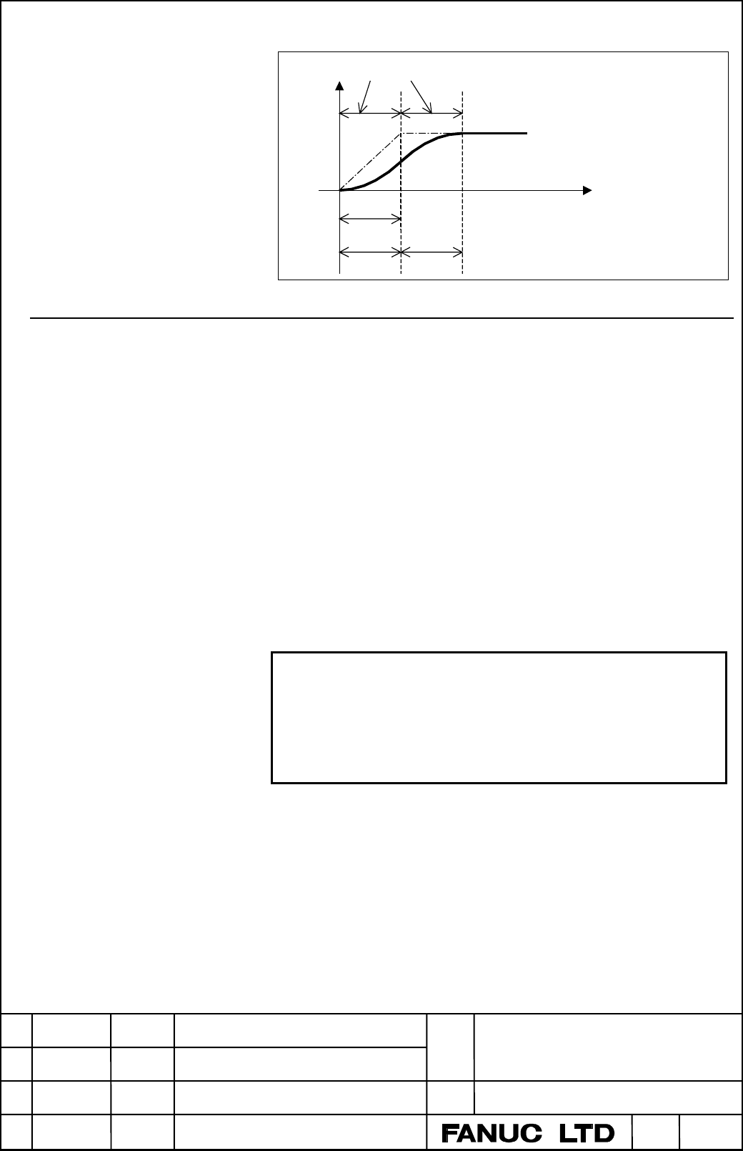
Non-linear acceleration/deceleration
Specified speed
Speed
T1'
T2' T2'
Time
Fig. 3
Description
・
・・
・Methods of specifying the acceleration/deceleration reference speed
The acceleration/deceleration reference speed is the feedrate
used as the reference for calculating optimum acceleration. In
Fig. 3, it is equivalent to the specified speed used to determine
T1' and T2'.
There are three methods for specifying the
acceleration/deceleration reference speed.
(1) Specifying the speed using an F in a G05.1 Q1 (AICC or
AI nanoCC) block or G05 P10000 (AI-HPCC or AI-
nanoHPCC) block
(2) Setting the speed on Parameter
(3) Setting the speed specified with the F command issued at
the start of cutting as the reference speed
NOTE
This function is effective if BCG (No. 7055 bit 3) is 1 in AI contour
control mode or AI Nano contour control mode , or if BCG
(No.19501#6) is 1 in AI High Precision Contour control mode or AI
Nano High Precision Contour control mode.
(1) Specifying the speed in a G05.1 Q1 block or G05 P10000 block
If an F command is used in a G05.1 Q1 (AICC or AI nanoCC)
block or G05 P10000 (AI-HPCC or AI-nanoHPCC) block, the
speed specified with the F command is assumed the
acceleration/deceleration reference speed.
This acceleration/deceleration reference speed is cleared upon
a reset. After the acceleration/deceleration reference speed is