
PROGRAMMING
14. FUNCTIONS TO SIMPLIFY
PROGRAMMING
B–63124EN/01
170
The multi-piece machining function enables several sheets of product
with the same punching shape to be produced from a single sheet of
material at a time by simple commands.
This function allows so called “trial machining” that performs punching
only on a sheet of product from the machining command tape for
“multi-piece machining” by a simple setup method, therefore the
machining command tape can be easily checked before full machining.
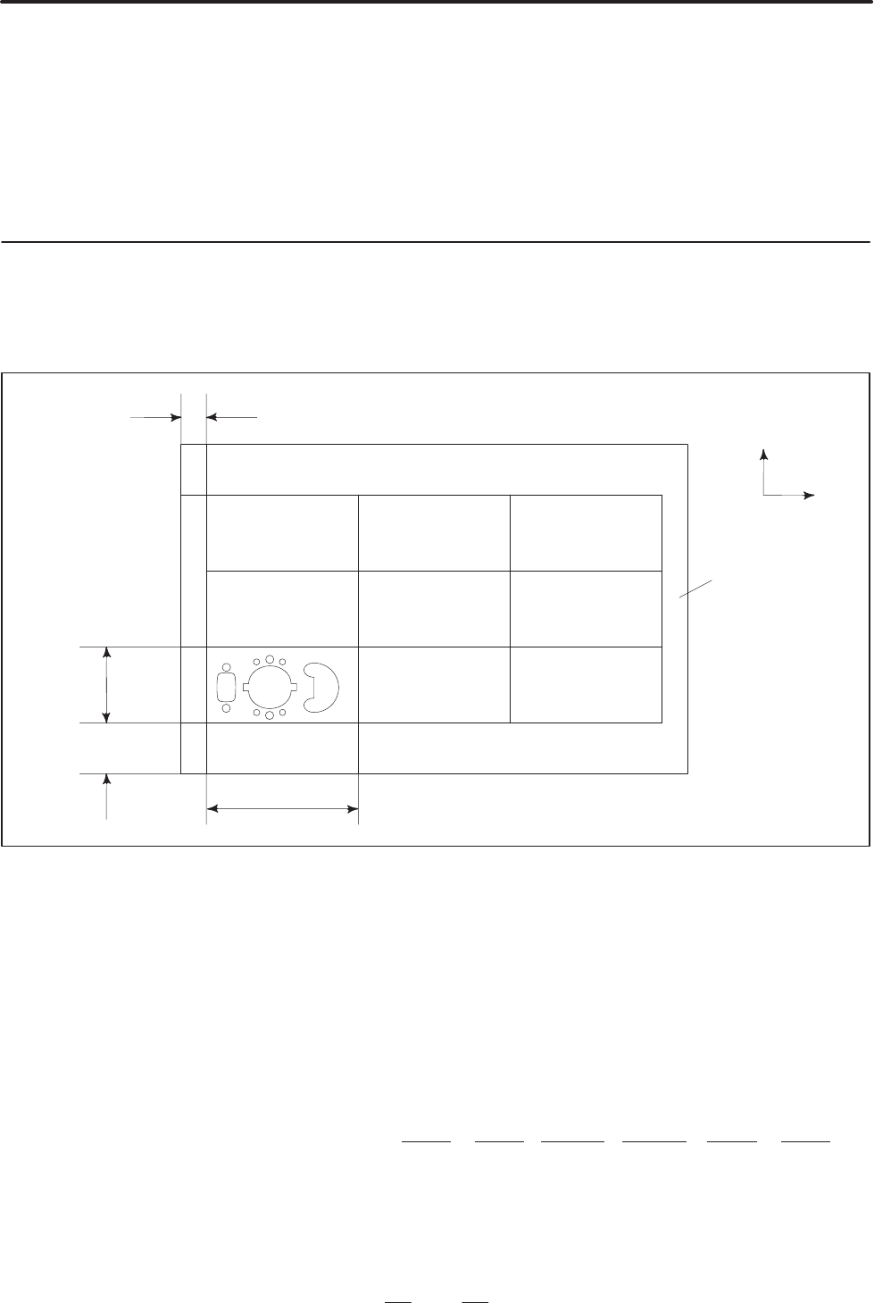
Y
X
ȏy
Catching
margin
ȏx
Cutting margin
Material plate
Fig. 14.5.1 (a)
Parts to as shown above have the same punching shape as part .
Machining commands to punch on a sheet of material must be specified
on the product part at the lower left ().
The point at the lower left of the set of multi-products (point B shown in
Fig. 14.5.1 (a); called as “Base point of multi-piece machining” hereafter)
must be specified prior to the machining commands to punch on a product
part by G98 as absolute co-ordinates under the system of co-ordinates
specified using G92 command. In the G98 command, the X-axial and
Y-axial lengths of one product and the numbers of products in the
directions of X-axis and Y-axis must be specified.
G98X xb
Y yb I ȏx J ȏy P nx K ny ;
xb: X-axis coordinate value of the base point of multi-piece machining
yb: Y-axis coordinate value of the base point of multi-piece machining
ȏx: X axial length of one product part (a positive number)
ȏy: Y axial length of one product part (a positive number)
14.5
MULTI-PIECE
MACHINING
FUNCTION
14.5.1
Base Point Command
of Multi-Piece
Machining (G98)