
6
6.2 Stand–Alone Type i Series Hardware
222
• Alarm LED display (red)
Status
LED1 Lit when the board is released from the reset state and starts operating.
LEDA Lit if any of the following errors is detected when data is received. This
LED goes off when normal data is received next.
· Reception buffer overflow
· Fractional bit data detection
· Overrun error detection
· CRC error detection
· Abort error detection
LEDB Lit when a parity alarm occurs in the DRAM on this board.
D Setting pin SH1
This pin is used to set the I/O Link–II board as the master or slave.
6.2.3.9 Ethernet board, fast Ethernet board
D Specifications
Item
Code
Ethernet board A20B–8100–0450
Fast Ethernet board A20B–8100–0670
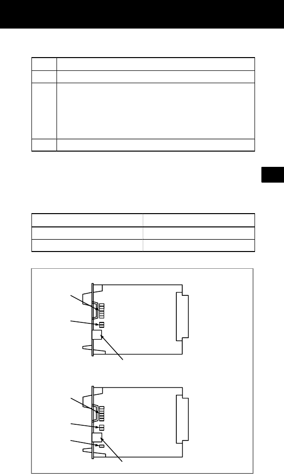
D Mounting position of connectors, LEDs, etc.
For Ethernet board
LEDB
LEDA
LED4
LED3
LED2
LED1
LED6
LED5
JNA
F–BUS backplane connector
CD38L : Ethernet interface
For fast Ethernet board
ALM
COM
LED4
LED3
LED2
LED1
LIL
COL
BTX
JNA
F–BUS backplane connector
CD38R : Ethernet interface